
22 Taybank Place, Errol, Perth, PH2

- PROPERTY TYPE
Bungalow
- BEDROOMS
2
- BATHROOMS
1
- SIZE
560 sq ft
52 sq m
- TENUREDescribes how you own a property. There are different types of tenure - freehold, leasehold, and commonhold.Read more about tenure in our glossary page.
Ask agent
Key features
- Semi-Detached Bungalow
- 2 Bedroom
- Modern ECH & DG
- Family Gardens
- Driveway & Garage
- EPC-
Description
the popular and well serviced village of Errol. Local amenities are close by and include a primary school, village shop and post office, while both Perth and Dundee are easily accessible, making this an ideal location for commuters.
The accommodation comprises two generously proportioned bedrooms, both benefiting from built in wardrobes, a spacious lounge, and a modern fitted kitchen complete with a dishwasher and washing machine. The property is serviced by a contemporary three piece bathroom suite with shower over the bath, and additional storage is provided off the hallway.
Further benefits include modern electric heating and double glazing throughout.
Externally, the property is accessed via a large driveway providing off street parking for up to three vehicles and leading to a single garage. To the rear, there are easily maintained garden grounds, ideal for family use.
This represents an excellent opportunity to acquire a comfortable home in a sought after village setting, and early viewing is highly recommended to fully appreciate the accommodation on offer.
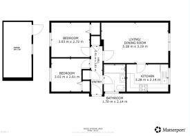
Living Room
5.28m x 3.19m
Kitchen
3.28m x 2.14m
Bedroom 1
3.03m x 2.72m
Bedroom 2
3.03m x 2.61m
Bathroom
2.14m x 1.7m
Garage
5m x 3m
- COUNCIL TAXA payment made to your local authority in order to pay for local services like schools, libraries, and refuse collection. The amount you pay depends on the value of the property.Read more about council Tax in our glossary page.
- Band: C
- PARKINGDetails of how and where vehicles can be parked, and any associated costs.Read more about parking in our glossary page.
- Yes
- GARDENA property has access to an outdoor space, which could be private or shared.
- Yes
- ACCESSIBILITYHow a property has been adapted to meet the needs of vulnerable or disabled individuals.Read more about accessibility in our glossary page.
- Ask agent
22 Taybank Place, Errol, Perth, PH2
Add an important place to see how long it'd take to get there from our property listings.
__mins driving to your place
Get an instant, personalised result:
- Show sellers you’re serious
- Secure viewings faster with agents
- No impact on your credit score
Affordability
Notes
Staying secure when looking for property
Ensure you're up to date with our latest advice on how to avoid fraud or scams when looking for property online.
Visit our security centre to find out moreDisclaimer - Property reference PRH250337. The information displayed about this property comprises a property advertisement. Rightmove.co.uk makes no warranty as to the accuracy or completeness of the advertisement or any linked or associated information, and Rightmove has no control over the content. This property advertisement does not constitute property particulars. The information is provided and maintained by Aberdein Considine, Perth. Please contact the selling agent or developer directly to obtain any information which may be available under the terms of The Energy Performance of Buildings (Certificates and Inspections) (England and Wales) Regulations 2007 or the Home Report if in relation to a residential property in Scotland.
*This is the average speed from the provider with the fastest broadband package available at this postcode. The average speed displayed is based on the download speeds of at least 50% of customers at peak time (8pm to 10pm). Fibre/cable services at the postcode are subject to availability and may differ between properties within a postcode. Speeds can be affected by a range of technical and environmental factors. The speed at the property may be lower than that listed above. You can check the estimated speed and confirm availability to a property prior to purchasing on the broadband provider's website. Providers may increase charges. The information is provided and maintained by Decision Technologies Limited. **This is indicative only and based on a 2-person household with multiple devices and simultaneous usage. Broadband performance is affected by multiple factors including number of occupants and devices, simultaneous usage, router range etc. For more information speak to your broadband provider.
Map data ©OpenStreetMap contributors.





