
Heritage Park

Letting details
- Let available date:
- Now
- Deposit:
- Ask agentA deposit provides security for a landlord against damage, or unpaid rent by a tenant.Read more about deposit in our glossary page.
- Furnish type:
- Furnished
- Council Tax:
- Ask agent
This property is Built For Renters.
- PROPERTY TYPE
Apartment
- BEDROOMS
3
- BATHROOMS
2
- SIZE
657 sq ft
61 sq m
Key features
- Reduced Deposit Option
- Furnished
- Parking Available on Application at an Additional Fee
- 24/7 Maintenance
- Transport Links
Description
Welcome to Heritage Park Apartments by Ocasa Homes
Discover contemporary studio living in Sheffield.
Utilities work a little differently.
.Electric: Tenant sets up/pays own electricity supplier.
.Gas, Hot Water & Water: Managed by Ginger based on flat size of your property as a proportion of the full building’s usage.
.Council Tax: Tenant sets up with Local Authority
Enjoy modern, fully furnished living in this stylish 3-bedroom flat, located within the beautifully renovated Grade II listed buildings of Heritage Park. Perfect for professionals and students, the flat offers convenience, comfort, and excellent access to Sheffield city centre.
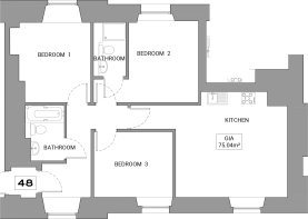
Please note: the images shown are from a similar apartment. The floorplan shows a more accurate layout of this particular property.
Your Bedroom
Relax in your comfortable double bedroom, featuring:
-Contemporary furniture, including a double bed, wardrobe, and bedside table<
-Spacious layout for a restful atmosphere
Your Living Room
Unwind in your inviting living space with:
-A cosy sofa for relaxation
-Dining set for two, ideal for meals or work
-Tasteful decorative elements creating a welcoming environment
Your Kitchen
Enjoy preparing meals in your modern kitchen, which includes:
-Integrated appliances for convenience
-White goods and ample storage space for all your needs
Your Bathroom
The flat includes a contemporary 3-piece shower room with:
-Wash basin and toilet -Wall-mounted heated towel rail for added comfort
Other Benefits
This flat also offers:
-Reduced deposit option (just one week's rent)
-Parking available on application (limited spaces)
-24/7 maintenance service for peace of mind
-Furnished for your convenience
-Double bedroom for maximum comfort
-close proximity to Sheffield city centre and local amenities
Why Choose Ocasa?
Ocasa offers a simple, stress-free living experience with benefits such as:
-Fast, efficient referencing
-Personal service guaranteed
-Reduced deposit rentals
-Emergency 24/7 service
-Dedicated local experts available to assist
-Tenant referral rewards
-Flats designed for long-term living
Book Your Viewing Today
Don’t miss out! Contact us to arrange a viewing or learn more about availability.
The Legal Bits
- Income must meet affordability criteria (30 times monthly rent)
- Guarantors must meet affordability criteria (36 times monthly rent)
- Referencing covers all adults aged 18+ and includes employment verification, income and credit checks, ID verification, affordability assessment, and fraud screening
- Images are for illustrative purposes and may not represent the exact room
Important Notice
Ocasa Homes may instruct partner agents to conduct viewings on our behalf. By requesting a viewing, your contact details may be shared with them. Contact us if you have any concerns before submitting your request.
Heritage Park
- COUNCIL TAXA payment made to your local authority in order to pay for local services like schools, libraries, and refuse collection. The amount you pay depends on the value of the property.Read more about council Tax in our glossary page.
- Ask agent
- PARKINGDetails of how and where vehicles can be parked, and any associated costs.Read more about parking in our glossary page.
- Covered
- GARDENA property has access to an outdoor space, which could be private or shared.
- Ask agent
- ACCESSIBILITYHow a property has been adapted to meet the needs of vulnerable or disabled individuals.Read more about accessibility in our glossary page.
- Ask agent
Energy performance certificate - ask agent
On-site perks of living at this Built for Renters development
Additional costs may apply for some services – please check the full property description above.
Heritage Park
Add an important place to see how long it'd take to get there from our property listings.
__mins driving to your place
Notes
Staying secure when looking for property
Ensure you're up to date with our latest advice on how to avoid fraud or scams when looking for property online.
Visit our security centre to find out moreDisclaimer - Property reference 219737_p0193136_HER048Z. The information displayed about this property comprises a property advertisement. Rightmove.co.uk makes no warranty as to the accuracy or completeness of the advertisement or any linked or associated information, and Rightmove has no control over the content. This property advertisement does not constitute property particulars. The information is provided and maintained by Ocasa Homes, Heritage Park, Sheffield. Please contact the selling agent or developer directly to obtain any information which may be available under the terms of The Energy Performance of Buildings (Certificates and Inspections) (England and Wales) Regulations 2007 or the Home Report if in relation to a residential property in Scotland.
*This is the average speed from the provider with the fastest broadband package available at this postcode. The average speed displayed is based on the download speeds of at least 50% of customers at peak time (8pm to 10pm). Fibre/cable services at the postcode are subject to availability and may differ between properties within a postcode. Speeds can be affected by a range of technical and environmental factors. The speed at the property may be lower than that listed above. You can check the estimated speed and confirm availability to a property prior to purchasing on the broadband provider's website. Providers may increase charges. The information is provided and maintained by Decision Technologies Limited. **This is indicative only and based on a 2-person household with multiple devices and simultaneous usage. Broadband performance is affected by multiple factors including number of occupants and devices, simultaneous usage, router range etc. For more information speak to your broadband provider.
Map data ©OpenStreetMap contributors.





