
Morrab Place, Penzance, Cornwall, TR18

- PROPERTY TYPE
Terraced
- BEDROOMS
8
- BATHROOMS
8
- SIZE
Ask agent
- TENUREDescribes how you own a property. There are different types of tenure - freehold, leasehold, and commonhold.Read more about tenure in our glossary page.
Freehold
Description
To inspect the legal documents for this property please see the more information section below or visit our website.
Description
A sizeable mid terrace Grade II Listed period property having a walled front terraced garden and rear courtyard in this sought after location, with accommodation arranged over five floors, currently fully let as a licensed HMO (6 months into a 5 year license) with two self contained flats and six further letting units, each having their own allocated shower rooms, currently generating a combined income £60,120 pae, rising to £5,390 pcm/£64,680 pae from 12th May 2026. The rental income includes Council Tax, WiFi and water, with electricity for each unit on pay as you go meters. The property benefits from brand new hardwood windows to the front elevation.
Situated
Morrab Place is a sought after residential location, in close proximity of Morrab Gardens, the Promenade and sea front, along with the vibrant town centre of Penzance offering a wide range of bespoke shops, cafes and restaurants, superstores and a mainline railway station.
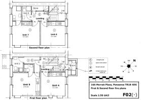
Basement Floor: Unit 1 - Entrance hall, kitchen, living room, bedroom and shower room.
Ground Floor: Main entrance hall. Unit 2 - Open plan bedsit with kitchenette. Unit 3 - Open plan bedsit with kitchenette. Shower room serving Unit 3.
First Floor: Landing, Unit 4: Open plan bedsit with kitchenette. Shower room serving Unit 4. Unit 5 - Open plan bedsit with kitchenette and en-suite shower room. Shower room serving Unit 2.
Second Floor: Landing, Unit 6 - Open plan bedsit with kitchenette. Shower room serving Unit 6. Unit 7 - Open plan bedsit with kitchenette and en-suite shower room.
Attic Floor: Unit 8 - Entrance hall, bedsitting room with kitchenette and en-suite shower room.
Outside
Front terrace and rear courtyard.
Viewings
Strictly by prior appointment with Miller Countrywide Penzance .
EPC Rating
Unit 1 - E, Unit 2 - E, Unit 3 - E, Unit 4 - E, Unit 5 - D, Unit 6 - E, Unit 7 - D, Unit 8 D.
Council Tax Band
D
Tenure
Freehold.
- COUNCIL TAXA payment made to your local authority in order to pay for local services like schools, libraries, and refuse collection. The amount you pay depends on the value of the property.Read more about council Tax in our glossary page.
- Band: TBC
- PARKINGDetails of how and where vehicles can be parked, and any associated costs.Read more about parking in our glossary page.
- Ask agent
- GARDENA property has access to an outdoor space, which could be private or shared.
- Yes
- ACCESSIBILITYHow a property has been adapted to meet the needs of vulnerable or disabled individuals.Read more about accessibility in our glossary page.
- Ask agent
Energy performance certificate - ask agent
Morrab Place, Penzance, Cornwall, TR18
Add an important place to see how long it'd take to get there from our property listings.
__mins driving to your place
Affordability
Get an instant, personalised result:
- Show sellers you’re serious
- Secure viewings faster with agents
- No impact on your credit score
Notes
Staying secure when looking for property
Ensure you're up to date with our latest advice on how to avoid fraud or scams when looking for property online.
Visit our security centre to find out moreDisclaimer - Property reference PNZ240362. The information displayed about this property comprises a property advertisement. Rightmove.co.uk makes no warranty as to the accuracy or completeness of the advertisement or any linked or associated information, and Rightmove has no control over the content. This property advertisement does not constitute property particulars. The information is provided and maintained by Miller Countrywide, Penzance. Please contact the selling agent or developer directly to obtain any information which may be available under the terms of The Energy Performance of Buildings (Certificates and Inspections) (England and Wales) Regulations 2007 or the Home Report if in relation to a residential property in Scotland.
Auction Fees: The purchase of this property may include associated fees not listed here, as it is to be sold via auction. To find out more about the fees associated with this property please call Miller Countrywide, Penzance on 01736 802033.
*Guide Price: An indication of a seller's minimum expectation at auction and given as a Guide Price or a range of Guide Prices. This is not necessarily the figure a property will sell for and is subject to change prior to the auction.
Reserve Price: Each auction property will be subject to a Reserve Price below which the property cannot be sold at auction. Normally the Reserve Price will be set within the range of Guide Prices or no more than 10% above a single Guide Price.
*This is the average speed from the provider with the fastest broadband package available at this postcode. The average speed displayed is based on the download speeds of at least 50% of customers at peak time (8pm to 10pm). Fibre/cable services at the postcode are subject to availability and may differ between properties within a postcode. Speeds can be affected by a range of technical and environmental factors. The speed at the property may be lower than that listed above. You can check the estimated speed and confirm availability to a property prior to purchasing on the broadband provider's website. Providers may increase charges. The information is provided and maintained by Decision Technologies Limited. **This is indicative only and based on a 2-person household with multiple devices and simultaneous usage. Broadband performance is affected by multiple factors including number of occupants and devices, simultaneous usage, router range etc. For more information speak to your broadband provider.
Map data ©OpenStreetMap contributors.









