Woolwich Common, London, SE18 4HP

Letting details
- Let available date:
- 15/04/2026
- Deposit:
- £1,961A deposit provides security for a landlord against damage, or unpaid rent by a tenant.Read more about deposit in our glossary page.
- Min. Tenancy:
- 12 months How long the landlord offers to let the property for.Read more about tenancy length in our glossary page.
- Let type:
- Long term
- Furnish type:
- Unfurnished
- Council Tax:
- Ask agent
- PROPERTY TYPE
Apartment
- BEDROOMS
2
- BATHROOMS
1
- SIZE
Ask agent
Key features
- Appliances included
- Bright and spacious
- Balcony
- Central heating
- Close to bus stop
- Door entry phone
- Dishwasher
- Double glazed windows
- Entrance hall
- Secure entry system
Description
LettingaProperty are thrilled to offer this purpose-built styled apartment property to rent located in a residential area of Greenwich. The property is available from 15 April 2026 on a minimum 12 months tenancy and is let unfurnished. This great condition 2 bedroom, 1 bathroom property benefits from these key features: communal garden, off-street parking, no garage and gas heating system.
There is off-street parking available.
Would suit single person, couple or smaller family unit. No flat share arrangement due to restrictions on the lease.
This wonderful home could be yours to rent for just £1,700.00 per calendar month.
Details and exclusions:
- Rent amount per month: £1700.00
- Deposit amount: £1961.00
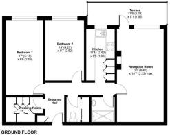
- 2 bedrooms
- 1 bathrooms
- Property comes unfurnished
- Available to move in from 15 April 2026
- Gas heating system: gas heating is included in the rent
- Bills not included : tenant pays for gas bill for cooking plus electricity bill
- Off-street parking
- No garage
- Communal garden
- EPC rating: D
Viewing Arrangements - Property Ref: 9302
To book a viewing at this property, call and quote ref: 9302
- COUNCIL TAXA payment made to your local authority in order to pay for local services like schools, libraries, and refuse collection. The amount you pay depends on the value of the property.Read more about council Tax in our glossary page.
- Band: B
- PARKINGDetails of how and where vehicles can be parked, and any associated costs.Read more about parking in our glossary page.
- Off street
- GARDENA property has access to an outdoor space, which could be private or shared.
- Communal garden
- ACCESSIBILITYHow a property has been adapted to meet the needs of vulnerable or disabled individuals.Read more about accessibility in our glossary page.
- Ask agent
Energy performance certificate - ask agent
Woolwich Common, London, SE18 4HP
Add an important place to see how long it'd take to get there from our property listings.
__mins driving to your place
About LettingaProperty.com, Nationwide - Lettings
7 Ardent Court William James Way Henley-In-Arden B95 5GF


Notes
Staying secure when looking for property
Ensure you're up to date with our latest advice on how to avoid fraud or scams when looking for property online.
Visit our security centre to find out moreDisclaimer - Property reference 1830. The information displayed about this property comprises a property advertisement. Rightmove.co.uk makes no warranty as to the accuracy or completeness of the advertisement or any linked or associated information, and Rightmove has no control over the content. This property advertisement does not constitute property particulars. The information is provided and maintained by LettingaProperty.com, Nationwide - Lettings. Please contact the selling agent or developer directly to obtain any information which may be available under the terms of The Energy Performance of Buildings (Certificates and Inspections) (England and Wales) Regulations 2007 or the Home Report if in relation to a residential property in Scotland.
*This is the average speed from the provider with the fastest broadband package available at this postcode. The average speed displayed is based on the download speeds of at least 50% of customers at peak time (8pm to 10pm). Fibre/cable services at the postcode are subject to availability and may differ between properties within a postcode. Speeds can be affected by a range of technical and environmental factors. The speed at the property may be lower than that listed above. You can check the estimated speed and confirm availability to a property prior to purchasing on the broadband provider's website. Providers may increase charges. The information is provided and maintained by Decision Technologies Limited. **This is indicative only and based on a 2-person household with multiple devices and simultaneous usage. Broadband performance is affected by multiple factors including number of occupants and devices, simultaneous usage, router range etc. For more information speak to your broadband provider.
Map data ©OpenStreetMap contributors.




