131, 133 135 Regent Street, Leamington Spa, CV32 4NX
Size
400 - 1,512
Tenure
Freehold
EPC
Ask agent
Parking
Ask agent
- Primary use
- Other
- Other use(s)
- Other leisure, High street retail
Key features
- • 3 retail units to be sold either as a whole or individually with a combined rental of £59,000 Per Annum increasing to £59,500 In June 26 and £60,000 in June 27
- • Royal Leamington Spa is an affluent and popular Regency Town dubbed ‘Silicone Spa’ being the hub for a sizeable cluster of UK and multi-national video gaming and digital production companies.
- • Located in one of the most sought-after independent / boutique retail locations within the Town and within close proximity of Parade, the Town’s primary retailing pitch.
- • Outside of London, Royal Leamington Spa is amongst the top ten regional centres of wealth and tourism in the UK.
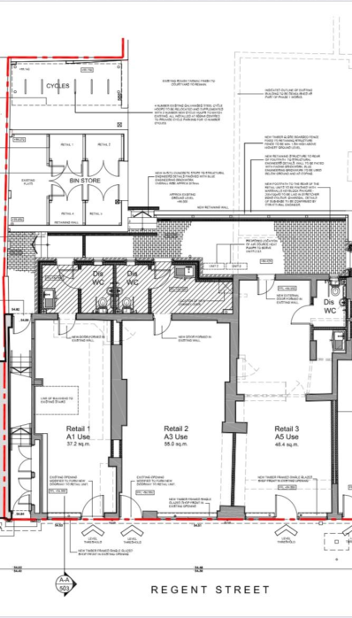
- • 400 sq ft - 1,512 sq ft.
- • Available for sale Freehold as a whole or alternatively individually on a Long leasehold – 980 years available.
- • The properties are fully let to Richard Oxton T/A Barbers at 131, Reece Goodger T/A Reece Roberts Hairdressers and Nate Thompson & Anna Martin trading as Peaches Coffee and Cocktail bar
- Proposal - We are instructed to seek offers in excess of £715,000 (seven hundred and fifteen thousand pounds) subject to contract and exclusive of VAT which reflects a net initial yield of 8% after allowing for purchase costs of 5%.
Description
The properties front onto Regent Street but do have rear access available via Kenilworth Street.
Royal Leamington Spa is an attractive and affluent Regency Town located in the County of Warwickshire, approximately 2 miles east of Warwick, 8 miles south of Coventry and 18 miles southeast of Birmingham. It is the largest town and principal employment centre in the District of Warwick.
Due to its strategic location, Leamington Spa benefits from excellent road links with direct access to the M40. Junction 13 is situated within 5 miles (8 KM) providing routes to London and the south and Junction 14 is 4 miles (6.4 KM) west, providing access to the M42 and the north. The A46 is 4 miles (6.4 KM) distant and the M45, some 11 miles (17.6 KM) providing links to major towns across the Midlands.
Royal Leamington Spa Railway Station (Chiltern Mainline) is also very well connected with a regular direct service to London Marylebone in 71 minutes and Birmingham Moor Street and Snow Hill in 29 minutes.
Birmingham International Airport is situated 19 miles (30.6 KM) northwest of the Town Centre and provides national and international flights to over 150 destinations. The airport is accessible via the A452 / A45 with a journey time of approximately 45 minutes or via direct train service, 23 minutes.
Retailing in Royal Leamington Spa
Royal Leamington Spa boasts an excellent retail provision with approximately 1.16 million square feet of accommodation. The town has a wide range of retailers and a strong independent provision for both fashion and specialty shopping. The town has an above average quality of retail provision relative to the size and affluence of its population.
Regent Street comprises an attractive retailing pitch which has proved popular amongst both local boutique operators and national operators. The street boasts tenants such as Bang & Olufsen, Gails, Jojo Maman Bebe, Neils Yard, Café Nero, Giggling Squid and Domino’s but to name a few. The street intersects with Parade which is thought to be the town’s retailing pitch.
There are two managed shopping centres in Leamington Spa which complement the High Street provision. Royal Priors is the town’s principal scheme and offers 130,000 sq ft of retail accommodation. Regent Court is the leisure focused open air scheme to the south of Regent Street. The scheme provides 70,000 sq ft of primarily restaurant and leisure accommodation with current tenants including Turtle Bay, Wagamama, Yo! Sushi and Nando’s.
Demographic Profile
With an estimated Town population of c. 50,000 and an estimated primary retail market area population of 165,000 (n. 2019), Royal Leamington Spa’s catchment is one of the most affluent in the UK (Promis).
The Town has a significantly above average proportion of adults categorised within the most affluent AB Social Group at 35% compared to the UK average of just 21%. Spending levels are high accordingly with the town, ranking 27 out of 200 in the UK in terms of forecast growth in retail expenditure (2018-2023).
In addition, retail expenditure within the town is boosted by a large number of Warwick University student and tourists who visit popular attractions including the Royal Pump Rooms Art Gallery & Museum, Jephson Gardens as well as nearby Warwick Castle.
As well as being home to global organisations such as National Grid, Kantar Millward Brown and Wolseley, Leamington Spa also boast one of the strongest clusters of video game companies in the UK. There are multiple gaming businesses operating out of the Town Centre, earning the name Silicon Spa. Facebook’s owner, Meta, has taken 40,000 sq ft on Precision Park and Sumo Group has let 44,000 sq ft at Bedford Street Studios (former House of Fraser store).
Strictly by prior appointment with the sole selling agent:
Wareing & Company
Jon Blood MRICS
/
Jonathan.
The properties are available for sale freehold.
We are seeking offers for the freehold interest in all three shops based on £715,000 (Seven Hundred and Fifteen Thousand Pounds) which is reflective of a 8% Net Initial Yield allowing for purchasers costs of 5%.
Alternatively, the properties may be available individually on a long leasehold basis for a term of 980 years. Please ask agents for more information on pricing.
The property is elected for VAT purposes. It is anticipated that the investment sale will be treated as a Transfer of a Going Concern.
We understand that the property has the benefit of planning permission for User Class E purposes. Interested parties are advised to make their own enquiries of Warwick District Council Planning Department on .
- Service charge
- Ask agent
- Business rates
- Ask agent
- Use class
- E
- Listed building
- No
- Business for sale
- No
An Energy Performance certificate helps you understand the current energy efficiency of a property.
Read more about EPC requirementsAsk agent
- BREEAM rating
- Ask agent
- Environmental description
- Ask agent
Brochure
131, 133 135 Regent Street, Leamington Spa, CV32 4NX
Your search history
You have no recent searches
Disclaimer - Property reference 229816-1. The information displayed about this property comprises a property advertisement. Rightmove.co.uk makes no warranty as to the accuracy or completeness of the advertisement or any linked or associated information, and Rightmove has no control over the content. This property advertisement does not constitute property particulars. The information is provided and maintained by Clachrie Consulting Limited, Leamington Spa . Please contact the selling agent or developer directly to obtain any information which may be available under the terms of The Energy Performance of Buildings (Certificates and Inspections) (England and Wales) Regulations 2007 or the Home Report if in relation to a residential property in Scotland.

















