46 Warwick Street, Leamington Spa, CV32 5JS
Size
2,364
Tenure
Freehold
EPC
Ask agent
Parking
Ask agent
- Primary use
- Other
- Other use(s)
- High street retail
Key features
- Available immediately
- Short stay on road parking to front
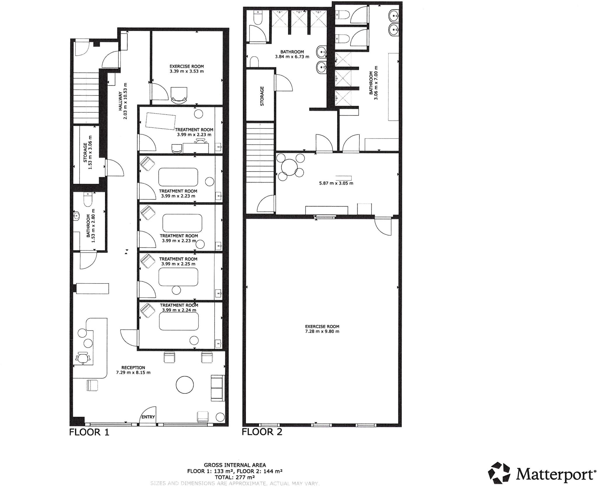
Description
The Ground floor is subject to tenants fit out but both floors are typically open plan with shower/changing room facilities and WC’s at the rear of the first floor. General spec includes:
A/C Heating and cooling.
LED Lighting.
Double frontage Shop window.
Laminate floor coverings.
Suspended ceiling.
The subject property is located on Warwick Street which is situated right in the heart of Leamington Town Centre.
The property is a short walk from Parade, the town’s primary retailing pitch and occupies a strong trading position which is popular with both day and nighttime trading. Notable nearby occupiers include Habano Coffee House, Rustiq Restaurant, Bedford Street Bar, Caffe Nero, Oliver Bonas, The Copperpot, Timpsons and Oxfam.
The property benefits form short-stay Pay & Display parking to the front.
We understand that all mains water, gas, electricity and drainage services are connected to the site however, interested parties are advised to satisfy themselves that this is the case and that they are in good working order. The agents have not tested any apparatus on site and therefore, cannot verify the conditions.
We understand that the property has the benefit of planning permission for User Class E purposes. Interested parties are advised to make their own enquiries of Warwick District Council Planning Department on .
Rateable Value: £29,500 (April 2023 List)
Rates Payable: £14,720.50 per annum
The property is available by way of a new full repairing and insuring lease for a term to be negotiated at a rent of £35,000 per annum (exclusive of VAT and all other outgoings).
Alternatively, the freehold is available at a price of £500,000.
The Money Laundering Regulations require us to conduct checks upon all Purchasers including Tenants. Prospective Purchasers will need to provide proof of identity and residence. For a company, any person owning more than 25% must provide the same.
- Service charge
- Ask agent
- Business rates
- Ask agent
- Use class
- Ask agent
- Listed building
- No
- Floors in building
- 1
- Business for sale
- No
An Energy Performance certificate helps you understand the current energy efficiency of a property.
Read more about EPC requirementsAsk agent
- BREEAM rating
- Ask agent
- Environmental description
- Ask agent
Brochure
46 Warwick Street, Leamington Spa, CV32 5JS
Your search history
You have no recent searches
Disclaimer - Property reference 337628-1. The information displayed about this property comprises a property advertisement. Rightmove.co.uk makes no warranty as to the accuracy or completeness of the advertisement or any linked or associated information, and Rightmove has no control over the content. This property advertisement does not constitute property particulars. The information is provided and maintained by Clachrie Consulting Limited, Leamington Spa . Please contact the selling agent or developer directly to obtain any information which may be available under the terms of The Energy Performance of Buildings (Certificates and Inspections) (England and Wales) Regulations 2007 or the Home Report if in relation to a residential property in Scotland.


















