Gresham Street Estate, 48 Gresham Street, London, EC2V 7AY
- SIZE AVAILABLE
998-1,996 sq ft
93-185 sq m
- SECTOR
Office to lease
- USE CLASSUse class orders: Class E
E
Lease details
- Lease available date:
- Ask agent
Key features
- Excellent City core location
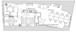
- High quality CatB office accommodation
- Fibre enabled (via Colt)
- New flexible lease directly from the Landlord
- 3rd Floor - Full Landlord CatB (with meeting room and kitchenette) - IMAGES SHOWN
- 4th Floor - soon to be refurbished - COMING SOON
Description
The period style property which forms part of Gresham Street Estate, is located in the City core and just a short walk from the Royal Exchange, Bank of England and St Paul's.
Location
Surrounded by a variety of high quality retail, including banks and eateries in nearby Cheapside and New Change. These include Cabotte, The Anthologist, Goodmans, Soho Coffee Co, Costa Coffee and Pret a Manger. The property is also a short walk from the historic building which now houses The Ned and which offers a large selection of high end restaurants and also a Hotel.
The property is served by a number of transport options, located just a short walk in any direction from an underground station, which include Moorgate to the north, St Paul's to the west, Cannon Street to the south and Bank to the east.
Viewings
By appointment only, via joint sole agents, Kinney Green and Gryphon Property Partners.
Terms
Available on a new flexible lease directly from the Landlord, for a term to be agreed.
Specifications
Air-conditioning
LED suspended lighting
Passenger lift
3rd Floor - Landlord CatB fit-out which includes modern kitchenette, lockers and glass partitioned meeting room
4th Floor - Under refurbishment, COMING SOON!
PLEASE NOTE IMAGES SHOWN ARE THE 3RD FLOOR
3rd Floor EPC C72
4th Floor EPC - D91
Energy Performance Certificates
48L3 EPC.pdfGresham Street Estate, 48 Gresham Street, London, EC2V 7AY
NEAREST STATIONS
Distances are straight line measurements from the centre of the postcode- Bank Station0.2 miles
- Mansion House Station0.2 miles
- Cannon Street Station0.3 miles
Notes
Disclaimer - Property reference 225908-2. The information displayed about this property comprises a property advertisement. Rightmove.co.uk makes no warranty as to the accuracy or completeness of the advertisement or any linked or associated information, and Rightmove has no control over the content. This property advertisement does not constitute property particulars. The information is provided and maintained by Kinney Green LLP, London. Please contact the selling agent or developer directly to obtain any information which may be available under the terms of The Energy Performance of Buildings (Certificates and Inspections) (England and Wales) Regulations 2007 or the Home Report if in relation to a residential property in Scotland.
Map data ©OpenStreetMap contributors.






