St Peter's Finger, Dorchester Road, Lytchett Minster, Dorset
Size
5,866.33
Lease length
5years
EPC
Ask agent
Parking
29
- Price per
- Primary use
- Pub
Building amenities
Additional costs may apply for some services – please check the full property description for more details.
- Parking
Key features
- Fair Maintainable Trade (FMT) turnover – £1.15M per annum net
- Rent 9.0% of net turnover
- Beautifully decorated internally with over 120 covers
- 3 fabulous separate external eating/drinking spaces
- Quality F&F throughout
- Long established reputation for quality
- Excellent kitchen facilities and layout capable of high volume/quality food
- Heart of the village location
- Large scale business with high profit potential
Description
Run for several years as a H&W managed house the pub has a strong reputation for high standards and now presents a great opportunity for an entrepreneurial operator to flex the operating model and fully realize the potential of plentiful local and tourist trade..
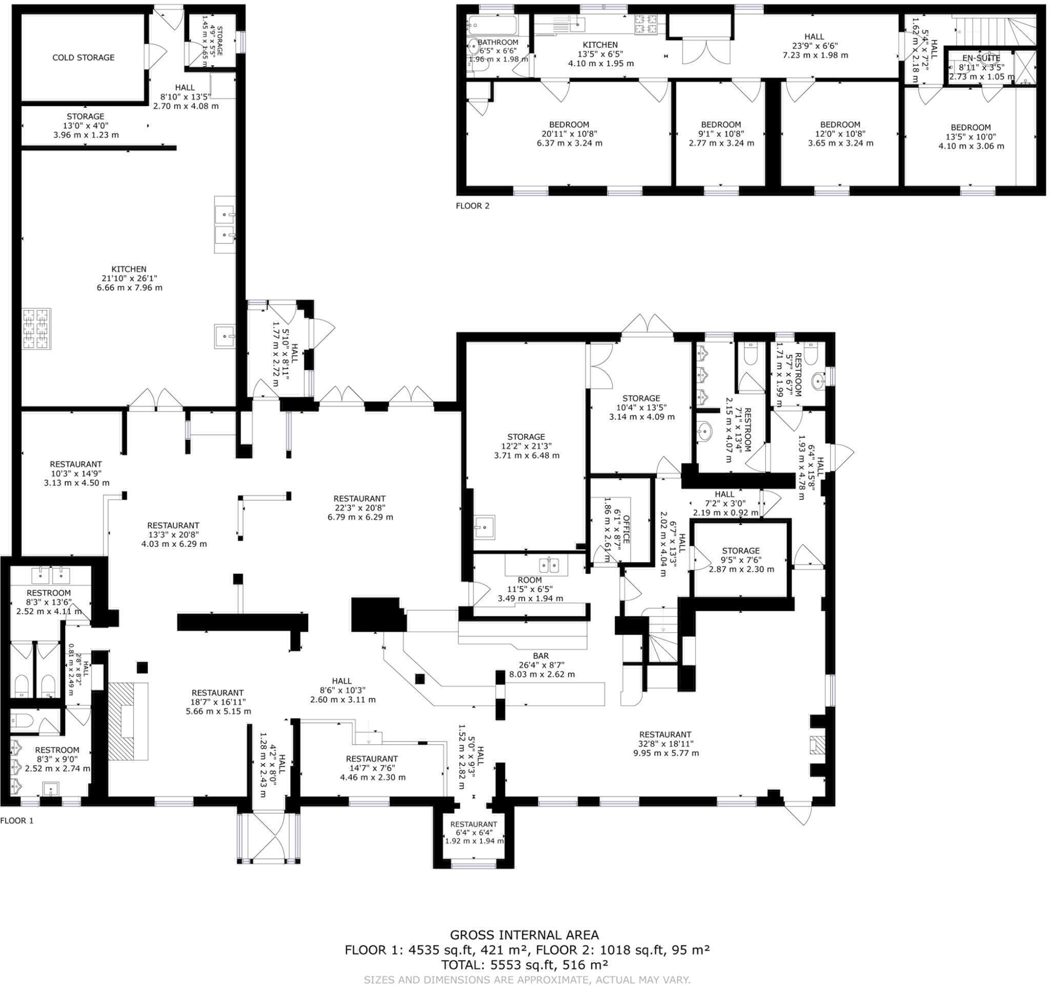
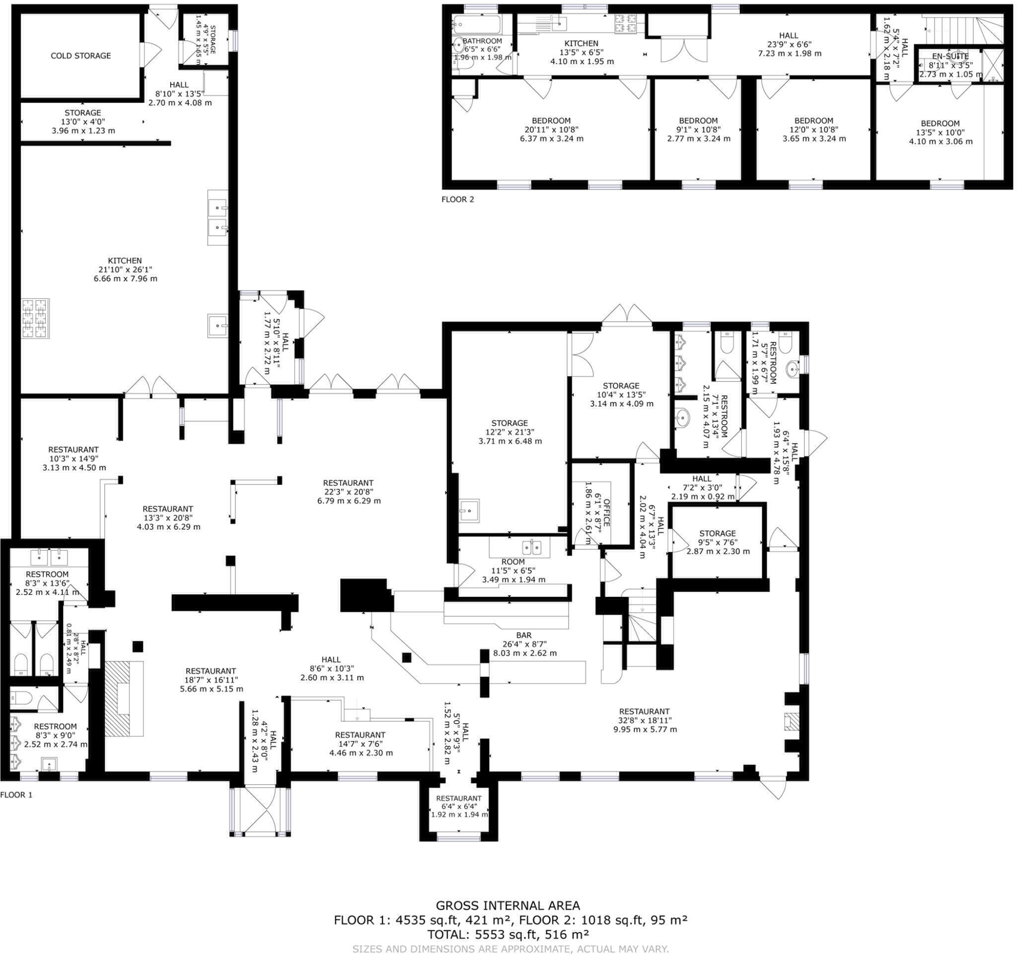
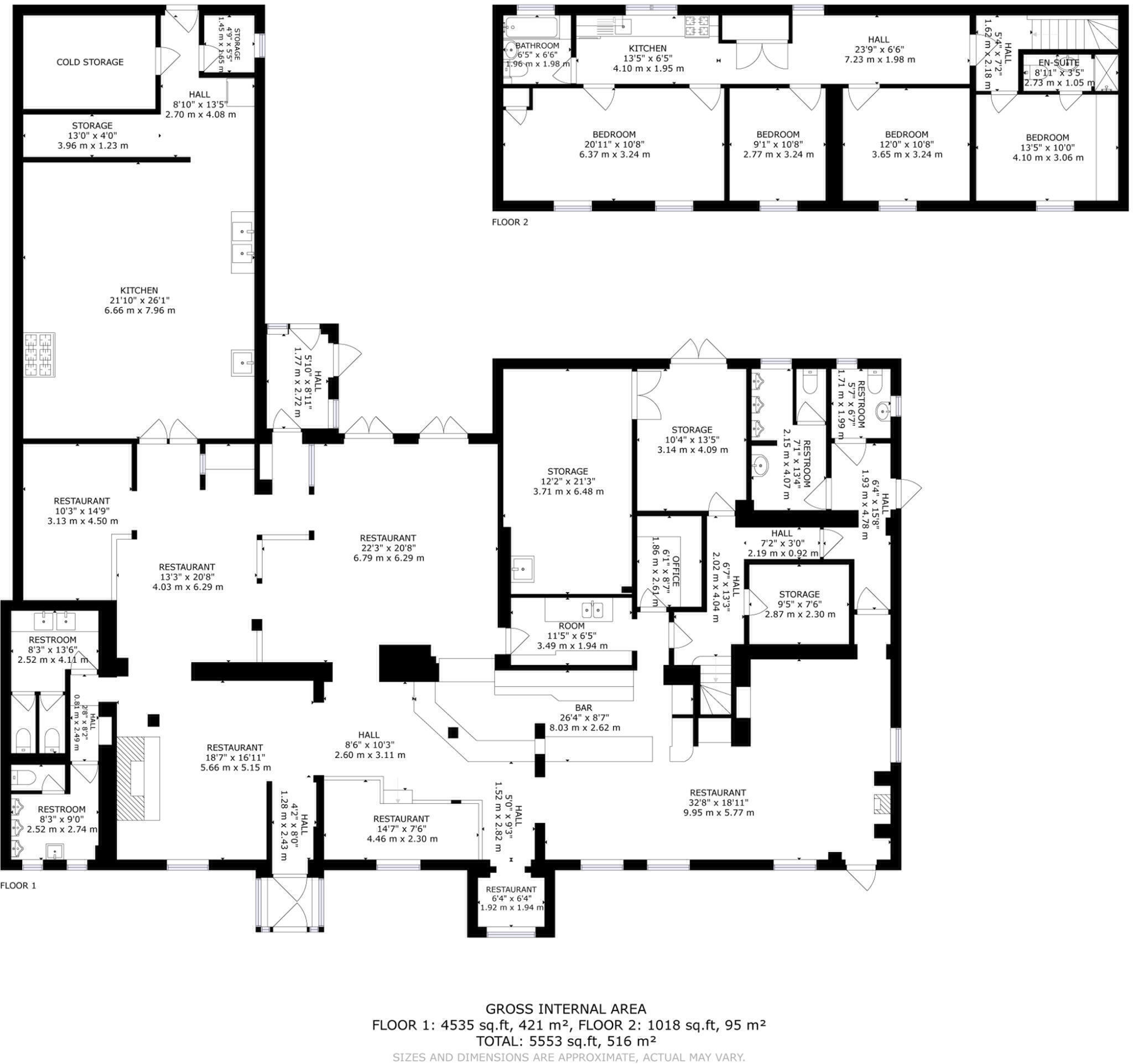
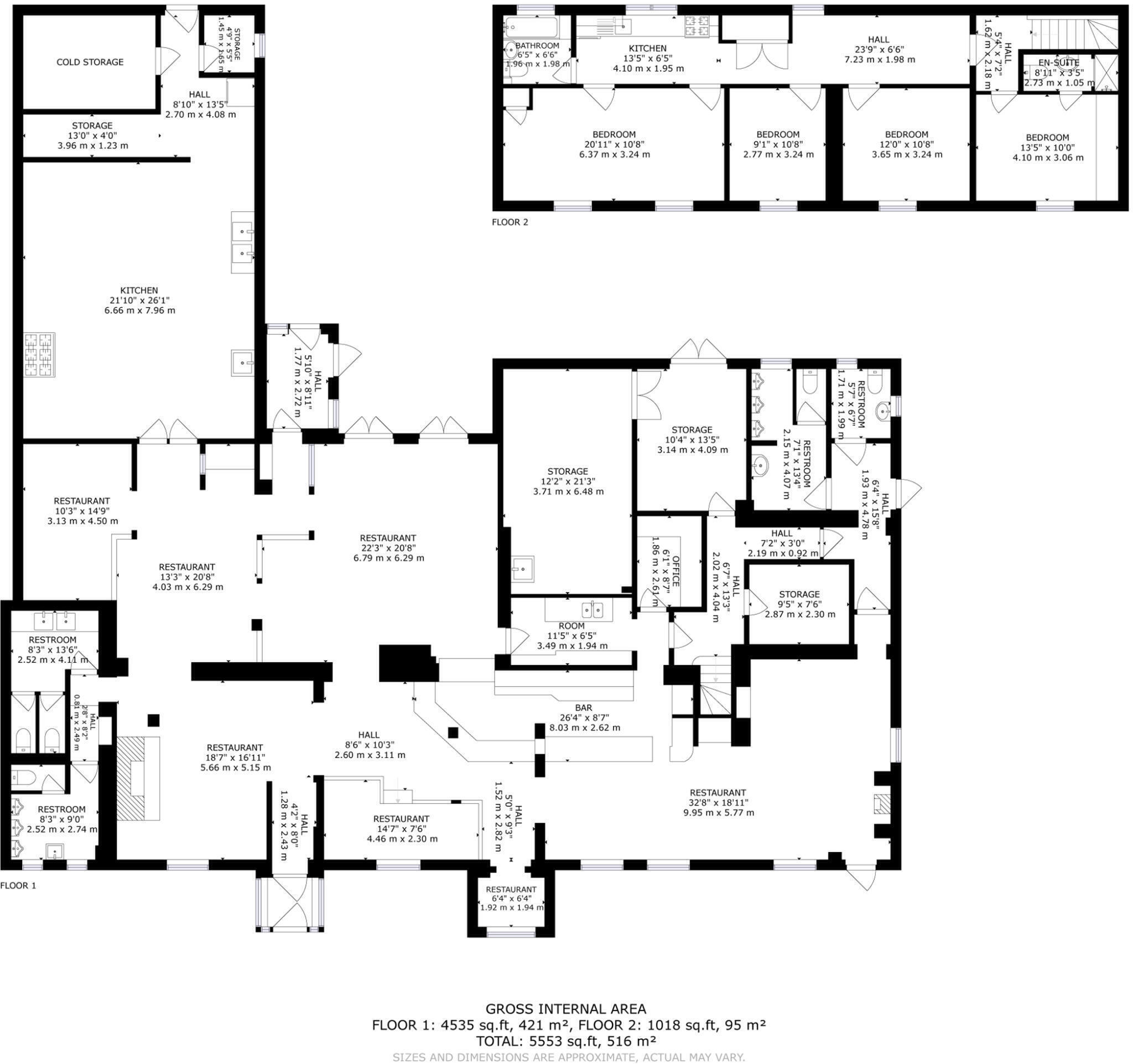
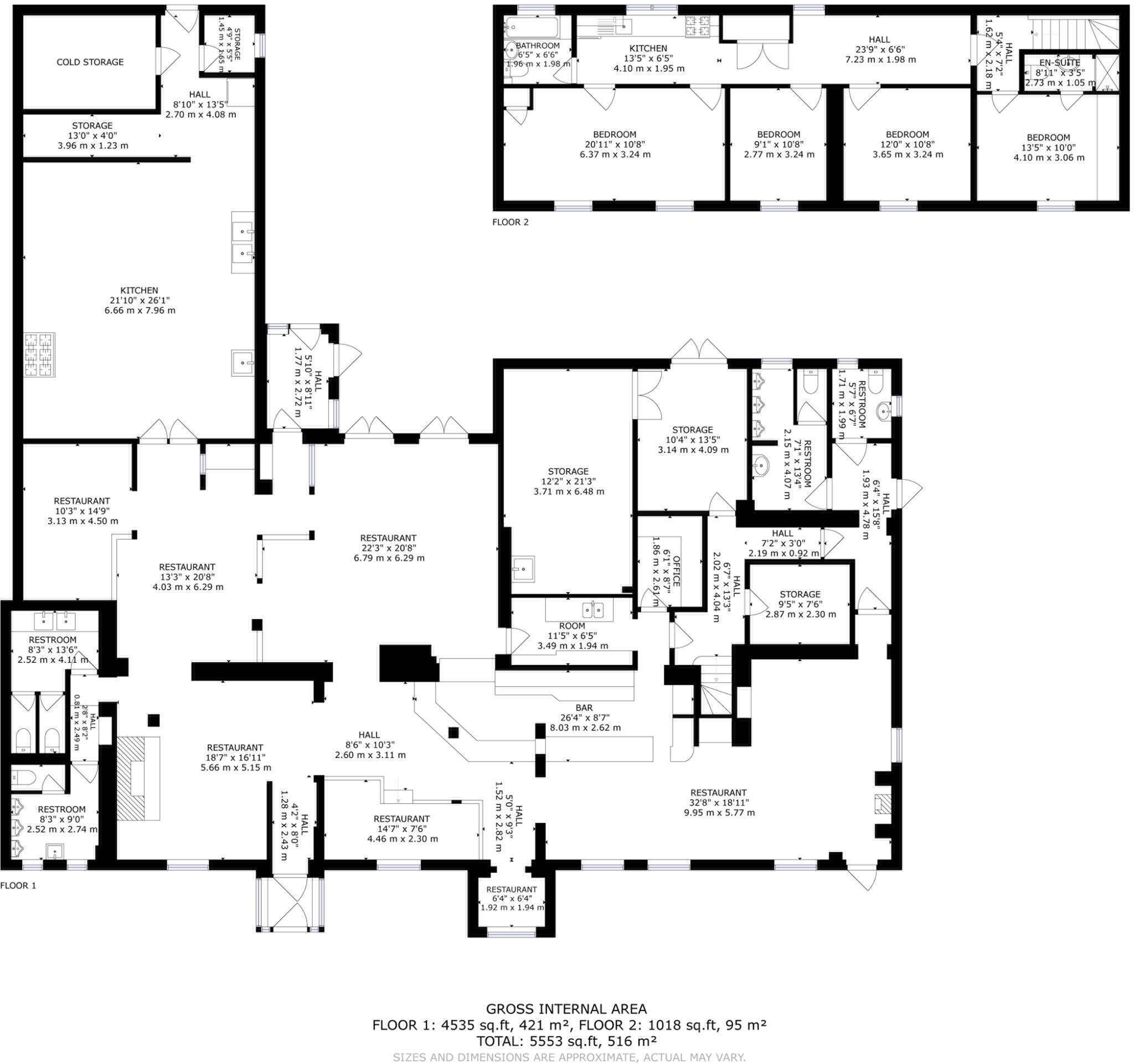
Occupying a prime location in village of Lytchett Minster close to Poole, the pub is entered through a large paved courtyard leading to the heart of the trading area. To the right is the main bar with 24 dining covers and a light and airy feel, the bar area is set up as a mix of high tables and a relaxed lounge with a feature wood burning stove. The main dining area comprises 96 covers with a pleasing and very functional mix of benches, fixed seating and tables all having a vibrant feel. Traditional touches including a second wood burning stove and mix of wooden and stone flooring add to the unique and distinctive surroundings. The high quality guest toilet facilities are adjacent to the bar, and a well fitted high capacity kitchen ensures smooth peak service. Outside there are 3 separate drinkingeating spaces taking total covers close to 300.
St Peter’s Finger Highlights:
Fair Maintainable Trade (FMT) turnover – £1.15M per annum net
Rent 9.0% of net turnover
Beautifully decorated internally with over 120 covers
3 fabulous separate external eating/drinking spaces
Quality F&F throughout
Long established reputation for quality
Excellent kitchen facilities and layout capable of high volume/quality food
Heart of the village location
Large scale business with high profit potential
Private Accommodation:
The accommodation is entered from within the pub. It consists of two double bedrooms, a lounge, bathroom/wc and kitchenette. The lounge can be converted to a further bedroom if required.
St Peter's Finger - Lytchett Minster
The St Peters Finger is situated in the centre of Lytchett Minster a busy village on the edge of Poole Bay. Local amenities include an active sports ground, rugby club and a number of holiday parks which considerably boost the local population. Other local attractions include Lychett Fields, a major RSPB wetland reserve, Upton Park which hosts regular events and Farmer Palmers Farm Park. The village is also home to the Harbour View Crematorium from which associatedwakes are regularly hosted. The pub is easily accessible via the A35 and by rail with Hamworthy station nearby.
Top Line Figures
Rent: 9.0% of net turnover, with a minimum base of £88,000
Initial Investment: minimum £50,260
Fair Maintainable Trade* (FMT) Turnover: £1.15M per annum net
Annual rent illustration based on FMT: £103,500
Estimated Operating Profit £100K (8.7%) pa based on FMT*
*Estimated figures for illustration only cannot be guaranteed
E&OE
Full Investment Breakdown**
Fixtures & Fittings: To be confirmed subject to valuation (VAT. Loan facilities are available for the purchase of fixtures and fittings).
Illustration of Year 1 Ingoings (excludes rent) Net VAT Inc VAT
Deposit £ 7,500 N/A £ 7,500
Training Fee £ 1,000 £ 200 £ 1,200
Change of DPS £ 254 £ 46 £ 300
Digital Asset Fee £ 250 £ 50 £ 300
Working Capital*** £10,000 N/A £10,000
F&F (Outright Purchase Option A) £68,800 £13,760 £82,560
F&F (Purchase Agreement Option B) £17,200 £13.760 £30,096
Total Option A £87,804 £14,056 £101,860
Total Option B £36,204 £14,056 £50,260
Additional Information
Estimated Wet/Dry Split: 45%/55%
Business Rates**** Payable: £28,392 pa
Available From: Feb 2026
Closing Date for Applications: 31/03/2026
E&OE
Trade
Currently the St Peter’s Finger is trading under Hall & Woodhouse’s Managed House division. Average sales are circa £21k per week. Consistent local wet & dry trade is boosted by strong tourist and visitor numbers all year round. The pub benefits from being in first class condition having undergone a major refurbishment in 2024. Trade volume figures are available on request
“The ideal applicant will have great hospitality experience in high volume businesses where managing and motivating a team is crucial. The business has strong bar and food trade so the ability to create repeat business is key alongside the development of effective campaigns to attract those visiting the area”
Ian Pearson
Business Development Partner
Misrepresentation
*Fair Maintainable Trade (FMT):
FMT is the level of turnover and profit that we believe that the business is capable of delivering if being operated competently. The FMT is usually calculated by the Business Development Partner for the pub to rent, who will produce a shadow profit and loss account for the business which supports the rent. A copy of the shadow profit and loss account will be provided during the recruitment process.
Code of Practice:
Please see our Code of Practice for more information on FMT and rent. The Fair Maintainable Trade is not a guarantee of levels of trade or profit that will be made from the business – we strongly recommend you seek appropriate independent legal and business advice as part of your Business Plan.
**The Full Investment Breakdown:
The Full Investment Breakdown for each public house is higher than the minimum investment we will accept. This is because potential Business Partners with the minimum investment available can still be accepted as we are able to offer them financial support for the rest of the monies.
***Working Capital:
The working capital incorporates the purchase of stock, glassware, loose catering effects and valuer fees – please note the number quoted on this website are based on estimates. The exact costs will be determined on the day you take on the public house by independent valuers and stock takers. Please see our Code of Practice for more information about investment.
****Business Rates Payable:
This figure reflects the current multipliers for 2025/2026 and the 40% hospitality relief, effective until 31/03/2026.
- Let type
- Long
- Let contract length
- 60 months
- Status
- Available
- Date available
- 05 January 2026
- Service charge
- Ask agent
- Business rates
- Ask agent
- Use class
- Ask agent
An Energy Performance certificate helps you understand the current energy efficiency of a property.
Read more about EPC requirementsAsk agent
- BREEAM rating
- Ask agent
- Environmental description
- Ask agent
Brochure
St Peter's Finger, Dorchester Road, Lytchett Minster, Dorset
Hall and Woodhouse are proud to be the leading independent regional brewer in the South of England, boasting an established pub estate of well-maintained pubs in idyllic locations including Dorset, Devon, Somerset, Wiltshire, Hampshire, and West Sussex. Learn more about how to run a pub of your own today and browse pubs available to rent near you. https://www.hall-woodhousepartnerships.co.uk/
We're excited to announce that we have been ranked as the UK's Top Family Brewer in 2023 from The Licensee Index survey results!
Each year, nearly 1,500 Business Partners across the 11 key UK Family Brewers are surveyed by KAM to compile The Licensee Index (TLI). The survey is the industry-leading sentiment tracker for the UK leased and tenanted pub sector. The survey is a useful measure for prospective Business Partners to gauge the strengths of a potential pub company. We were delighted that Hall and Woodhouse were ranked No. 1 out of the Family Brewers in this year's research. We ranked 1st in 42 of the 67 questions asked, and were only outside the top 3 in 11 of those questions. As always, we will take our results as a learning opportunity to continue to develop the ways in which we can further support our Business Partners.
Becoming a Business Partner on a tenancy with Hall and Woodhouse, is an excellent way to run your own pub. With support from a family-owned company that has nearly 250 years' experience in the brewing and hospitality sectors, we'll ensure you are set up for success from the start.
Your search history
You have no recent searches
Disclaimer - Property reference SPFG. The information displayed about this property comprises a property advertisement. Rightmove.co.uk makes no warranty as to the accuracy or completeness of the advertisement or any linked or associated information, and Rightmove has no control over the content. This property advertisement does not constitute property particulars. The information is provided and maintained by Hall and Woodhouse, Dorset. Please contact the selling agent or developer directly to obtain any information which may be available under the terms of The Energy Performance of Buildings (Certificates and Inspections) (England and Wales) Regulations 2007 or the Home Report if in relation to a residential property in Scotland.


































































