Second Floor, Gade House, 46 The Parade, Watford, WD17 1AY
Size
16,585
Lease length
Ask agent
EPC
Ask agent
Parking
Ask agent
- Price per
- Primary use
- Other leisure
Key features
- Walking distance of Watford Junction Station
- Parking in very close proximity
- Class E opportunity
Description
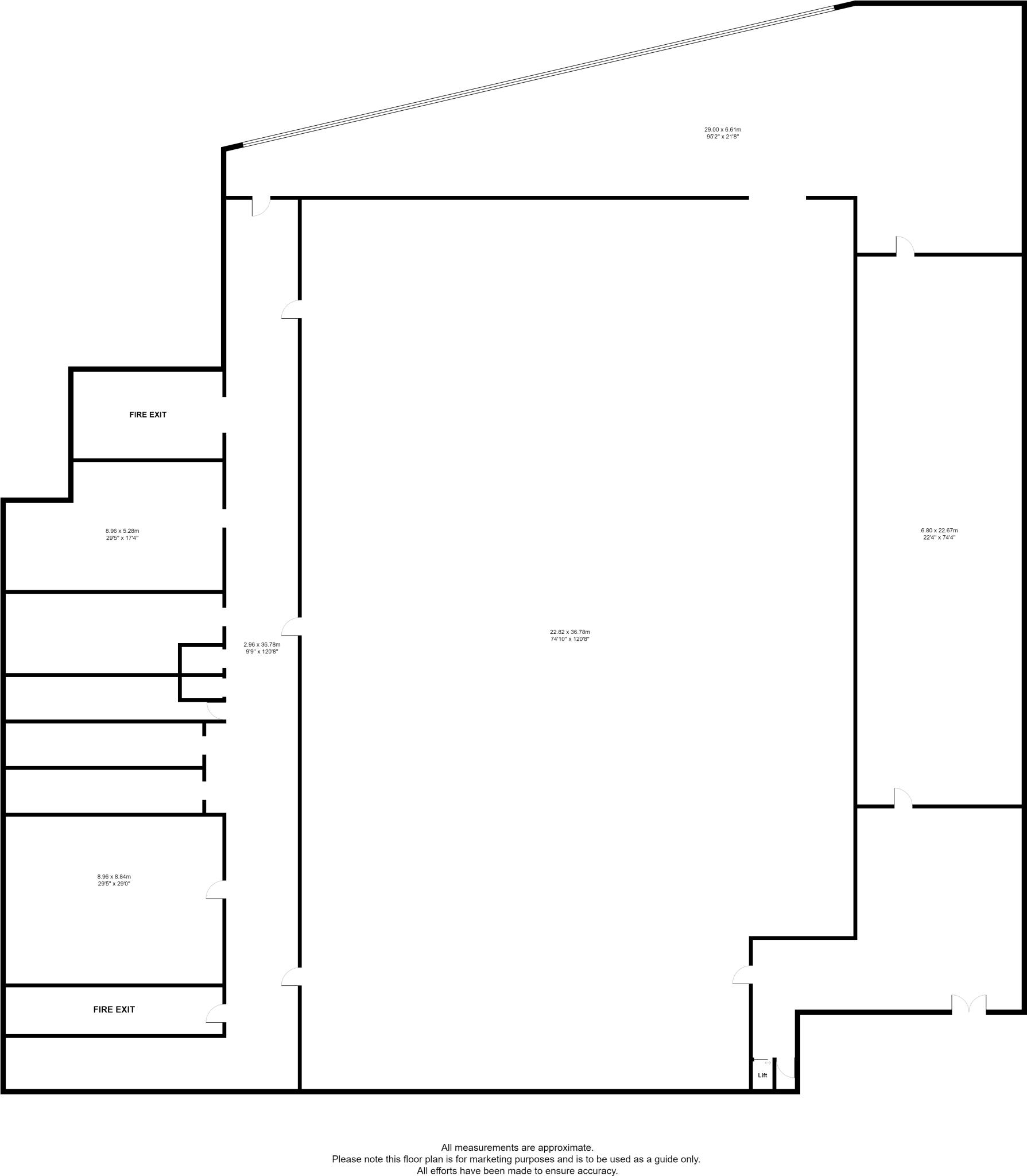
The premises are arranged over second floor comprising of approximately 16,585 sq. ft. (1,540.79 sq. m).
TERM
A new effectively full repairing and insuring lease is available for a term to be agreed.
SERVICE CHARGE
Estimated to be £1.50 per sq. ft. Full details available upon request
LOCATION
Prominently situated within the heart of the town centre retail and leisure area and close to town centre car parks including the 641 space Gade Car Park within 100 yards, as well as being within a short walk of Watford Junction railway station. The subject premises sits in the busy pedestrianised section of The Parade with nearby occupiers including Nando's, Slug & Lettuce, GDK, Walkabout, Pret A Manger.
- Let type
- Long
- Let contract length
- Ask agent
- Status
- Under offer
- Date available
- 04 September 2024
- Service charge
- £1.50
- Business rates
- Ask agent
- Use class
- Ask agent
An Energy Performance certificate helps you understand the current energy efficiency of a property.
Read more about EPC requirementsAsk agent
- BREEAM rating
- Ask agent
- Environmental description
- Ask agent
Brochure
Second Floor, Gade House, 46 The Parade, Watford, WD17 1AY
Perry Holt Property Consultants, established in 2002, has grown into one of Hertfordshire’s leading commercial property specialists, known for its expertise, reliability, and results-driven approach.
We provide a highly dedicated and tailored service to a diverse range of clients, with a particular strength in property development and regeneration projects that help shape and revitalise communities. Our expertise spans the full spectrum of commercial property, including sales, acquisitions, lettings, and development.
Our success has been built on long-standing relationships founded on integrity, strong performance, and an unwavering commitment to client satisfaction. In an ever-changing market, we pride ourselves on delivering clear, insightful, and professional advice—empowering our clients to make confident and informed decisions at every stage of their property journey.
Your search history
You have no recent searches
Disclaimer - Property reference 228692-2. The information displayed about this property comprises a property advertisement. Rightmove.co.uk makes no warranty as to the accuracy or completeness of the advertisement or any linked or associated information, and Rightmove has no control over the content. This property advertisement does not constitute property particulars. The information is provided and maintained by PERRY HOLT PROPERTY CONSULTANTS, Hertfordshire. Please contact the selling agent or developer directly to obtain any information which may be available under the terms of The Energy Performance of Buildings (Certificates and Inspections) (England and Wales) Regulations 2007 or the Home Report if in relation to a residential property in Scotland.





