Land to the rear of the Royal Anchor, The Square, Liphook, GU30 7AD
Size
57,063.6
Tenure
Freehold
EPC
Ask agent
Parking
Ask agent
- Primary use
- Commercial development
- Other use(s)
- Commercial development, Land
No floor / site plan
Key features
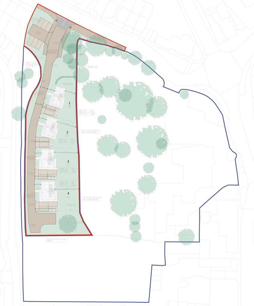
- Planning permission for four new dwellings
- Rare town centre development opportunity in Liphook, Hampshire
- Situated at the junction of Longmoor and Portsmouth (B2070) Road
- Located within close proximity to Bohunt School and recent Redrow Housing development
- Offers are invited for the freehold interest on an unconditional basis only
Description
The site comprises of a 1.31 acre development site located within the village centre of Liphook and has approximately 6,800 residents within a 1km radius of the subject site. The property is surrounded by both residential and local retail and leisure occupiers including Sainsbury’s, the Co-Operative Food and the Royal Anchor.
The area provides good connectivity with Liphook train station being 0.67 kilometres to the south, providing fast travel to London Waterloo in one hour and ten minutes.
Location
Located within the affluent village of Liphook, Hampshire 12 miles (19.4 kilometres) south of Aldershot, 21.7 miles (34.9 kilometres) north east of Portsmouth city centre and 41.7 miles (67.1 kilometres) south west of central London.
Planning
A planning submission for four new dwellings, together with new means of access and associated highway works with car parking, landscaping and associated infrastructure (27205/025) on site for the land west of the Royal Anchor was submitted in September 2023 and has now been granted. The site is situated within a Liphook Conservation Area. For further information please refer to the following planning application below;
Tenure
The land is being sold freehold with the benefit of planning permission for four new residential dwellings.
Terms
We are instructed to invite unconditional freehold offers with the benefit of vacant possession.
Services
Services strategy is outlined in the planning documents available and are subject to approval.
VAT
We are advised that VAT will be applicable on the sale of the land.
Local Authority
East Hampshire Council
Bedford Road
Petersfield
East Hampshire
GU32 3LJ
Email: planning.
Tel:
Viewings
All viewings must be made by prior appointment. For further information and all viewing requests please contact the sole selling agents Savills.
Money Laundering
Money Laundering Regulations require Savills to conduct checks upon all prospective purchasers. Prospective purchasers will need to provide proof of identity and residence.
- Service charge
- Ask agent
- Business rates
- Ask agent
- Use class
- Ask agent
- Listed building
- No
- Business for sale
- No
An Energy Performance certificate helps you understand the current energy efficiency of a property.
Read more about EPC requirementsAsk agent
- BREEAM rating
- Ask agent
- Environmental description
- Ask agent
Brochure
Land to the rear of the Royal Anchor, The Square, Liphook, GU30 7AD
Your search history
You have no recent searches
Disclaimer - Property reference 236183-1. The information displayed about this property comprises a property advertisement. Rightmove.co.uk makes no warranty as to the accuracy or completeness of the advertisement or any linked or associated information, and Rightmove has no control over the content. This property advertisement does not constitute property particulars. The information is provided and maintained by Savills National , Margaret Street - Licensed Leisure . Please contact the selling agent or developer directly to obtain any information which may be available under the terms of The Energy Performance of Buildings (Certificates and Inspections) (England and Wales) Regulations 2007 or the Home Report if in relation to a residential property in Scotland.






