Stoke House, Stubley Lane, Dronfield, S18 1PG
Size
13,750
Tenure
Freehold
EPC
Ask agent
Parking
Ask agent
- Primary use
- Other
Key features
- Freehold Industrial Investment in Dronfield, North East Derbyshire (site area of 0.948 acres (0.384 ha))
- Comprising of ten industrial units which are fully let producing a passing rent of £47,796 pa
- Located in the Dronfield area of North East Derbyshire (access from Stubley Lane)
- Low capital value (based on marketing price) at £50.90 sq ft
- Excellent potential to increase the gross income (majority of rents less than £4 sq ft)
Description
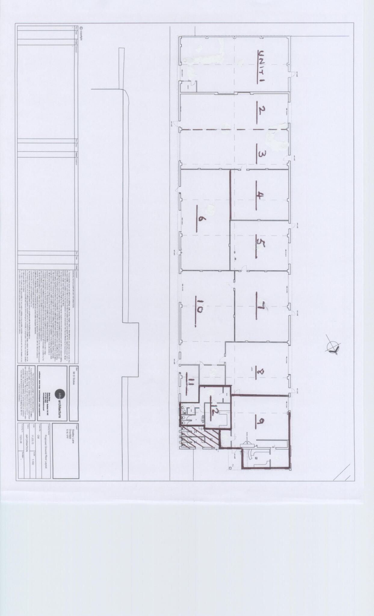
The property comprises a factory unit which has been split into 10 separate units. It is understood the factory was built in the latter part of the 20th century. The building is of brick and block construction.
The factory unit has been split into units of a range of sizes, between around 1,000 sq ft and 2,500 sq ft, with most between 1,000 sq ft and 1,500 sq ft. The units benefit from roller shutter doors of various width sizes, with a height of approximately 3.14m, 3-phase (in most units), eaves height of between 3.5m to 3.76m, concrete floors, and strip lighting. Some units benefit from self contained toilet and kitchenette facilities. There is a communal toilet block at the end of the building. All units have electric & water meters installed in each respective unit.
Externally there is a service yard providing front and rear access as well as vehicle / pedestrian access.
There is an area of storage land which has been used for landlord storage, which will be offered vacant and may have potential to generate additional income.
The site is almost L-shaped, with a strip of land extending to Stubley Lane for services. Access to the site is via Stubley Lane and via the Gunstones Bakery access. Site area of 0.948 acres (0.384 ha).
Location
The property is located off Stubley Lane in the Dronfield area of North East Derbyshire. The property is accessed through Gunstones Bakery and then around to exit to Stubley Lane. The location is on the boundary between Sheffield and Chesterfield, within a suburban area.
Gunstones Bakery is the immediate neighbour, and the area is mainly residential, although within the area there are a number of other commercial occupiers including a nursery school, dental practice, Sainsburys, and various light industrial, workshop and office occupiers.
Tenure
Freehold (new title number TBC), subject to the existing tenancies.
Tenancy Details / Rental Income
The property is fully let to established long standing tenants, subject to lease agreements, producing a total income of £47,796 pa. We are informed all tenants are holding over on periodic tenancies. Further details are available by request.
Asset Management Potential
In our opinion given the demand of the local industrial letting market, the rental levels should have scope for a potential uplift from the current levels. The majority of rents are under £4 sq ft. There is also an area of land which could be utilised or let out to increase the income.
We would advise interested parties to make their own enquiries with their professional advisers on this matter.
Price
£700,000. The property is not elected for VAT, and it is intended that the sale will be treated as a Transfer of a Going Concern (TOGC).
- Service charge
- Ask agent
- Business rates
- Ask agent
- Use class
- Ask agent
- Listed building
- Ask agent
An Energy Performance certificate helps you understand the current energy efficiency of a property.
Read more about EPC requirementsAsk agent
- BREEAM rating
- Ask agent
- Environmental description
- Ask agent
Brochure
Stoke House, Stubley Lane, Dronfield, S18 1PG
Brownill Vickers is a multi-faceted firm of Chartered Surveyors, Valuers and Commercial Estate Agents which was established in 1884. We have an unrivalled reputation for providing good quality, clear and knowledgeable advice to a broad range of clients from our offices in Sheffield and Barnsley.
We are a firm of qualified Chartered Surveyors regulated by the Royal Institution of Chartered Surveyors which means that all of our clients are assured of the very highest professional standards.
Our Director led services include valuation, lease advisory, building surveying & development, property management as well as commercial estate agency dealing with sales and lettings. We also act for clients with acquisition requirements.
We deal with all commercial sectors and have a specialist advisor team dealing with the licensed trade and leisure industries. Residential lettings and real estate investment management services also delivered.
We consider ourselves to be friendly, approachable and pride ourselves at our ability to deliver the best outcomes for our clients. Contact us today to see how we can help you.
Your search history
You have no recent searches
Disclaimer - Property reference 346496-1. The information displayed about this property comprises a property advertisement. Rightmove.co.uk makes no warranty as to the accuracy or completeness of the advertisement or any linked or associated information, and Rightmove has no control over the content. This property advertisement does not constitute property particulars. The information is provided and maintained by Brownill Vickers Limited, South Yorkshire. Please contact the selling agent or developer directly to obtain any information which may be available under the terms of The Energy Performance of Buildings (Certificates and Inspections) (England and Wales) Regulations 2007 or the Home Report if in relation to a residential property in Scotland.
















