Goldcrest R C H, 183 Dorchester Road, Weymouth, DT4 7LF
Size
Ask agent
Tenure
Freehold
EPC
Parking
Ask agent
- Primary use
- Healthcare
Key features
- Care home previously registered 26-now closed
- 25 bedrooms, all with en suite
- Detached property on main arterial route
- Popular & convenient location
- Period property with modern extensions
- Suit a variety of care uses or possible development - STPP. EPC: B
- Christie & Co Ref: 3270429
Description
A period property with more recent extensions, Goldcrest for many years traded as a care home for the elderly although ceased doing so in spring 2024 and is now being offered to the market with vacant possession.
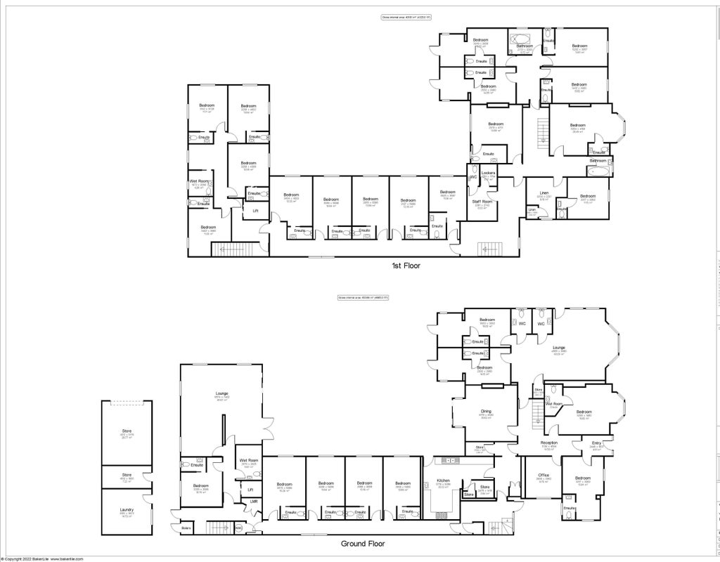
The property has accommodation which is conventionally laid out over ground and first floor levels with a total of 25 bedrooms, all of which have en suite facilities and are split with nine on the ground floor and 16 on the first floor. All of the principal communal rooms are located on the ground floor and the property benefits from a passenger lift and two stairlifts providing access to the first floor.
Externally there are gardens to the rear which include outbuildings and off road parking at the front for a number of vehicles.
Goldcrest fronts onto Dorchester Road, a main arterial route in the town and is set amongst a mixed use area with retail properties, including supermarkets, similar scale residential properties and other care homes.
It is in a prominent location, on a bus route and is surrounded by a variety of residential housing.
Weymouth is a sizeable town on the South Dorset coast, seven miles South of the county town of Dorchester and is recognised as a gateway to the Jurassic Coast, a world heritage site. Its harbour is well renowned and home to cross channel ferries and numerous other craft. Access to the town is via the A354, which connects to the A35 at Dorchester which in turn provides access to the wider area both East and West. There is also a railway station in the town which connects to London Waterloo via Bournemouth and Southampton.
The internal accommodation at the property is arranged as follows.
Ground Floor - Main entrance, hallway with staircase to the first floor, office, residents' lounge with adjacent WC's, two bedrooms with en suite and direct garden access, dining room with garden access, two further bedrooms with en suite, commercial kitchen and adjacent stores, five bedrooms with en suite, passenger lift with access to the first floor, further lounge, wet room, two additional staircases to first floor, one with chair lift.
First Floor - 16 bedrooms with en suite facilities, three additional bathrooms/wet rooms, linen store, staff room/locker room.
To the front of the property there is a tarmac parking area for approximately five vehicles.
At the side there are gates through which access can be gained leading to the rear of the property. This can provide additional parking, as well as access to the enclosed courtyard garden area which was previously for resident use.
At the rear of the plot there is a former garage which is used as storage, laundry room and freezer room. There is also a boiler room.
Goldcrest represents an excellent chance to acquire a former care home premises, which is presented in good order throughout and fitted and furnished such that it could be reopened (subject to CQC registration) with relative ease. The number of purpose built bedrooms with en suite provision and general ease of navigation around the building makes it potentially appealing to a wide variety of care uses.
Having been long established as a care home, it still lends itself to some form of care use whether regulated or otherwise given its convenient location with numerous nearby services and bus routes although any substantive changes may require planning consent to be obtained.
We are inviting offers on an asking price of £975,000 for the freehold interest in the property, with vacant possession on completion.
RegulatoryGoldcrest was formerly registered with CQC to accommodate a maximum of 26 clients. This registration has now lapsed. Any interested parties seeking to reopen/re-register the property will need to make their own enquiries of CQC prior to completion of the purchase.
- Service charge
- Ask agent
- Business rates
- Ask agent
- Use class
- Ask agent
- Listed building
- Ask agent
- Business for sale
- Yes
An Energy Performance certificate helps you understand the current energy efficiency of a property.
Read more about EPC requirementsAsk agent
- BREEAM rating
- Ask agent
- Environmental description
- Ask agent
Brochure
Goldcrest R C H, 183 Dorchester Road, Weymouth, DT4 7LF
We’re the leading specialist advisor for buying and selling businesses in our sectors - hotels, pubs, restaurants, childcare, healthcare, convenience retail, leisure and medical.
If you’re looking to buy or sell a business in our specialist sectors – from a pharmacy in Sussex to a hotel in Austria – our expert advice and collaborative support will help you achieve your goals. You may be an independent first-time buyer or a multinational adding to your portfolio; either way, you’ll discover that our personalised service is focused on helping you achieve your ambitions.
Clients have access to our carefully managed network of potential buyers. This unique database of contacts has been continually developed by our advanced IT capabilities and benefits from both our years of experience developing our network and our wide geographical coverage.
Where we work
We employ the largest team of sector specialists in the UK and the largest group of hotel specialists in Europe, providing professional brokerage and advisory services from offices in major cities across Britain and Europe. And because we’ve been doing this for over 80 years, we know our sectors and local markets inside out. We work closely with our clients to guide and conclude transactions of any size, covering hotels, restaurants and pubs, leisure, forecourts and convenience retail businesses, social care and elderly care, childcare & education facilities, dental practices and pharmacies.
Our professional services
We offer unrivalled insight, experience and expertise across your choice of services, including brokerage, consultancy, finance, development, investment, surveying, rent reviews, dispute resolution, corporate valuation, and turnaround & recovery. These services are all underpinned by our in-depth market intelligence and leading-edge technology. And we’re accredited by the Royal Institution of Chartered Surveyors (RICS), so you can trust in our professionalism.
What makes us tick
Businesses are about people, so relationships matter to us. We bring an integrity and transparency to business which can be all too rare – and that’s why people trust us. Our clients will attest to our genuine desire to help achieve their objectives, our attention to detail, and our tireless hard work on their behalf. We understand that buying a business can bring its own pressures and strains; needs can change, plans may need to be adjusted, and opportunities can come and go. But we’re always here, a constant, flexible and reliable force you can count on.
Our opening hours for all offices:
Mon – Fri, 9am – 5.30pm
Your search history
You have no recent searches
Disclaimer - Property reference 3270429-fh. The information displayed about this property comprises a property advertisement. Rightmove.co.uk makes no warranty as to the accuracy or completeness of the advertisement or any linked or associated information, and Rightmove has no control over the content. This property advertisement does not constitute property particulars. The information is provided and maintained by Christie Owen & Davies Ltd, Care. Please contact the selling agent or developer directly to obtain any information which may be available under the terms of The Energy Performance of Buildings (Certificates and Inspections) (England and Wales) Regulations 2007 or the Home Report if in relation to a residential property in Scotland.
















