Vacant Retail Unit, 6 Prestons Road, Blackwall, London, E14 9EX
Size
Ask agent
Tenure
Freehold
EPC
Parking
Ask agent
- Primary use
- High street retail
- Frontage
- Ask agent
Key features
- Available for sale or lease
- Circa 3,000 sq ft lateral unit
- Circa 300 meters from Blackwall tube (DLR)
- Densely populated residential area
- More residential developments in progress
- Use class E with potential for an array of businesses - EPC: B
- Christie & Co Ref: 2411685
Description
We are offering the opportunity to buy a use class E virtual freehold unit with a 999 year lease granted in 2013 or a take on a new lease, subject to terms such as length and rent. The unit is based on the ground floor of a large new residential development that was built in 2013 and has large residential developments also located in the immediate area.
This is being sold with vacant possession.
Blackwall is a district located in East London within the London Borough of Tower Hamlets. Situated on the north bank of the River Thames, Blackwall is known for its maritime heritage and its proximity to the Docklands area.
Blackwall is well connected by public transport with the Blackwall DLR (Docklands Light Railway) station providing easy access to other parts of London. The area is also close to major roads like the A1261 and the A13 offering convenient routes for drivers.
The area features a mix of residential properties including modern apartments and older housing. It's becoming an increasingly popular place to live due to its proximity to Canary Wharf and its developing infrastructure.
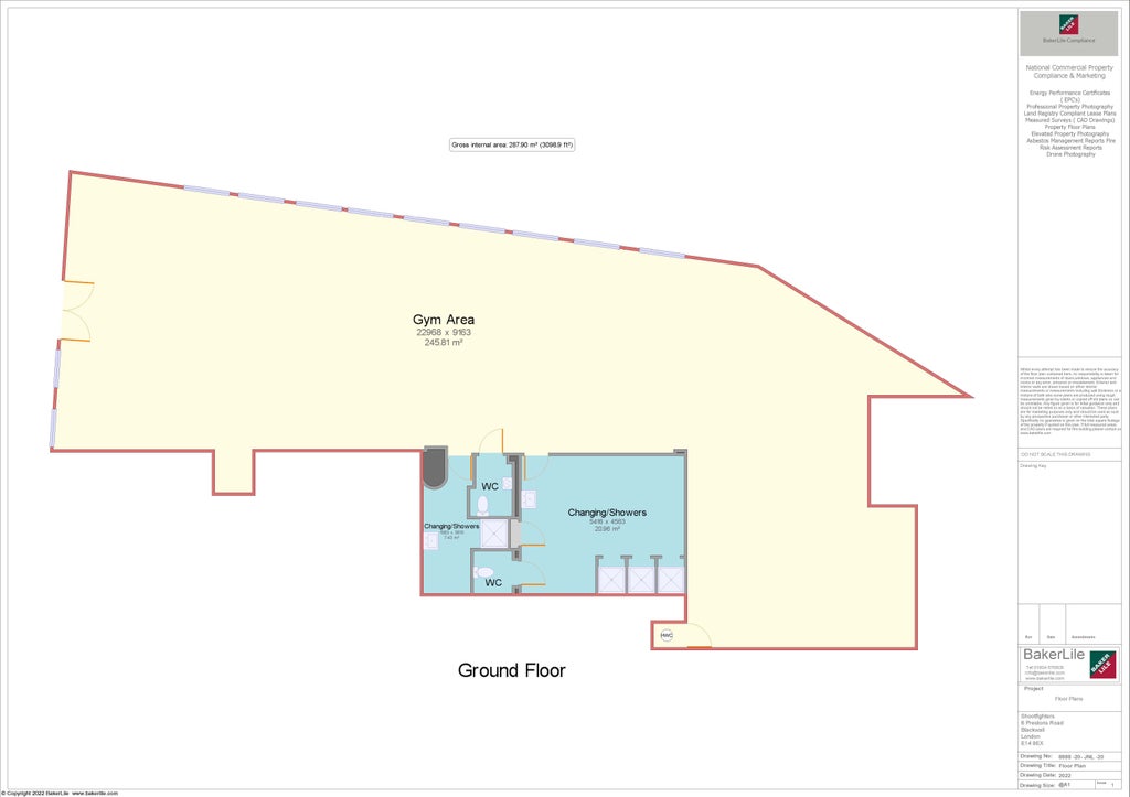
The commercial unit is circa 3,000 sq ft internally all across the ground floor with its own entrance facing onto Prestons Road.
The unit has a well configured layout with limited space lost and has good frontage to the road.
This has been previously used as a gym and is laid out as to have some small changing rooms with internal walls that can be removed.
We are advised that all fixtures & fittings are owned by the current tenants and will be removed upon a sale or new lease completing.
VAT & service chargeWe are told that the property is elected for VAT and any purchase price or rent payable would be subject to VAT being added.
There is a service charge payable to the building managers of £12,000 per annum + VAT.
A full management pack can be supplied to a successful buyer.
The unit is based at the bottom of a newly built residential development.
It has good frontage going along the A1206 which is ideal for signage for advertising any new business that takes on the premises.
This is a rare opportunity to buy a vacant unit with good presence, close to the DLR tube station and with a good layout in a built-up and developing busy East London borough.
There is an opportunity for a variety of different businesses to take on the site given its use class E classification.
There is potential for investors to look at taking on the unit and source a tenant with strong projected ROI given the desirable and busy location.
The rateable value for the unit is £65,000 as of the 1st of April 2023. This isn't the amount payable and further details should be sought from the gov VOA website.
- Service charge
- Ask agent
- Business rates
- Ask agent
- Use class
- Ask agent
- Listed building
- No
- Business for sale
- Yes
An Energy Performance certificate helps you understand the current energy efficiency of a property.
Read more about EPC requirementsAsk agent
- BREEAM rating
- Ask agent
- Environmental description
- Ask agent
Vacant Retail Unit, 6 Prestons Road, Blackwall, London, E14 9EX
We’re the leading specialist advisor for buying and selling businesses in our sectors - hotels, pubs, restaurants, childcare, healthcare, convenience retail, leisure and medical.
If you’re looking to buy or sell a business in our specialist sectors – from a pharmacy in Sussex to a hotel in Austria – our expert advice and collaborative support will help you achieve your goals. You may be an independent first-time buyer or a multinational adding to your portfolio; either way, you’ll discover that our personalised service is focused on helping you achieve your ambitions.
Clients have access to our carefully managed network of potential buyers. This unique database of contacts has been continually developed by our advanced IT capabilities and benefits from both our years of experience developing our network and our wide geographical coverage.
Where we work
We employ the largest team of sector specialists in the UK and the largest group of hotel specialists in Europe, providing professional brokerage and advisory services from offices in major cities across Britain and Europe. And because we’ve been doing this for over 80 years, we know our sectors and local markets inside out. We work closely with our clients to guide and conclude transactions of any size, covering hotels, restaurants and pubs, leisure, forecourts and convenience retail businesses, social care and elderly care, childcare & education facilities, dental practices and pharmacies.
Our professional services
We offer unrivalled insight, experience and expertise across your choice of services, including brokerage, consultancy, finance, development, investment, surveying, rent reviews, dispute resolution, corporate valuation, and turnaround & recovery. These services are all underpinned by our in-depth market intelligence and leading-edge technology. And we’re accredited by the Royal Institution of Chartered Surveyors (RICS), so you can trust in our professionalism.
What makes us tick
Businesses are about people, so relationships matter to us. We bring an integrity and transparency to business which can be all too rare – and that’s why people trust us. Our clients will attest to our genuine desire to help achieve their objectives, our attention to detail, and our tireless hard work on their behalf. We understand that buying a business can bring its own pressures and strains; needs can change, plans may need to be adjusted, and opportunities can come and go. But we’re always here, a constant, flexible and reliable force you can count on.
Our opening hours for all offices:
Mon – Fri, 9am – 5.30pm
Your search history
You have no recent searches
Disclaimer - Property reference 2411685-fh. The information displayed about this property comprises a property advertisement. Rightmove.co.uk makes no warranty as to the accuracy or completeness of the advertisement or any linked or associated information, and Rightmove has no control over the content. This property advertisement does not constitute property particulars. The information is provided and maintained by Christie & Co, Retail. Please contact the selling agent or developer directly to obtain any information which may be available under the terms of The Energy Performance of Buildings (Certificates and Inspections) (England and Wales) Regulations 2007 or the Home Report if in relation to a residential property in Scotland.






