Woods of Whitchurch, Whitchurch, Ross-on-Wye, HR9 6DJ
Size
Ask agent
Tenure
Freehold
EPC
Parking
Ask agent
- Primary use
- Convenience store
- Frontage
- Ask agent
Key features
- Attractive mixed use premises
- Thriving shop & Cafe with 22 covers
- Located in the heart of Whitchurch Village
- Superb location close to A40 & M50
- Turnover ÂŁ843,829
- Two bedroom accommodation, EPC Rating C
- Christie & Co Ref: 3410532
Description
Woods of Whitchurch is a tastefully presented Village Store, Café & Delicatessen with custom made furniture from Cornwall throughout.
The property has always traded as a village store supplying hot & cold foods, a variety of alcohol and fresh local veg along with a wide range of goods and produce. The store also benefits from tourists and visitors.
The property is set back from the pavement and benefits from significant window frontage, which is ideal for displays and advertising.
Woods of Whitchurch is located in the heart of the popular village in Herefordshire situated on the A40, connecting nearby Ross-on-Wye to the Welsh town of Monmouth. The village itself attracts a huge amount of tourists each year. Monmouth and Ross-on-Wye have excellent schools and has an attractive traditional market shopping area.
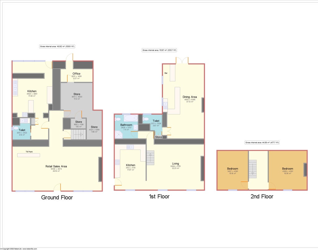
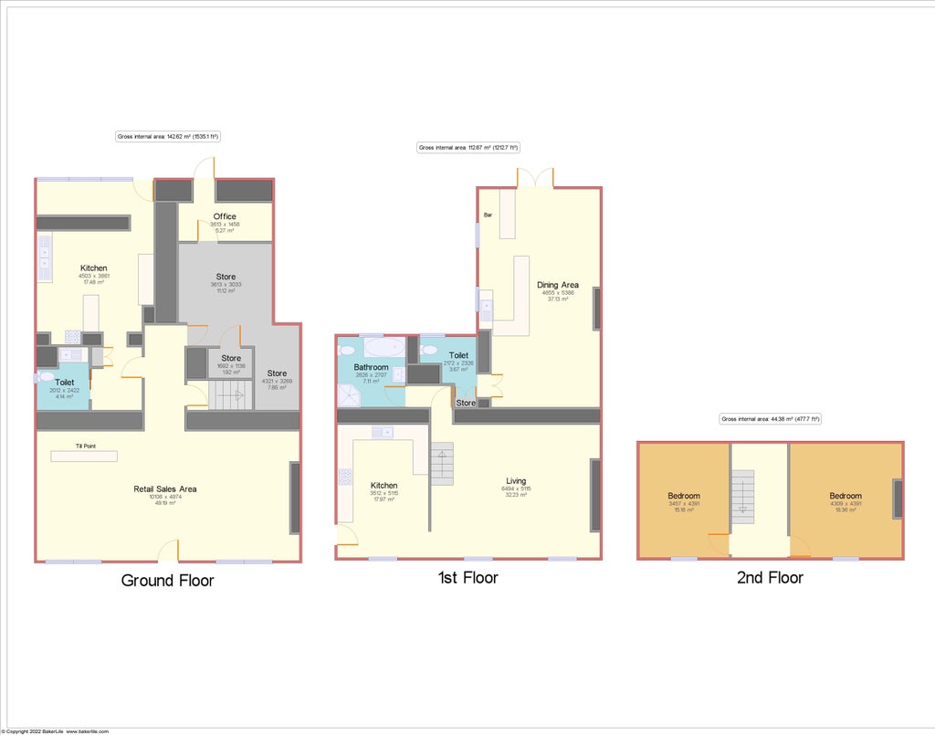
Internal DetailsDownstairs comprises of a well stocked shop, selling convenience items, groceries & local produce. Towards the rear of the shop you will find the well fitted out commercial kitchen, staff cloakroom and storage area.
The café can be found on the first floor selling an extensive menu including a selection of hot drinks, hot foods, cakes, pastries and sandwiches. The café has a total of 22 covers, with further customer seating in the rear garden.
The fixtures and fittings are being sold with the business.
Owner's AccommodationThe business is being offered with owners accommodation which is comprised of two double bedrooms, open plan kitchen/breakfast room, living room and bathroom all offered to high standard.
The OpportunityWoods of Whitchurch is a superb opportunity to acquire a property with both commercial and residential. It is currently a shop, cafe and delicatessen with a two bedroom owners accommodation that has been highly refurbished throughout.
There is a fantastic newly landscaped rear garden with outside customer seating.
Woods of Whitchurch is a thriving business within the local community and receiving a lot of local support.
The business is currently run with 6 full-time members of staff and the current owner.
Trading InformationFull accounts and sales figures are available on request.
Trading HoursCurrent Opening times are - Monday 7am to 6pm, Tuesday to Saturday 7am to 8pm and Sunday 8am to 3pm. With licence to trade 7am-8pm Sunday to Thursday and 7am-10pm Friday-Saturday.
TenureThe business is being sold on a Freehold basis.
- Service charge
- Ask agent
- Business rates
- Ask agent
- Use class
- Ask agent
- Listed building
- No
- Business for sale
- Yes
An Energy Performance certificate helps you understand the current energy efficiency of a property.
Read more about EPC requirementsAsk agent
- BREEAM rating
- Ask agent
- Environmental description
- Ask agent
Brochure
We’re the leading specialist advisor for buying and selling businesses in our sectors - hotels, pubs, restaurants, childcare, healthcare, convenience retail, leisure and medical.
If you’re looking to buy or sell a business in our specialist sectors – from a pharmacy in Sussex to a hotel in Austria – our expert advice and collaborative support will help you achieve your goals. You may be an independent first-time buyer or a multinational adding to your portfolio; either way, you’ll discover that our personalised service is focused on helping you achieve your ambitions.
Clients have access to our carefully managed network of potential buyers. This unique database of contacts has been continually developed by our advanced IT capabilities and benefits from both our years of experience developing our network and our wide geographical coverage.
Where we work
We employ the largest team of sector specialists in the UK and the largest group of hotel specialists in Europe, providing professional brokerage and advisory services from offices in major cities across Britain and Europe. And because we’ve been doing this for over 80 years, we know our sectors and local markets inside out. We work closely with our clients to guide and conclude transactions of any size, covering hotels, restaurants and pubs, leisure, forecourts and convenience retail businesses, social care and elderly care, childcare & education facilities, dental practices and pharmacies.
Our professional services
We offer unrivalled insight, experience and expertise across your choice of services, including brokerage, consultancy, finance, development, investment, surveying, rent reviews, dispute resolution, corporate valuation, and turnaround & recovery. These services are all underpinned by our in-depth market intelligence and leading-edge technology. And we’re accredited by the Royal Institution of Chartered Surveyors (RICS), so you can trust in our professionalism.
What makes us tick
Businesses are about people, so relationships matter to us. We bring an integrity and transparency to business which can be all too rare – and that’s why people trust us. Our clients will attest to our genuine desire to help achieve their objectives, our attention to detail, and our tireless hard work on their behalf. We understand that buying a business can bring its own pressures and strains; needs can change, plans may need to be adjusted, and opportunities can come and go. But we’re always here, a constant, flexible and reliable force you can count on.
Our opening hours for all offices:
Mon – Fri, 9am – 5.30pm
Your search history
You have no recent searches
Disclaimer - Property reference 3410532-fh. The information displayed about this property comprises a property advertisement. Rightmove.co.uk makes no warranty as to the accuracy or completeness of the advertisement or any linked or associated information, and Rightmove has no control over the content. This property advertisement does not constitute property particulars. The information is provided and maintained by Christie Owen & Davies Ltd, Retail. Please contact the selling agent or developer directly to obtain any information which may be available under the terms of The Energy Performance of Buildings (Certificates and Inspections) (England and Wales) Regulations 2007 or the Home Report if in relation to a residential property in Scotland.























