Unit 2, Vulcan Way New Addington, Croydon, CR0 9UG
Size
Ask agent
Tenure
Freehold
EPC
Parking
Ask agent
- Primary use
- Light industrial
Key features
- Sold with vacant possession
- Currently used as a bakery
- 6 Parking spaces
- Internal area c1152 sqm
- Outbuilding with additional storage
- EPC rating C
- Christie & Co Ref: 3818342
Description
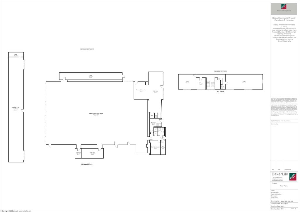
The building is currently operated as a Bakery but is offered to the market with full vacant possession on exchange.
This is is an industrial unit with plastic coated corrugated steel sheeting, aluminium doors and UPVC windows. The unit has rear vehicular access with six car parking bays.
Internally the left hand unit is currently being used as a bakery, storage and offices. The right hand unit is being used as a café. There is also a rear outbuilding used for the purpose of storage.
Internally to the ground floor left hand unit there is an industrial area, four store areas within the industrial area, two stores off of the entrance hall and w.c’s.
To the first floor of the left hand unit there is one storeroom, three office areas, a w.c and first floor eaves storage.
Situated on Vulcan Way in New Addington approximately 5 miles South-East of Croydon and less than 10 minutes drive from Biggin Hill Airport. It is well positioned for access to the national motorway network (M25/M23) and New Addington Tram Stop.
Fixtures & FittingsA list of fixtures and fittings included will be provided by the sellers solicitor.
The OpportunityWorkshop / warehouse with c1152 sqm of internal floor area for sale. Offered with full vacant possession. There is parking available on site.
TenureOffers are being sought for the freehold interest with vacant possession.
- Clear height
- Ask agent
- Yard depth
- Ask agent
- Service charge
- Ask agent
- Business rates
- Ask agent
- Use class
- Ask agent
- Listed building
- Ask agent
- Business for sale
- Yes
An Energy Performance certificate helps you understand the current energy efficiency of a property.
Read more about EPC requirementsAsk agent
- BREEAM rating
- Ask agent
- Environmental description
- Ask agent
Brochure
Unit 2, Vulcan Way New Addington, Croydon, CR0 9UG
We’re the leading specialist advisor for buying and selling businesses in our sectors - hotels, pubs, restaurants, childcare, healthcare, convenience retail, leisure and medical.
If you’re looking to buy or sell a business in our specialist sectors – from a pharmacy in Sussex to a hotel in Austria – our expert advice and collaborative support will help you achieve your goals. You may be an independent first-time buyer or a multinational adding to your portfolio; either way, you’ll discover that our personalised service is focused on helping you achieve your ambitions.
Clients have access to our carefully managed network of potential buyers. This unique database of contacts has been continually developed by our advanced IT capabilities and benefits from both our years of experience developing our network and our wide geographical coverage.
Where we work
We employ the largest team of sector specialists in the UK and the largest group of hotel specialists in Europe, providing professional brokerage and advisory services from offices in major cities across Britain and Europe. And because we’ve been doing this for over 80 years, we know our sectors and local markets inside out. We work closely with our clients to guide and conclude transactions of any size, covering hotels, restaurants and pubs, leisure, forecourts and convenience retail businesses, social care and elderly care, childcare & education facilities, dental practices and pharmacies.
Our professional services
We offer unrivalled insight, experience and expertise across your choice of services, including brokerage, consultancy, finance, development, investment, surveying, rent reviews, dispute resolution, corporate valuation, and turnaround & recovery. These services are all underpinned by our in-depth market intelligence and leading-edge technology. And we’re accredited by the Royal Institution of Chartered Surveyors (RICS), so you can trust in our professionalism.
What makes us tick
Businesses are about people, so relationships matter to us. We bring an integrity and transparency to business which can be all too rare – and that’s why people trust us. Our clients will attest to our genuine desire to help achieve their objectives, our attention to detail, and our tireless hard work on their behalf. We understand that buying a business can bring its own pressures and strains; needs can change, plans may need to be adjusted, and opportunities can come and go. But we’re always here, a constant, flexible and reliable force you can count on.
Our opening hours for all offices:
Mon – Fri, 9am – 5.30pm
Your search history
You have no recent searches
Disclaimer - Property reference 3818342-fh. The information displayed about this property comprises a property advertisement. Rightmove.co.uk makes no warranty as to the accuracy or completeness of the advertisement or any linked or associated information, and Rightmove has no control over the content. This property advertisement does not constitute property particulars. The information is provided and maintained by Christie Owen & Davies Ltd, Retail. Please contact the selling agent or developer directly to obtain any information which may be available under the terms of The Energy Performance of Buildings (Certificates and Inspections) (England and Wales) Regulations 2007 or the Home Report if in relation to a residential property in Scotland.












