Morrisons Daily, 36 The parade, Leamington, CV32 4DN
Size
Ask agent
Tenure
Leasehold
EPC
Parking
Ask agent
- Primary use
- High street retail
- Frontage
- Ask agent
Key features
- 20 year lease
- £50,000 annual rent
- Lease outside the act
- Advised weekly sales of £15,000
- Modern fitted store
- Energy rating E
- Annual rent: £50,000
- Christie & Co Ref: 5813168
Description
This Morrisons Daily store is a well-sized convenience outlet in a prime Leamington Spa location, benefiting from strong local demand. Recently refurbished to a high standard, it offers a modern, visually appealing environment and efficient layout. Surrounded by residential properties and close to key amenities, the store presents excellent potential for growth through additional services such as lottery, parcel collection, and click-and-collect.
LocationSituated on The Parade, one of Leamington Spa’s busiest and most prominent retail streets, the store enjoys exceptional visibility and consistent footfall. The area is a thriving mix of residential housing, offices, and leisure facilities, making it an ideal convenience hub for the local community. Excellent transport links, including nearby bus routes and easy access to major roads, ensure strong passing trade throughout the day.
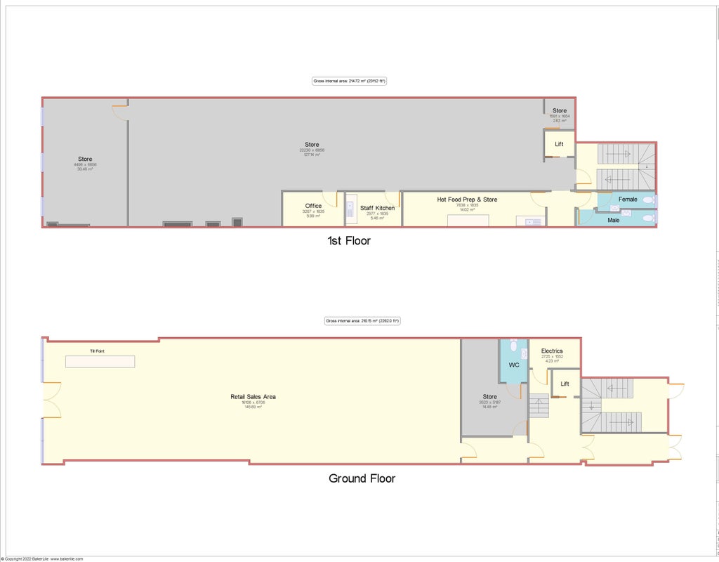
Internal DetailsThe store features an open-plan sales area of approximately 1,570 sq. ft (168 sq. m), with chilled aisles positioned along the perimeter for optimal product display and customer flow. The layout is designed for operational efficiency and a pleasant shopping experience.
The OpportunityOpportunity to acquire a store in a central location
Staff12 members of staff will transfer under TUPE
Trading InformationAdvised on weekly sales of £15,000
Trading HoursThursday 7 am–12 pm
Friday 6 am–2 am
Saturday 6 am–2 am
Sunday 6 am–2 am
Monday 7 am–12 pm
Tuesday 7 am–12 pm
Wednesday 7 am–12 pm
Available on a new 20-year lease at a rental of £50,000 per annum, commencing September 2025.
TenancyThe lease is being created outside the act.
Business Rates£58,500 Rateable Value
£16,000 payable
- Service charge
- Ask agent
- Business rates
- Ask agent
- Use class
- Ask agent
- Listed building
- No
- Business for sale
- Yes
- Tenure
- Leasehold
- Length of lease
- Ask agent
An Energy Performance certificate helps you understand the current energy efficiency of a property.
Read more about EPC requirementsAsk agent
- BREEAM rating
- Ask agent
- Environmental description
- Ask agent
Morrisons Daily, 36 The parade, Leamington, CV32 4DN
We’re the leading specialist advisor for buying and selling businesses in our sectors - hotels, pubs, restaurants, childcare, healthcare, convenience retail, leisure and medical.
If you’re looking to buy or sell a business in our specialist sectors – from a pharmacy in Sussex to a hotel in Austria – our expert advice and collaborative support will help you achieve your goals. You may be an independent first-time buyer or a multinational adding to your portfolio; either way, you’ll discover that our personalised service is focused on helping you achieve your ambitions.
Clients have access to our carefully managed network of potential buyers. This unique database of contacts has been continually developed by our advanced IT capabilities and benefits from both our years of experience developing our network and our wide geographical coverage.
Where we work
We employ the largest team of sector specialists in the UK and the largest group of hotel specialists in Europe, providing professional brokerage and advisory services from offices in major cities across Britain and Europe. And because we’ve been doing this for over 80 years, we know our sectors and local markets inside out. We work closely with our clients to guide and conclude transactions of any size, covering hotels, restaurants and pubs, leisure, forecourts and convenience retail businesses, social care and elderly care, childcare & education facilities, dental practices and pharmacies.
Our professional services
We offer unrivalled insight, experience and expertise across your choice of services, including brokerage, consultancy, finance, development, investment, surveying, rent reviews, dispute resolution, corporate valuation, and turnaround & recovery. These services are all underpinned by our in-depth market intelligence and leading-edge technology. And we’re accredited by the Royal Institution of Chartered Surveyors (RICS), so you can trust in our professionalism.
What makes us tick
Businesses are about people, so relationships matter to us. We bring an integrity and transparency to business which can be all too rare – and that’s why people trust us. Our clients will attest to our genuine desire to help achieve their objectives, our attention to detail, and our tireless hard work on their behalf. We understand that buying a business can bring its own pressures and strains; needs can change, plans may need to be adjusted, and opportunities can come and go. But we’re always here, a constant, flexible and reliable force you can count on.
Our opening hours for all offices:
Mon – Fri, 9am – 5.30pm
Your search history
You have no recent searches
Disclaimer - Property reference 5813168-lh. The information displayed about this property comprises a property advertisement. Rightmove.co.uk makes no warranty as to the accuracy or completeness of the advertisement or any linked or associated information, and Rightmove has no control over the content. This property advertisement does not constitute property particulars. The information is provided and maintained by Christie & Co, Retail. Please contact the selling agent or developer directly to obtain any information which may be available under the terms of The Energy Performance of Buildings (Certificates and Inspections) (England and Wales) Regulations 2007 or the Home Report if in relation to a residential property in Scotland.















