Ouse Bridge House, Dubwath, Bassenthwaite Lake, Keswick, Cumbria, CA13 9YD
Size
Ask agent
Tenure
Freehold
EPC
Parking
Ask agent
- Primary use
- Hotel
Key features
- Planning consent: guest house or holiday let
- Proven trading location with parking
- Owner-operated lifestyle business opportunity
- Guest house or holiday let opportunity
- Character property with large garden
- Established business, overlooking the lake. Energy Rating D
- Christie & Co Ref: 6445211
Description
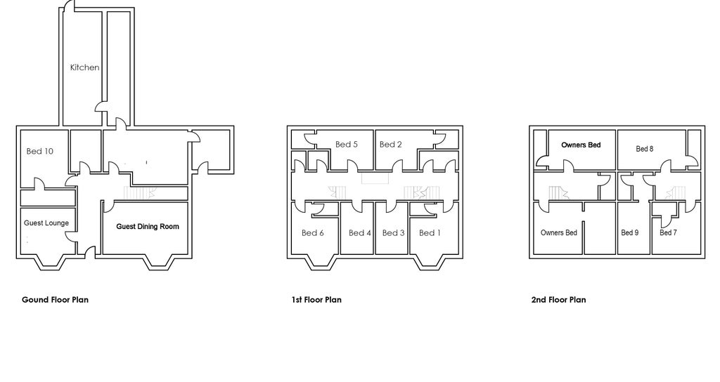
Ouse Bridge House is the owner’s family home. It has a total of twelve bedrooms, nine are currently used for guests and three are used by the owners. All but one of the bedrooms have ensuite facilities and in total six bedrooms benefit from views of Bassenthwaite Lake and to the imposing skyline of Skiddaw and Ullock Pike. Ouse Bridge House also benefits from ample parking for a dozen cars and a large garden to the rear.
LocationOuse Bridge House is located just yards away from the northern shore of Bassenthwaite Lake in the northwest of the Lake District National Park with easy access to the market towns of Keswick and Cockermouth.
The guest house is well positioned to capture the lakeside demand year round and is an ideal location for visitors wanting to explore the Lake District on foot, by car, on bicycles or on the water as well as being well served with regular local buses.
Ouse Bridge House is a very popular, easy to manage guest house that also makes a great family home for the owner/operator.
Planning consent allows the owners to operate the business as either a self contained holiday let, a guest house or the property can be used as a permanent residence. Further details available on request.
Ouse Bridge House is a large, detached, Victorian residence which retains many of the original features including high ceilings, large bay windows and impressive hallway and staircase.
Ground FloorThe porch opens to the hallway. To the front of the property on the ground floor there is a large breakfast room (18 covers) with bay window and a guest lounge also with large bay window. To the rear of the ground floor is an accessible guest bedroom, with an ensuite shower room.
From the hallway a door opens to the large owner’s lounge with views to the garden. To the side is the owner’s office and music room with door to car park. To the rear is a large, well equipped, kitchen with fitted units, range cooker, fridges and stainless-steel work surfaces. A back door leads from the kitchen to the patio and garden. A utility room houses washing machine and tumble drier.
There are stairs leading to the first-floor landing.
There are 12 bedrooms, seven are lake view, with five garden view.
There are eight ensuite shower rooms, two ensuite bathrooms and two rooms with private, external bath/shower rooms.
To the front is a large, private car park that comfortably accommodates 12 vehicles.
To the rear is a large lawned garden with patio area and fruit trees.
The owner's currently use three of the bedrooms:
One bedroom suite with lake view, dressing room and ensuite shower room.
One bedroom (family size) with en suite bathroom.
One bedroom with lake view and adjacent private bathroom.
Ouse Bridge House is a welcoming, family run, boutique guest house that offers guests welcoming and homely accommodation in an excellent location from which can be enjoyed all the Lake District has to offer and especially the great outdoors.
The current owners have built the business and benefit from many returning guests, excellent reviews and word of mouth recommendations, allowing them to maintain an excellent occupancy rate all year round, whilst finding time for them to enjoy family life in this beautiful corner of the Lake District.
This is an excellent opportunity for a new owner to acquire a well-established business with the opportunity to operate it in its existing guest house format or to operate it as a single self catering holiday let. Planning consent also allows the property to be used as a permanent residential property. Planning consent details available on request.
The business is currently traded as a bed and breakfast guest house with room rates starting from ÂŁ99 per night. A premium rate is charged for the larger rooms and those with lake views. The business benefits from regular, repeat bookings, excellent reviews and a large proportion of direct bookings.
The owners have been granted planning consent, in line with local planning policy, to offer the flexibility that the property could continue to operate as a guest house but with the added flexibility that it could operate as a standalone holiday let or a permanent private residential home. As a holiday let, an owner would be able to target a gross income in excess of ÂŁ200,000 per annum. More details available on request.
- Service charge
- Ask agent
- Business rates
- Ask agent
- Use class
- Ask agent
- Listed building
- Ask agent
- Business for sale
- Yes
An Energy Performance certificate helps you understand the current energy efficiency of a property.
Read more about EPC requirementsAsk agent
- BREEAM rating
- Ask agent
- Environmental description
- Ask agent
Brochure
Ouse Bridge House, Dubwath, Bassenthwaite Lake, Keswick, Cumbria, CA13 9YD
We’re the leading specialist advisor for buying and selling businesses in our sectors - hotels, pubs, restaurants, childcare, healthcare, convenience retail, leisure and medical.
If you’re looking to buy or sell a business in our specialist sectors – from a pharmacy in Sussex to a hotel in Austria – our expert advice and collaborative support will help you achieve your goals. You may be an independent first-time buyer or a multinational adding to your portfolio; either way, you’ll discover that our personalised service is focused on helping you achieve your ambitions.
Clients have access to our carefully managed network of potential buyers. This unique database of contacts has been continually developed by our advanced IT capabilities and benefits from both our years of experience developing our network and our wide geographical coverage.
Where we work
We employ the largest team of sector specialists in the UK and the largest group of hotel specialists in Europe, providing professional brokerage and advisory services from offices in major cities across Britain and Europe. And because we’ve been doing this for over 80 years, we know our sectors and local markets inside out. We work closely with our clients to guide and conclude transactions of any size, covering hotels, restaurants and pubs, leisure, forecourts and convenience retail businesses, social care and elderly care, childcare & education facilities, dental practices and pharmacies.
Our professional services
We offer unrivalled insight, experience and expertise across your choice of services, including brokerage, consultancy, finance, development, investment, surveying, rent reviews, dispute resolution, corporate valuation, and turnaround & recovery. These services are all underpinned by our in-depth market intelligence and leading-edge technology. And we’re accredited by the Royal Institution of Chartered Surveyors (RICS), so you can trust in our professionalism.
What makes us tick
Businesses are about people, so relationships matter to us. We bring an integrity and transparency to business which can be all too rare – and that’s why people trust us. Our clients will attest to our genuine desire to help achieve their objectives, our attention to detail, and our tireless hard work on their behalf. We understand that buying a business can bring its own pressures and strains; needs can change, plans may need to be adjusted, and opportunities can come and go. But we’re always here, a constant, flexible and reliable force you can count on.
Our opening hours for all offices:
Mon – Fri, 9am – 5.30pm
Your search history
You have no recent searches
Disclaimer - Property reference 6445211-fh. The information displayed about this property comprises a property advertisement. Rightmove.co.uk makes no warranty as to the accuracy or completeness of the advertisement or any linked or associated information, and Rightmove has no control over the content. This property advertisement does not constitute property particulars. The information is provided and maintained by Christie Owen & Davies Ltd, Hotels. Please contact the selling agent or developer directly to obtain any information which may be available under the terms of The Energy Performance of Buildings (Certificates and Inspections) (England and Wales) Regulations 2007 or the Home Report if in relation to a residential property in Scotland.





























