The Ginney Country Guest House and Holiday Cottages, Catterlen, Penrith, CA11 0BQ
Size
Ask agent
Tenure
Freehold
EPC
Ask agent
Parking
Ask agent
- Primary use
- Guest house
Key features
- 4 bedroom guest house & 2 holiday cottages
- 3/4 bed owner's accommodation
- Presented to a very high standard
- Easily managed, turnkey business opportunity
- Great location nr Lake District National Park
- Could be utilised as single or multiple holiday lets. Energy Rating TBC
- Christie & Co Ref: 6445223
Description
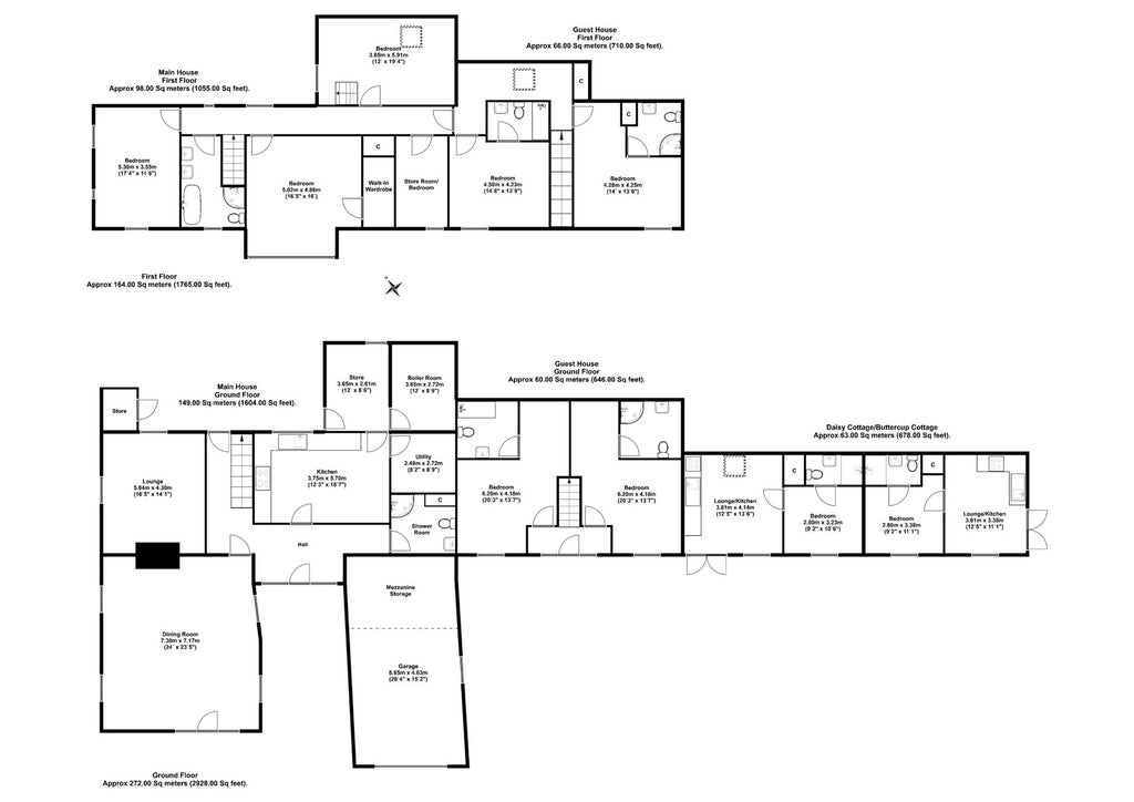
The Ginney Country Guest House is a beautifully presented barn conversion that is currently owner-operated as a comfortable and welcoming four ensuite bedroom guest house with two, one bedroom holiday cottages, all highly rated with excellent reviews. It is complemented by larger than average 3/4 bedroom owner’s accommodation with a smart kitchen and ample living accommodation.
This spacious property is presented to a very high standard throughout. Many original features are incorporated into the design of the property to reflect the age and history of the building. The property is south facing, and the large picture windows make the property bright and airy throughout.
The layout offers flexible use for a new owner, where they could continue to operate the successful business that has been created, develop it into a large family home or use it exclusively for single or multiple unit holiday lets.
The business has its own dedicated website and is also listed on Sykes Cottages:
The Ginney Country Guest House is located in beautiful countryside, to the north west of Penrith and just a few minutes’ drive from the Lake District National Park with easy access to Ullswater and the western fells.
The Lake District National Park receives over 18 million visitors a year with leisure visitors drawn to the beautiful scenery, rich heritage and excellent food and drink offering.
Located just ten minutes from the market town of Penrith and with easy access to the M6 and the A65 TransPennine trunk road, The Ginney benefits from excellent communication links for visitors travelling to and from Scotland, visitors to the area travelling from the north east of England and is in easy reach of the West Coast mainline railway station at Penrith.
• Hallway with picture windows
• Welcoming lounge with feature fireplace with open fire and oak beams
• Dual aspect, feature dining room with imposing vaulted ceiling and exposed beams, currently used as guest breakfast room and family dining room
• Large, well-appointed and well-equipped kitchen/diner
• Two large utility rooms, coal/log store and ground floor shower room with WC and basin
• Three large, king size bedrooms
• Luxurious family bathroom with feature bath, shower cubicle, basin & WC
• Further room that is currently utilised for storage but could be used as single bedroom or home study
Interconnecting door to guest house accommodation.
Guest House:
• Front door to hallway with staircase to the first floor
• Four spacious, king size ensuite bedrooms (two ground floor, two first floor)
• Each room is individual and presented to a very high standard incorporating original features
• Two rooms offer ensuite bathrooms with bath having shower over, basin and WC. Two rooms offer ensuite shower rooms with shower, basin & WC
• Guests are served breakfast in the feature dining room with imposing beams and vaulted ceiling
Holiday Cottages:
Two, one-bedroom self-contained holiday cottages, all highly rated with excellent reviews. Each cottage comprises:
• Living/dining/kitchen
• Living area include comfortable sofas, TV, electric feature fire and dining table
• Kitchens include four ring cookers with oven, dishwasher and fridge/freezer
• Each cottage has garden views and use of the patio
• Large parking area sufficient for 8-10 cars
• EV Charging point
• Large garage with mezzanine floor storage area
• Rear yard with vehicle access
The Ginney Country Guest House and Holiday Cottages is a well-established business that has been created by the current owners. Our seller clients have worked hard to create a lifestyle business that benefits from excellent reviews and repeat business. However, they are now looking to retire.
For new owners, this is an opportunity to acquire a successful, high standard, easily managed business that is ready to go and one that offers the opportunity for further development under new ownership.
There is the potential for a new owner to easily change the focus of the business based on their own requirements and a number of options are illustrated below:
The current owners choose to trade the current business below the £90,000 per annum VAT threshold.
Current room rates for the guest house: £120 per night (approximately).
Current rental rates for each of the cottages: £400-£700 per week (depending on the time of year). (Target gross rental income £22,500 approx. per cottage).
Further trading information will be made available by the owner, on request, to serious potential purchasers.
- Service charge
- Ask agent
- Business rates
- Ask agent
- Use class
- Ask agent
- Listed building
- Ask agent
- Business for sale
- Yes
An Energy Performance certificate helps you understand the current energy efficiency of a property.
Read more about EPC requirementsAsk agent
- BREEAM rating
- Ask agent
- Environmental description
- Ask agent
Brochure
The Ginney Country Guest House and Holiday Cottages, Catterlen, Penrith, CA11 0BQ
We’re the leading specialist advisor for buying and selling businesses in our sectors - hotels, pubs, restaurants, childcare, healthcare, convenience retail, leisure and medical.
If you’re looking to buy or sell a business in our specialist sectors – from a pharmacy in Sussex to a hotel in Austria – our expert advice and collaborative support will help you achieve your goals. You may be an independent first-time buyer or a multinational adding to your portfolio; either way, you’ll discover that our personalised service is focused on helping you achieve your ambitions.
Clients have access to our carefully managed network of potential buyers. This unique database of contacts has been continually developed by our advanced IT capabilities and benefits from both our years of experience developing our network and our wide geographical coverage.
Where we work
We employ the largest team of sector specialists in the UK and the largest group of hotel specialists in Europe, providing professional brokerage and advisory services from offices in major cities across Britain and Europe. And because we’ve been doing this for over 80 years, we know our sectors and local markets inside out. We work closely with our clients to guide and conclude transactions of any size, covering hotels, restaurants and pubs, leisure, forecourts and convenience retail businesses, social care and elderly care, childcare & education facilities, dental practices and pharmacies.
Our professional services
We offer unrivalled insight, experience and expertise across your choice of services, including brokerage, consultancy, finance, development, investment, surveying, rent reviews, dispute resolution, corporate valuation, and turnaround & recovery. These services are all underpinned by our in-depth market intelligence and leading-edge technology. And we’re accredited by the Royal Institution of Chartered Surveyors (RICS), so you can trust in our professionalism.
What makes us tick
Businesses are about people, so relationships matter to us. We bring an integrity and transparency to business which can be all too rare – and that’s why people trust us. Our clients will attest to our genuine desire to help achieve their objectives, our attention to detail, and our tireless hard work on their behalf. We understand that buying a business can bring its own pressures and strains; needs can change, plans may need to be adjusted, and opportunities can come and go. But we’re always here, a constant, flexible and reliable force you can count on.
Our opening hours for all offices:
Mon – Fri, 9am – 5.30pm
Your search history
You have no recent searches
Disclaimer - Property reference 6445223-fh. The information displayed about this property comprises a property advertisement. Rightmove.co.uk makes no warranty as to the accuracy or completeness of the advertisement or any linked or associated information, and Rightmove has no control over the content. This property advertisement does not constitute property particulars. The information is provided and maintained by Christie Owen & Davies Ltd, Hotels. Please contact the selling agent or developer directly to obtain any information which may be available under the terms of The Energy Performance of Buildings (Certificates and Inspections) (England and Wales) Regulations 2007 or the Home Report if in relation to a residential property in Scotland.




















