Oakwood Hall Hotel, Lady Lane, Bingley, BD16 4AW
Size
Ask agent
Tenure
Freehold
EPC
Parking
Ask agent
- Primary use
- Hotel
Key features
- Superb detached building in c. 2.98 acres
- Grade II Listed, 20 bedroom hotel
- Located in an affluent area
- Many original features throughout
- Scope for conversion/alternative use (STPP)
- Well established venue. Energy Rating D
- Christie & Co Ref: 5444127
Description
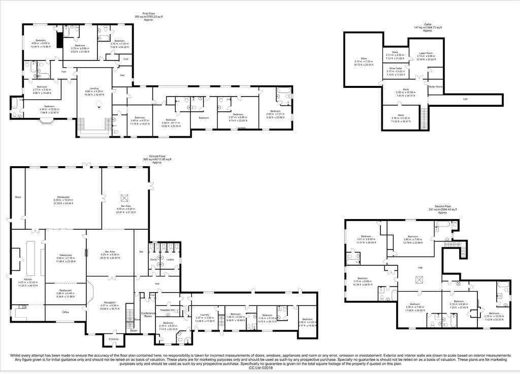
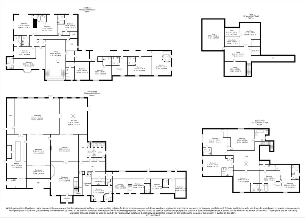
Oakwood Hall Hotel is an imposing Gothic style Victorian, Grade II Listed building which was built in 1864.
The property is of stone construction, and is a three storey, detached, very grand building. There are many of the building's superb original features displayed throughout the property.
The hotel is licensed for Civil Ceremonies and is a popular venue for wedding receptions and parties.
Oakwood Hall Hotel is located in an affluent suburb, approximately one mile North of Bingley town centre.
The hotel is accessed via Lady Lane and is in a secluded position nestled amongst quality residential housing.
The hotel is accessed via a grand entrance and a solid original Victorian wooden door leading to the reception area.
The hall boasts a unique, grand oak staircase with panelling and stunning stained-glass windows designed by renowned artist and designer William Morris,
The hotel has significant public areas including the following:
Lounge/Bar - with two feature fireplaces and a range of tables and chairs seating approximately 50 customers, with further ample standing room.
Restaurant - There is an attractive restaurant area with feature fireplace which can accommodate approximately 50-70 seated guests.
Adjacent Restaurant/Function Room - There is a delightful further public area with superb natural lighting via skylights which can provides a light and airy feel to the room which can either be set for approximately 36 seated guests or alternatively provides an excellent sized function room for events.
The hotel has the ability to open up the Breakfast Room and Restaurant area into one space for larger events and functions, with capacity for 125 guests seated and 200 in a less formal setting. There is a second smaller function room which can be used for private dining events etc.
Ancillary areas include: Good sized, well equipped catering kitchen, customer toilets, fully equipped laundry room and storage areas.
There are 20 individually designed bedrooms housed over three floors of Oakwood Hall Hotel.
All of the bedrooms are en suite and range in style and size, there are original wooden beams in some of the second floor bedrooms as well as four poster beds. All of the bedrooms are all well appointed throughout.
The letting accommodation can reach approximately 50 by the use of sofa beds and extra beds.
The driveway from Lady Lane leads to the hotel. The driveway is flanked by substantial hedging giving the property a private feel to it.
There is very pleasant garden area to the rear of the hotel which has its own patio leading from the lounge area. There is a monkey puzzle tree in the garden and large hedging surrounding the property which provides an enclosed, tranquil environment. There are two out buildings, one used for storage and the other for staff changing.
There is parking to the front of the property for circa 20 cars and to the side of the hotel there is much larger car park for approximately 40 vehicles. The site extends to circa 2.98 acres.
Oakwood Hall Hotel is a superb period building full of character. There has been a hotel trading at the property since 1982. The hotel website is oakwoodhall.co.uk.
There is the opportunity for a buyer to build on the success of the hotel and develop it further. There is also the opportunity for a buyer to develop or convert this wonderful property and its grounds for alternative use. (Subject to planning permission)
Large, detached properties of this nature rarely become available in the more affluent areas of Yorkshire so we expect significant demand from a variety of buyers.
- Service charge
- Ask agent
- Business rates
- Ask agent
- Use class
- Ask agent
- Listed building
- No
- Business for sale
- Yes
An Energy Performance certificate helps you understand the current energy efficiency of a property.
Read more about EPC requirementsAsk agent
- BREEAM rating
- Ask agent
- Environmental description
- Ask agent
Oakwood Hall Hotel, Lady Lane, Bingley, BD16 4AW
We’re the leading specialist advisor for buying and selling businesses in our sectors - hotels, pubs, restaurants, childcare, healthcare, convenience retail, leisure and medical.
If you’re looking to buy or sell a business in our specialist sectors – from a pharmacy in Sussex to a hotel in Austria – our expert advice and collaborative support will help you achieve your goals. You may be an independent first-time buyer or a multinational adding to your portfolio; either way, you’ll discover that our personalised service is focused on helping you achieve your ambitions.
Clients have access to our carefully managed network of potential buyers. This unique database of contacts has been continually developed by our advanced IT capabilities and benefits from both our years of experience developing our network and our wide geographical coverage.
Where we work
We employ the largest team of sector specialists in the UK and the largest group of hotel specialists in Europe, providing professional brokerage and advisory services from offices in major cities across Britain and Europe. And because we’ve been doing this for over 80 years, we know our sectors and local markets inside out. We work closely with our clients to guide and conclude transactions of any size, covering hotels, restaurants and pubs, leisure, forecourts and convenience retail businesses, social care and elderly care, childcare & education facilities, dental practices and pharmacies.
Our professional services
We offer unrivalled insight, experience and expertise across your choice of services, including brokerage, consultancy, finance, development, investment, surveying, rent reviews, dispute resolution, corporate valuation, and turnaround & recovery. These services are all underpinned by our in-depth market intelligence and leading-edge technology. And we’re accredited by the Royal Institution of Chartered Surveyors (RICS), so you can trust in our professionalism.
What makes us tick
Businesses are about people, so relationships matter to us. We bring an integrity and transparency to business which can be all too rare – and that’s why people trust us. Our clients will attest to our genuine desire to help achieve their objectives, our attention to detail, and our tireless hard work on their behalf. We understand that buying a business can bring its own pressures and strains; needs can change, plans may need to be adjusted, and opportunities can come and go. But we’re always here, a constant, flexible and reliable force you can count on.
Our opening hours for all offices:
Mon – Fri, 9am – 5.30pm
Your search history
You have no recent searches
Disclaimer - Property reference 5444127-fh. The information displayed about this property comprises a property advertisement. Rightmove.co.uk makes no warranty as to the accuracy or completeness of the advertisement or any linked or associated information, and Rightmove has no control over the content. This property advertisement does not constitute property particulars. The information is provided and maintained by Christie Owen & Davies Ltd, Hotels. Please contact the selling agent or developer directly to obtain any information which may be available under the terms of The Energy Performance of Buildings (Certificates and Inspections) (England and Wales) Regulations 2007 or the Home Report if in relation to a residential property in Scotland.

























