Substation, Park Lane, Wednesbury, WS10 9SE
Size
Ask agent
Tenure
Leasehold
EPC
Parking
Ask agent
- Primary use
- Restaurant
Key features
- Formerly an electric substation
- Approx. 4,500 sq ft of internal space
- Fully fitted bar and commercial kitchen
- Flexible layout suitable for events
- Includes rear beer garden and parking for 30
- 10 year leasehold opportunity with competitive terms
- Annual rent: £60,000
- Christie & Co Ref: 5862775
Description
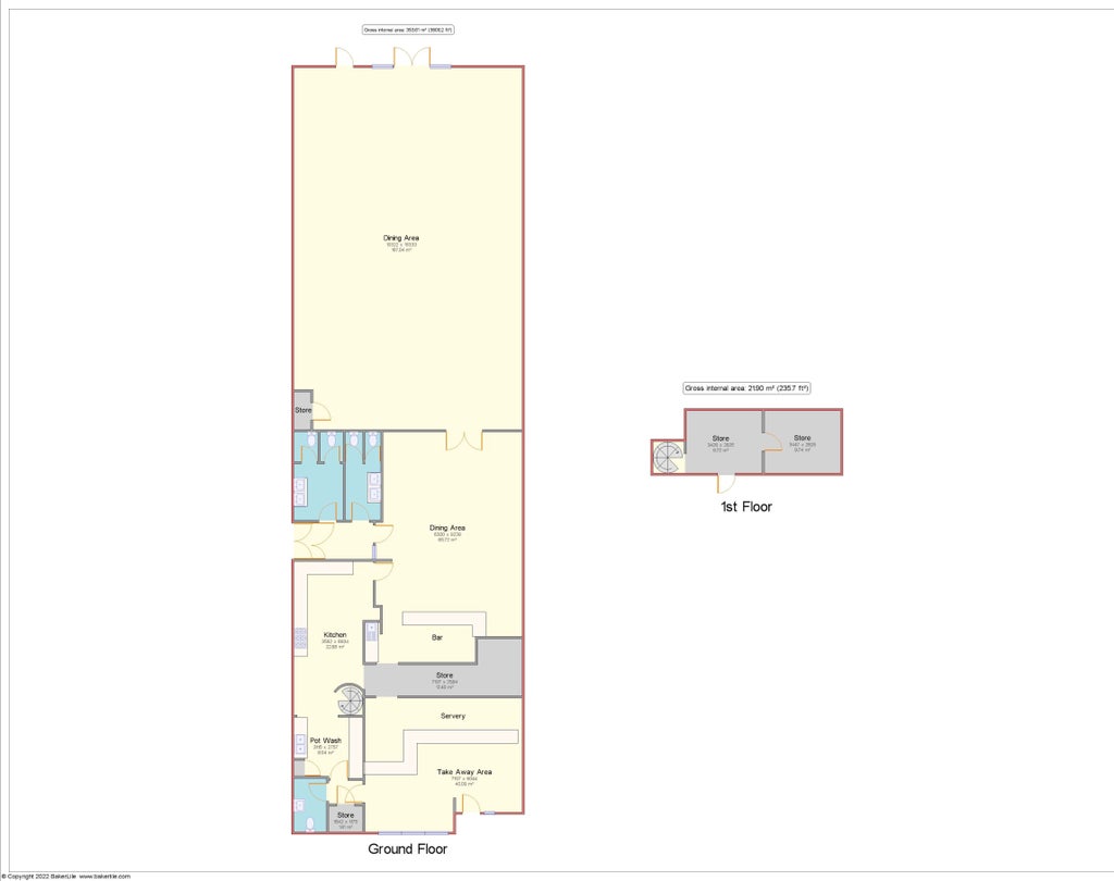
The Substation comprises approximately 4,500 sq ft of versatile internal space, all arranged across a single expansive floor. At its heart is a spacious open-plan trading area, ideal for a variety of hospitality formats. A fully equipped bar and commercial-grade kitchen offer a turnkey solution for food and beverage operations, supported by ample storage and WC facilities. To the rear, a private beer garden provides valuable outdoor space for dining or events, while on-site parking for up to 30 vehicles enhances convenience for both guests and staff. Retaining elements of its industrial heritage, the building offers a distinctive and characterful setting that can be tailored to suit a wide range of creative concepts.
LocationSituated on Walsall Street in Wednesbury, The Substation enjoys a prominent and accessible setting with excellent transport links. It’s just a short walk from the Wednesbury Great Western Street tram stop, offering direct services to Birmingham and Wolverhampton via the West Midlands Metro. Junction 9 of the M6 is only a few minutes away by car, providing fast access to the national motorway network. Birmingham city centre is reachable in around 25 minutes, while Wolverhampton is just a 20-minute drive. The surrounding area features a vibrant mix of residential, retail, and commercial properties, ensuring consistent footfall and a broad customer base.
• West Midlands Metro: Just 0.3 miles (approx. 6-minute walk) to Wednesbury Great Western Street tram stop, offering direct services to Birmingham and Wolverhampton.
• Motorway Access: Only 1.2 miles (approx. 4-minute drive) to Junction 9 of the M6, providing fast access to the national motorway network.
• Birmingham City Centre: Approximately 9 miles (25-minute drive) via the A41 and M6.
• Wolverhampton City Centre: Around 7 miles (20-minute drive) via the A41.
The surrounding area includes a mix of residential, retail, and commercial premises, supporting strong footfall and a diverse customer base.
All trade fixtures, fittings, and equipment are included within the leasehold sale, subject to inventory. A full inventory will be provided to interested parties and their legal representatives upon request.
External DetailsThe property includes a rear beer garden and dedicated parking for up to 30 vehicles, making it well-suited for both casual visitors and event attendees. Its prominent roadside position also offers excellent opportunities for signage and branding, subject to necessary approvals.
The OpportunityThis leasehold offering presents an exciting prospect for hospitality entrepreneurs or operators seeking a distinctive venue in a high-potential location. The Substation is ideally suited for use as a bar or restaurant, a live music or performance venue, or a private hire and events space. Its unique character, generous floorplan, and strategic location make it a compelling canvas for a visionary operator. Notably, development is currently underway directly opposite the site, which is expected to significantly increase foot traffic and enhance the area’s overall appeal.
Business RatesRateable value, £26,250. Interested parties are advised to make their own enquiries with the local billing authority to confirm current rates payable.
RegulatoryThe premises are licensed for the sale of alcohol and food. All necessary health, safety, and fire compliance measures are in place, and the venue is ready for immediate operation.
- Service charge
- Ask agent
- Business rates
- Ask agent
- Use class
- Ask agent
- Listed building
- No
- Business for sale
- Yes
- Tenure
- Leasehold
- Length of lease
- Ask agent
An Energy Performance certificate helps you understand the current energy efficiency of a property.
Read more about EPC requirementsAsk agent
- BREEAM rating
- Ask agent
- Environmental description
- Ask agent
Brochure
Substation, Park Lane, Wednesbury, WS10 9SE
We’re the leading specialist advisor for buying and selling businesses in our sectors - hotels, pubs, restaurants, childcare, healthcare, convenience retail, leisure and medical.
If you’re looking to buy or sell a business in our specialist sectors – from a pharmacy in Sussex to a hotel in Austria – our expert advice and collaborative support will help you achieve your goals. You may be an independent first-time buyer or a multinational adding to your portfolio; either way, you’ll discover that our personalised service is focused on helping you achieve your ambitions.
Clients have access to our carefully managed network of potential buyers. This unique database of contacts has been continually developed by our advanced IT capabilities and benefits from both our years of experience developing our network and our wide geographical coverage.
Where we work
We employ the largest team of sector specialists in the UK and the largest group of hotel specialists in Europe, providing professional brokerage and advisory services from offices in major cities across Britain and Europe. And because we’ve been doing this for over 80 years, we know our sectors and local markets inside out. We work closely with our clients to guide and conclude transactions of any size, covering hotels, restaurants and pubs, leisure, forecourts and convenience retail businesses, social care and elderly care, childcare & education facilities, dental practices and pharmacies.
Our professional services
We offer unrivalled insight, experience and expertise across your choice of services, including brokerage, consultancy, finance, development, investment, surveying, rent reviews, dispute resolution, corporate valuation, and turnaround & recovery. These services are all underpinned by our in-depth market intelligence and leading-edge technology. And we’re accredited by the Royal Institution of Chartered Surveyors (RICS), so you can trust in our professionalism.
What makes us tick
Businesses are about people, so relationships matter to us. We bring an integrity and transparency to business which can be all too rare – and that’s why people trust us. Our clients will attest to our genuine desire to help achieve their objectives, our attention to detail, and our tireless hard work on their behalf. We understand that buying a business can bring its own pressures and strains; needs can change, plans may need to be adjusted, and opportunities can come and go. But we’re always here, a constant, flexible and reliable force you can count on.
Our opening hours for all offices:
Mon – Fri, 9am – 5.30pm
Your search history
You have no recent searches
Disclaimer - Property reference 5862775-lh. The information displayed about this property comprises a property advertisement. Rightmove.co.uk makes no warranty as to the accuracy or completeness of the advertisement or any linked or associated information, and Rightmove has no control over the content. This property advertisement does not constitute property particulars. The information is provided and maintained by Christie Owen & Davies Ltd, Pubs & Restaurants. Please contact the selling agent or developer directly to obtain any information which may be available under the terms of The Energy Performance of Buildings (Certificates and Inspections) (England and Wales) Regulations 2007 or the Home Report if in relation to a residential property in Scotland.













