The Old Courthouse, Castle Ditch, Caernarfon, Gwynedd, LL55 2AY
Size
Ask agent
Tenure
Freehold
EPC
Parking
Ask agent
- Primary use
- Restaurant
Key features
- Historic Landmark Location
- Grade I Listed
- Versatile Event Space
- Restaurant & Bar
- Development Opportunities
- EPC Rating D
- Christie & Co Ref: 5665021
Description
This neo-classical former courthouse is an exquisite Grade I listed building, boasting a symmetrical seven-bay frontage and a tetrastyle portico with Doric columns. Extensively refurbished, the property has been transformed into a mixed-use entertainment venue, incorporating a live theatre, elegant restaurant, and bar facilities. Its design and layout make it ideal for a wide range of uses, including conferences, weddings, private functions, and day-to-day dining.
LocationThe Old Courthouse occupies a prime position within Caernarfon’s historic town walls, directly facing the iconic Caernarfon Castle - a UNESCO World Heritage Site. Just 200 metres from the main visitor entrance, the property is steps away from the town centre, the harbour, and the Menai Strait, offering stunning views toward Anglesey.
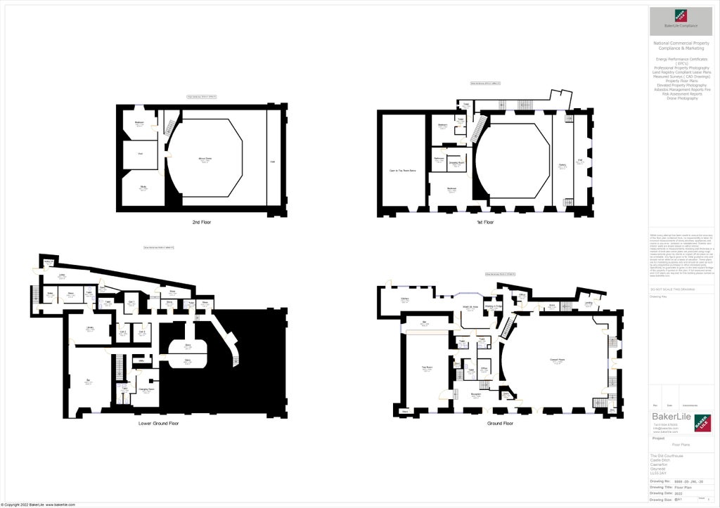
Internal DetailsOn the ground floor, the left-hand side of the property houses The Bench Restaurant - a light-filled, double-height space with intricate plaster coving, seating approximately 60 covers, and a bar servery to the rear. To the right-hand side is the most striking feature: a 250-seat theatre with a mezzanine gallery accommodating 50 guests. This level also includes a fully equipped catering kitchen and customer toilets.
The basement provides additional storage and dressing rooms, along with the Witness Room Bar Lounge and Green Room, which can host up to 60 guests.
The first and second floors offer approximately 1,502 sq ft of space suitable for conversion into private living accommodation or letting bedrooms.
The Old Courthouse presents a rare chance to acquire a landmark property in a thriving tourist destination. Its proximity to Caernarfon Castle ensures high footfall, while its existing facilities provide immediate operational potential for hospitality, events, or cultural ventures.
Development PotentialBeyond its current configuration, the property offers scope for further adaptation, subject to planning consent. Options include boutique accommodation, expanded dining concepts, or enhanced event facilities. The Grade I listing ensures architectural integrity while allowing creative reuse for an experienced operator seeking a unique venue in North Wales.
Business RatesThe Rateable Value is £32,000 with effect from 1 April 2023. Confirmation of actual business rates payable should be obtained from the Local Authority.
RegulatoryPremises Licence
- Service charge
- Ask agent
- Business rates
- Ask agent
- Use class
- Ask agent
- Listed building
- No
- Business for sale
- Yes
An Energy Performance certificate helps you understand the current energy efficiency of a property.
Read more about EPC requirementsAsk agent
- BREEAM rating
- Ask agent
- Environmental description
- Ask agent
Brochure
The Old Courthouse, Castle Ditch, Caernarfon, Gwynedd, LL55 2AY
We’re the leading specialist advisor for buying and selling businesses in our sectors - hotels, pubs, restaurants, childcare, healthcare, convenience retail, leisure and medical.
If you’re looking to buy or sell a business in our specialist sectors – from a pharmacy in Sussex to a hotel in Austria – our expert advice and collaborative support will help you achieve your goals. You may be an independent first-time buyer or a multinational adding to your portfolio; either way, you’ll discover that our personalised service is focused on helping you achieve your ambitions.
Clients have access to our carefully managed network of potential buyers. This unique database of contacts has been continually developed by our advanced IT capabilities and benefits from both our years of experience developing our network and our wide geographical coverage.
Where we work
We employ the largest team of sector specialists in the UK and the largest group of hotel specialists in Europe, providing professional brokerage and advisory services from offices in major cities across Britain and Europe. And because we’ve been doing this for over 80 years, we know our sectors and local markets inside out. We work closely with our clients to guide and conclude transactions of any size, covering hotels, restaurants and pubs, leisure, forecourts and convenience retail businesses, social care and elderly care, childcare & education facilities, dental practices and pharmacies.
Our professional services
We offer unrivalled insight, experience and expertise across your choice of services, including brokerage, consultancy, finance, development, investment, surveying, rent reviews, dispute resolution, corporate valuation, and turnaround & recovery. These services are all underpinned by our in-depth market intelligence and leading-edge technology. And we’re accredited by the Royal Institution of Chartered Surveyors (RICS), so you can trust in our professionalism.
What makes us tick
Businesses are about people, so relationships matter to us. We bring an integrity and transparency to business which can be all too rare – and that’s why people trust us. Our clients will attest to our genuine desire to help achieve their objectives, our attention to detail, and our tireless hard work on their behalf. We understand that buying a business can bring its own pressures and strains; needs can change, plans may need to be adjusted, and opportunities can come and go. But we’re always here, a constant, flexible and reliable force you can count on.
Our opening hours for all offices:
Mon – Fri, 9am – 5.30pm
Your search history
You have no recent searches
Disclaimer - Property reference 5665021-fh. The information displayed about this property comprises a property advertisement. Rightmove.co.uk makes no warranty as to the accuracy or completeness of the advertisement or any linked or associated information, and Rightmove has no control over the content. This property advertisement does not constitute property particulars. The information is provided and maintained by Christie Owen & Davies Ltd, Pubs & Restaurants. Please contact the selling agent or developer directly to obtain any information which may be available under the terms of The Energy Performance of Buildings (Certificates and Inspections) (England and Wales) Regulations 2007 or the Home Report if in relation to a residential property in Scotland.













