Development Opportunity in Norwich City Centre, Norfolk
Size
5,338.89
Tenure
Freehold
EPC
Parking
Ask agent
- Primary use
- Commercial development
- Other use(s)
- Residential development
Building amenities
Additional costs may apply for some services – please check the full property description for more details.
- Transport links
- Well connected
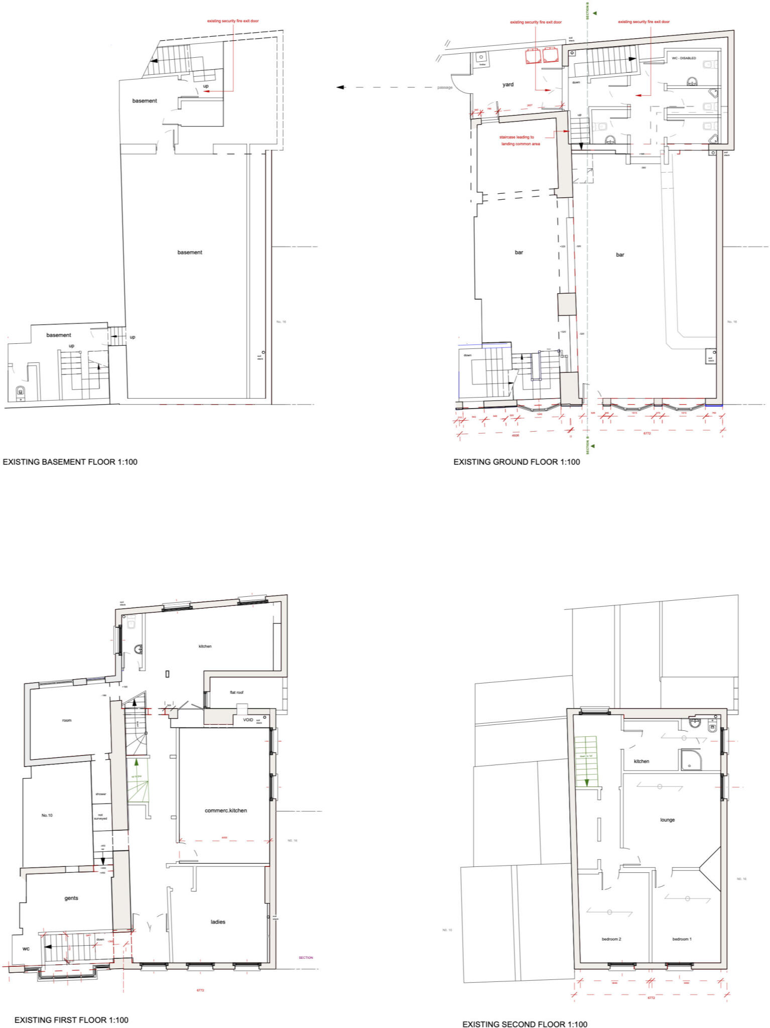
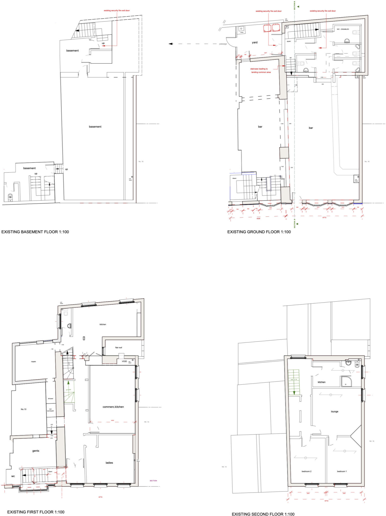
- Basement
Key features
- Planning Consent for 1st & 2nd Floor Residential
- Ground Floor & Basement Est. Licensed Venue
- Late Licence Granted Until 2:00 A.M.
- Consent for 2. No. Upper Floor Apartments
- Rare Freehold In City Centre
- Flexible Options For Varied Use
- Located In A Strong Trading Area
- C.1,180 Sqft. GF Bar Area + Add. Basement Bar
- Ideal For Investor Or Owner-Operator
- City Centre Location
Description
FREEHOLD DEVELOPMENT OPPORTUNITY - NORWICH CITY CENTRE, NORFOLK
This freehold opportunity offers a well-positioned licensed premises in a prominent city centre setting, benefiting from strong footfall and an established trading environment. The property comprises a ground floor bar with additional basement trading space, together with two upper floors that hold planning consent for conversion into residential accommodation.
With a late licence and an existing wet-led operation, the venue is well placed for continued use within the hospitality sector or for development to maximise value. Its central setting also provides broad appeal to both investors and experienced operators seeking a versatile, future‑proofed asset.
⸻
BUSINESS:
The business currently operates Wednesday to Sunday from 4:00 p.m., with licensing permitted until 2:00 a.m., though the venue generally closes around midnight. Trading is primarily wet-led, offering a strong foundation for growth through extended hours, an expanded drinks programme, or the introduction of complementary hospitality services.
The surrounding area generates consistent local and visitor trade, presenting strong commercial potential for new ownership. While offered as a going concern alongside the freehold, alternative arrangements may be considered for buyers wishing to acquire the property without taking on the existing operation.
⸻
PREMISES:
The premises provide approximately 1,180 sq. ft. of ground floor trading space, including a fitted bar and lounge area designed for efficient customer flow and service delivery. A further basement bar offers additional capacity, making it suitable for private bookings, events, or concept-driven secondary trading zones.
The upper floors offer excellent redevelopment scope, supported by granted planning consent for conversion into two self-contained residential apartments. Alternatively, they could be reconfigured for business use, such as expanded hospitality space or a manager’s flat, subject to appropriate works.
⸻
KEY INFORMATION:
AGENTS NOTE: This is a business for sale as a going concern, not an empty premises for sale or let.
CONFIDENTIAL INFORMATION: In order to release further information on the business – such as the accounts, we require you to complete a short online non-disclosure form. Please contact our office and we will provide full instructions and assist where required.
REFERENCE NUMBER: INV36467E.
OPENING HOURS: Currently open Wednesday to Sunday from 4:00pm. Licensed until 2:00 A.M, but typically closes around midnight.
TENURE: Freehold.
RATES PAYABLE: £6,886 per annum.
This information has been provided to us by the vendor and any interested party is advised to enquire of the local authority to check the position with regards to business rates that will apply to a new owner.
STAFF: 2 full-time and 4 part-time members of staff. Correct at the time of listing.
EPC: The Energy Performance Certificate shows a rating of ‘C/55’, full document available on request.
PRICE: £575,000 PLUS STOCK AT VALUATION.
Comprising the freehold interest, business goodwill, fixtures, fittings, and equipment. Stock to be purchased separately at valuation upon completion. Business offered for sale as a going concern to be acquired with the property however this is open to discussion should a buyer not wish to take the business on.
VIEWING: Viewing is strictly by appointment only. Please contact us at your earliest convenience to schedule a time that suits you.
FINANCE: If you require assistance with business financing or commercial mortgages (subject to eligibility), we may be able to help. Let us know if you would like our support, and we will gladly put you in touch with our recommended whole-of-market broker.
BUSINESS TO SELL: Thinking of selling your business? That’s our specialty. If you’re curious about its value, we offer a free, confidential valuation service. Simply pick the day and time that work best for you, and we will provide an honest, professional assessment. Feel free to get in touch with our office at your convenience to book an appointment.
PREMIER MARKETING: We are passionate about showcasing each business in a way that truly stands out. Our listings include high-quality property details and comprehensive information across all major online platforms, as well as our own website. If you want your business to shine, call us to arrange a complimentary valuation.
⸻
DISCLAIMER:
1. MONEY LAUNDERING REGULATIONS:Â Prospective buyers will be required to provide identification documentation and proof of funding during the purchasing process. Cooperation is appreciated to ensure the sale proceeds without unnecessary delays.
2. PARTICULARS: While we strive to ensure all information is accurate and reliable, it serves as a general guide only. Should any particular details be of special importance, please contact us so we can verify the information before you travel to view.
3. MEASUREMENTS: Provided room sizes are approximate and intended solely for general guidance. Prospective buyers are advised to independently verify all measurements to ensure accuracy.
4. SERVICES: Please note we have not tested the services or any of the equipment or appliances.
- Service charge
- Ask agent
- Business rates
- £6,886
- Use class
- Sui Generis
- Listed building
- No
- Floors in building
- 3
- Business for sale
- Yes
An Energy Performance certificate helps you understand the current energy efficiency of a property.
Read more about EPC requirements- BREEAM rating
- Ask agent
- Environmental description
- Ask agent
Brochure
Development Opportunity in Norwich City Centre, Norfolk
Thinking of selling your business? That's our business!
EMF East Anglia are proud business transfer agents covering Norfolk, Suffolk, Cambridgeshire, as well as Warwickshire and Northamptonshire. Call 01603 662 662 for a FREE no obligation valuation, or visit www.emfgroup.com.
Your search history
You have no recent searches
Disclaimer - Property reference INV36467EA. The information displayed about this property comprises a property advertisement. Rightmove.co.uk makes no warranty as to the accuracy or completeness of the advertisement or any linked or associated information, and Rightmove has no control over the content. This property advertisement does not constitute property particulars. The information is provided and maintained by EM&F East Anglia, East Anglia. Please contact the selling agent or developer directly to obtain any information which may be available under the terms of The Energy Performance of Buildings (Certificates and Inspections) (England and Wales) Regulations 2007 or the Home Report if in relation to a residential property in Scotland.






















