74 Lewes Road, Brighton, BN2 3HZ
Size
2,185
Lease length
Ask agent
EPC
Parking
Ask agent
- Price per
- POA
- Primary use
- Other
Key features
- OFFERS INVITED IN THE REGION OF £700,000
- MIXED USE FREEHOLD INVESTMENT- RETAIL & 7 BED HMO
- INCOME OF £73,650 PER ANNUM
- DESIRABLE HMO LOCATION CLOSE TO UNIVERSITIES.
- NET YIELD 9.98% - GROSS YIELD 10.51%
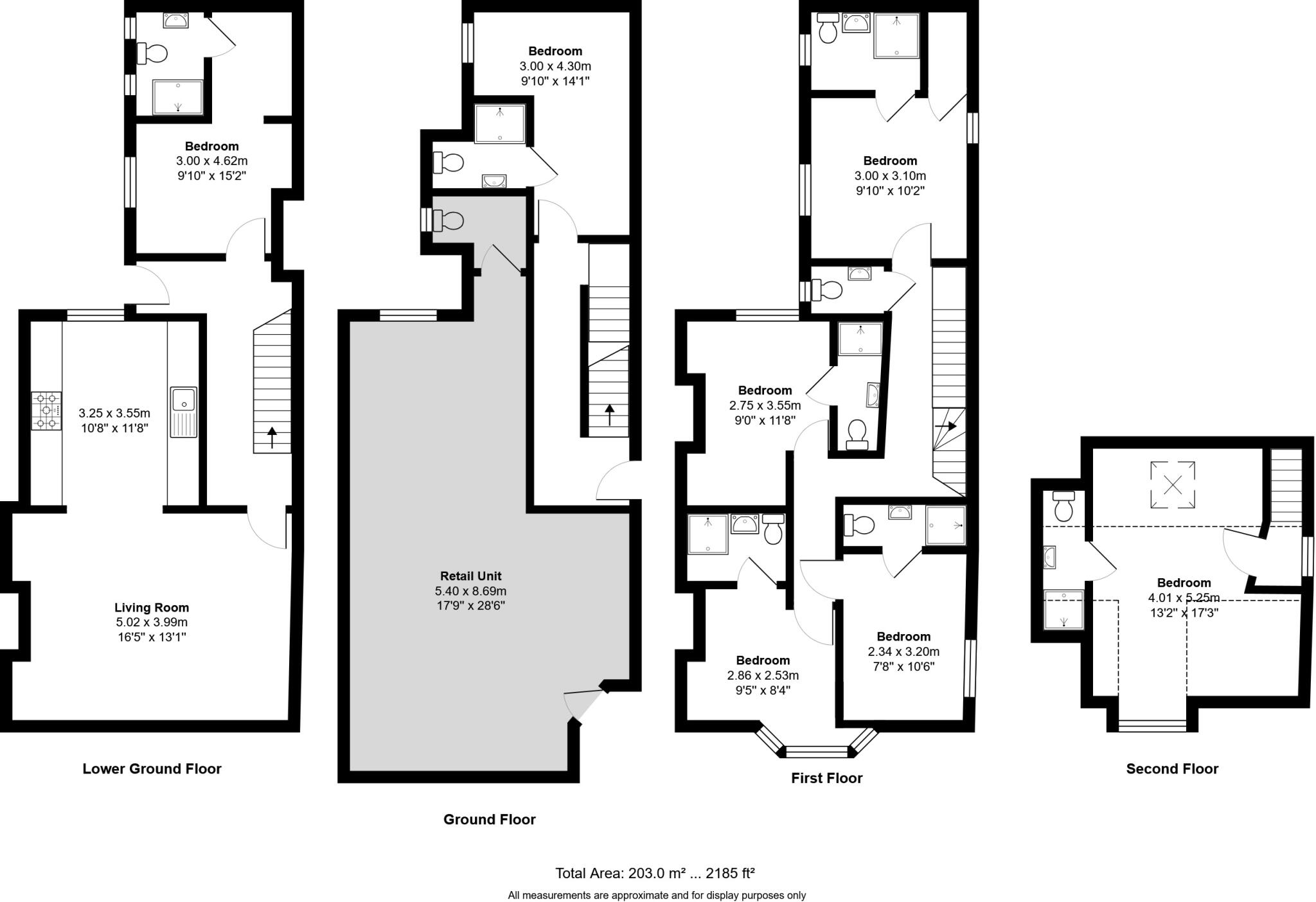
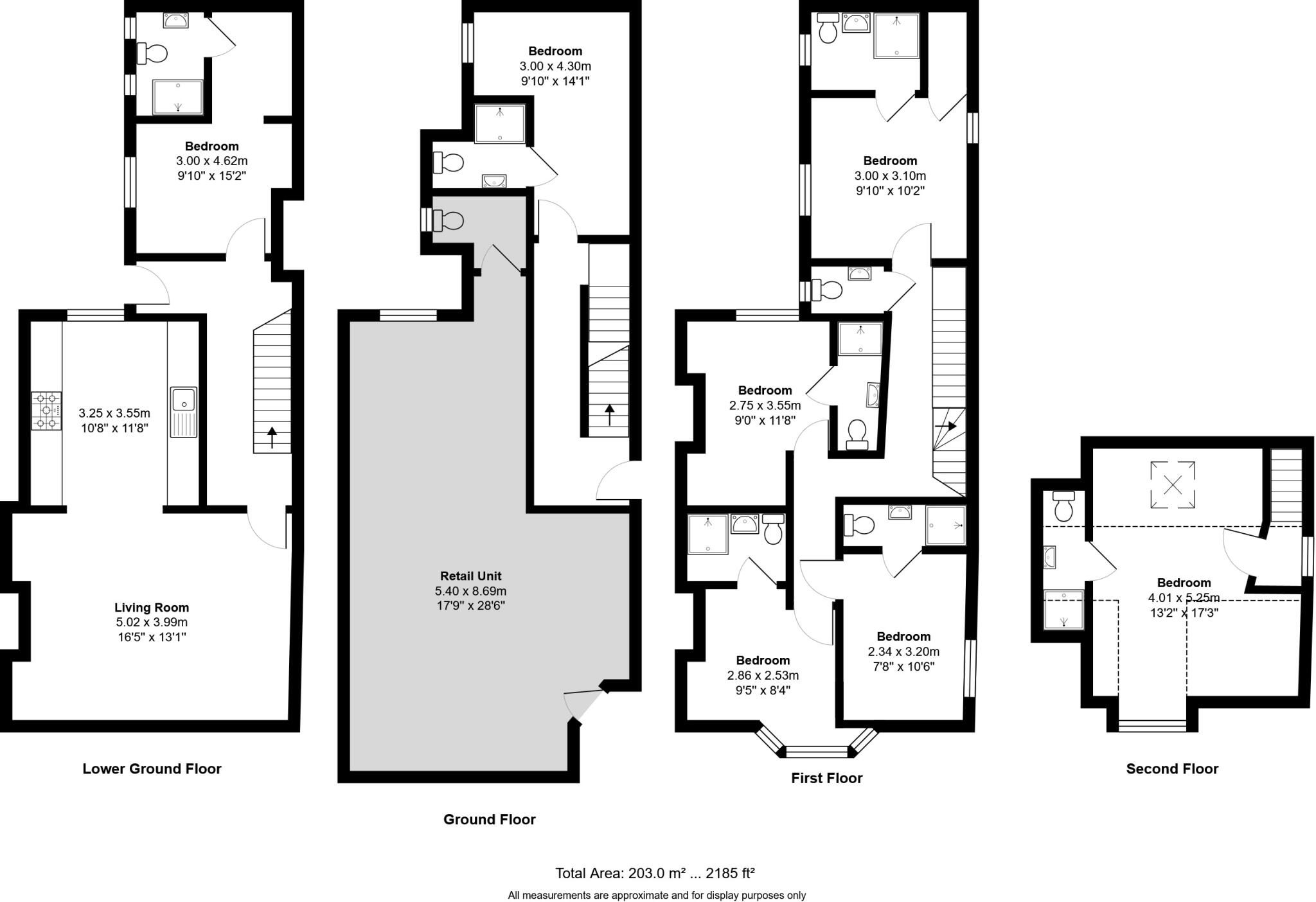
Description
The property sits on the corner of Lewes Road and Inverness Road. Lewes Road is one of the main arterial routes into Brighton, down towards the seafront, and is a popular area of the city among its student population. Local occupiers include Sainsbury's, Pepe's Piri Piri, and Subway.
Offers are invited in the region of £700,000 for the freehold interest subject to the existing tenancy. A purchase at this level would show a net yield of 9.98% & a gross yield of 10.51%.
Shop- Let to a private individual for a term of 20 years from 21st March 2012 with provision for 5 yearly rent reviews at a rent of £13,500 per annum on an effective full repairing & insuring basis. The landlord holds a 3 month rent deposit.
HMO- Let by way of an AST agreement at a rent of £60,060 per annum (£5,005 per calendar month).
Combined annual income- £73,560 per annum
- Let type
- Ask agent
- Let contract length
- Ask agent
- Status
- Available
- Date available
- 22 January 2026
- Service charge
- Ask agent
- Business rates
- Ask agent
- Use class
- E
An Energy Performance certificate helps you understand the current energy efficiency of a property.
Read more about EPC requirements- BREEAM rating
- Ask agent
- Environmental description
- Ask agent
Brochure
74 Lewes Road, Brighton, BN2 3HZ
Your search history
You have no recent searches
Disclaimer - Property reference 348303-2. The information displayed about this property comprises a property advertisement. Rightmove.co.uk makes no warranty as to the accuracy or completeness of the advertisement or any linked or associated information, and Rightmove has no control over the content. This property advertisement does not constitute property particulars. The information is provided and maintained by Eightfold Commercial Limited, Commercial . Please contact the selling agent or developer directly to obtain any information which may be available under the terms of The Energy Performance of Buildings (Certificates and Inspections) (England and Wales) Regulations 2007 or the Home Report if in relation to a residential property in Scotland.







