75 Hanley Road, Crouch Hill, N4 3DQ
Size
5,350
Lease length
Ask agent
EPC
Parking
6
- Price per
- Primary use
- Other
- Other use(s)
- Other, Other leisure
Key features
- Former Medical Centre
- Six on-site parking spaces
- Class E Use - Suitable for a Variety of Uses
- Prominent Location
- External Garden
- May consider a sale of virtual freehold (999 Years)
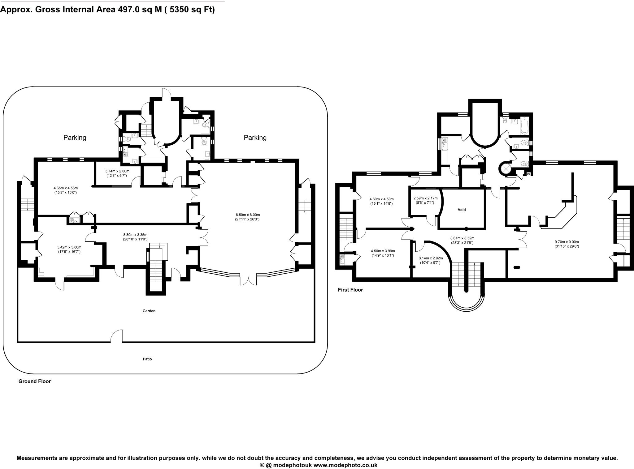
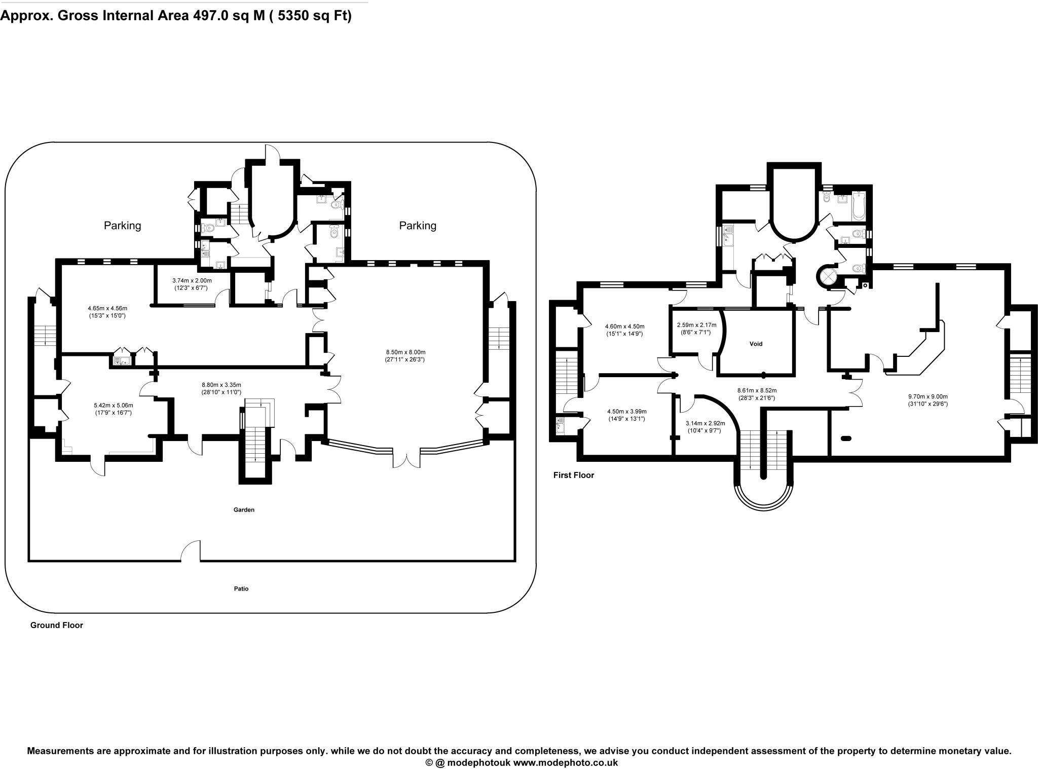
Description
The property comprises a detached, modern building, understood to have been purpose-built as an NHS medical centre, arranged over ground and first floors.
The accommodation is well configured, offering adaptable space across both levels that could be split if required. The main entrance is from Hanley Road, providing a clear and prominent point of access. Externally, the property benefits from secure, gated outside space, with rear parking bays providing parking for up to six vehicles.
Internally, the ground floor features an impressive double-volume entrance hall, six classrooms / treatment rooms / offices, together with a kitchen, WCs and ancillary storage. The first floor provides four further classrooms / treatment rooms / offices, a large landing with a feature window, two WCs, a shower room and a kitchen.
The landlord may also consider a sale of the virtual freehold (999 years).
Location
The property is located on the northern side of Hanley Road, which connects directly with Hornsey Road and Crouch Hill / Stroud Green Road. Crouch Hill Station (London Overground) is within a short walk, providing convenient access across London.
The property is also within easy reach of Finsbury Park, Crouch End and Holloway Road / Archway, with Archway Underground Station close by. The area is a popular and well-established location, with a wide selection of cafés, bars and restaurants situated along Crouch Hill and Stroud Green Road, all within walking distance.
The property is further well positioned for Highgate and Islington, with good road access to the North Circular Road, the M1 via Brent Cross, and Central London.
- Let type
- Long
- Let contract length
- Ask agent
- Status
- Available
- Date available
- 17 March 2026
- Service charge
- Ask agent
- Business rates
- Ask agent
- Use class
- Ask agent
An Energy Performance certificate helps you understand the current energy efficiency of a property.
Read more about EPC requirementsAsk agent
- BREEAM rating
- Ask agent
- Environmental description
- Ask agent
Brochure
75 Hanley Road, Crouch Hill, N4 3DQ
Forest Real Estate is a young, independent commercial agency with a primary focus on the Office and Industrial/Logistics markets across Central & Greater London, as well as the Home Counties.
With a strong market presence, we are recognised as a trusted partner for both small and large commercial real estate owners, delivering innovative marketing solutions tailored to each asset. We provide Landlords and Tenants with comprehensive advice, backed by market data and deep expertise in our sectors.
Your search history
You have no recent searches
Disclaimer - Property reference 350183-2. The information displayed about this property comprises a property advertisement. Rightmove.co.uk makes no warranty as to the accuracy or completeness of the advertisement or any linked or associated information, and Rightmove has no control over the content. This property advertisement does not constitute property particulars. The information is provided and maintained by Forest Real Estate, London. Please contact the selling agent or developer directly to obtain any information which may be available under the terms of The Energy Performance of Buildings (Certificates and Inspections) (England and Wales) Regulations 2007 or the Home Report if in relation to a residential property in Scotland.






























