Wing Kingz, Belgrade Plaza, Coventry, CV1 4BF
Size
Ask agent
Tenure
Leasehold
EPC
Parking
Ask agent
- Primary use
- Restaurant
Key features
- Well placed sports bar restaurant
- City centre leisure & student development
- Recently refurbished with 120 covers
- Profitable mix of food and drink
- Part of expanding national franchise brand
- 14 Year Lease | EPC Rating B
- Annual rent: £60,000
- Christie & Co Ref: 5862776
Description
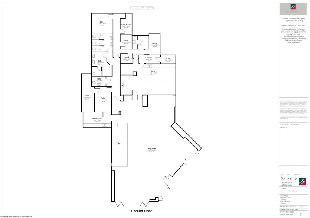
Occupying the ground floor of a modern building the venue occupies some 4,450 sqft with an open plan layout.
LocationLocated in the heart of Coventry city, a popular location between Birmingham, Leicester and Warwick in the Midlands.
Belgrade Plaza is well placed, being close to the theatre, cinema, parking, and West Orchard shopping centre. There are a range of branded restaurants nearby as well as purpose build student accommodation.
Glazed frontage with folding doors opening into an open plan bar restaurant with high ceilings. Range of loose, fixed and booth seating for a total of 98 people and fully equipped bar servery to one side with bar stools.
There a total of 17 big screens showing a variety of sports and other events.
To one end are the open trade kitchens, fully fitted to brand standards. There is also facilities to provide a take-away and delivery service.
Corridor to customer toilets, stores, cellar, staff areas & office.
All the trade fixtures and fittings are included in the asking price which are all in keeping with the brand standards required by Wing Kingz.
External DetailsSituated at the front of the property, the external trading space offers 28 covers, providing a visible, street- facing setting ideal for outdoor dining and drinks.
The OpportunityOpportunity to acquire a fully fitted, trading Wing Kingz franchise in the heart of Coventry which was opened in early 2025.
The business has quickly established itself in the city, offering a range of chicken wings, burgers and wide selection of drinks.
The 5-year, renewable franchise agreement gives access to Wing Kingz marketing, suppliers and support which assist in promotions both locally and nationally.
See for more details.
All staff will transfer with the business in accordance with the Transfer of Undertakings (Protection of Employment) Regulations.
Trading InformationOpened by a local multi-site operator in early 2025 the business has grown with sales in excess of £12,000 per week. The years end target is £700,000 net.
Other established Wing Kingz sites have sales of £20,000 plus and this level is anticipated in year 2 once the name is fully established.
Open 7 days a week - Sunday to Thursday: 12.00pm - 10.00pm
Friday & Saturday: 12.00pm -11.00pm
The premises are held on a 15 year lease from July 2024 with a current passing rent of £60,000 per annum, which is set to rise to £62,500 in July 2026.
There are rent reviews every 5 years and it is an internal repairing lease with a service charge in addition.
The Rateable Value is £43,500 with effect from 1 April 2025. Confirmation of actual business rates payable should be obtained from the Local Authority.
- Service charge
- Ask agent
- Business rates
- Ask agent
- Use class
- Ask agent
- Listed building
- No
- Business for sale
- Yes
- Tenure
- Leasehold
- Length of lease
- Ask agent
An Energy Performance certificate helps you understand the current energy efficiency of a property.
Read more about EPC requirementsAsk agent
- BREEAM rating
- Ask agent
- Environmental description
- Ask agent
Wing Kingz, Belgrade Plaza, Coventry, CV1 4BF
We’re the leading specialist advisor for buying and selling businesses in our sectors - hotels, pubs, restaurants, childcare, healthcare, convenience retail, leisure and medical.
If you’re looking to buy or sell a business in our specialist sectors – from a pharmacy in Sussex to a hotel in Austria – our expert advice and collaborative support will help you achieve your goals. You may be an independent first-time buyer or a multinational adding to your portfolio; either way, you’ll discover that our personalised service is focused on helping you achieve your ambitions.
Clients have access to our carefully managed network of potential buyers. This unique database of contacts has been continually developed by our advanced IT capabilities and benefits from both our years of experience developing our network and our wide geographical coverage.
Where we work
We employ the largest team of sector specialists in the UK and the largest group of hotel specialists in Europe, providing professional brokerage and advisory services from offices in major cities across Britain and Europe. And because we’ve been doing this for over 80 years, we know our sectors and local markets inside out. We work closely with our clients to guide and conclude transactions of any size, covering hotels, restaurants and pubs, leisure, forecourts and convenience retail businesses, social care and elderly care, childcare & education facilities, dental practices and pharmacies.
Our professional services
We offer unrivalled insight, experience and expertise across your choice of services, including brokerage, consultancy, finance, development, investment, surveying, rent reviews, dispute resolution, corporate valuation, and turnaround & recovery. These services are all underpinned by our in-depth market intelligence and leading-edge technology. And we’re accredited by the Royal Institution of Chartered Surveyors (RICS), so you can trust in our professionalism.
What makes us tick
Businesses are about people, so relationships matter to us. We bring an integrity and transparency to business which can be all too rare – and that’s why people trust us. Our clients will attest to our genuine desire to help achieve their objectives, our attention to detail, and our tireless hard work on their behalf. We understand that buying a business can bring its own pressures and strains; needs can change, plans may need to be adjusted, and opportunities can come and go. But we’re always here, a constant, flexible and reliable force you can count on.
Our opening hours for all offices:
Mon – Fri, 9am – 5.30pm
Your search history
You have no recent searches
Disclaimer - Property reference 5862776-lh. The information displayed about this property comprises a property advertisement. Rightmove.co.uk makes no warranty as to the accuracy or completeness of the advertisement or any linked or associated information, and Rightmove has no control over the content. This property advertisement does not constitute property particulars. The information is provided and maintained by Christie & Co, Pubs & Restaurants. Please contact the selling agent or developer directly to obtain any information which may be available under the terms of The Energy Performance of Buildings (Certificates and Inspections) (England and Wales) Regulations 2007 or the Home Report if in relation to a residential property in Scotland.








