Head of Steam, 10 King Street, Hull, HU1 2JJ
Size
Ask agent
Tenure
Freehold
EPC
Parking
Ask agent
- Primary use
- Bar or nightclub
Key features
- Public house in prime city centre location
- High footfall and strong visibility
- Upper-floor with redevelopment potential STP
- Ready for immediate occupation and trade
- Site area: 0.049 acres
- Energy Rating C
- Christie & Co Ref: 5455562
Description
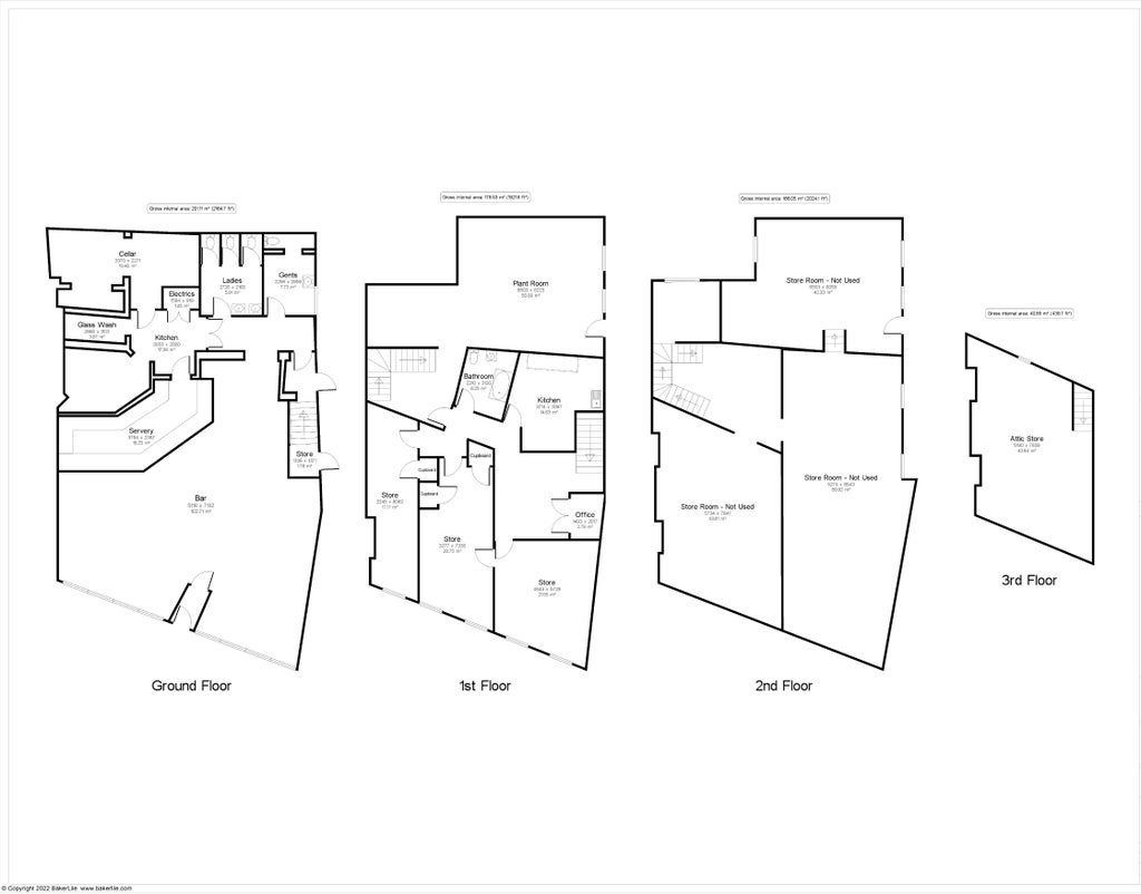
The property is a mid‑terraced three-storey building, of traditional brick construction beneath a pitched slate roof. The Head of Steam is across approximately 48 covers and benefits from a modern shop‑front style glazing, providing strong visibility to the square.
LocationThe Head of Steam occupies a central position within Hull city centre, benefitting from excellent connectivity and strong footfall driven by its surrounding transport links and commercial activity. Hull is served by good road network, with the A63 providing the primary east–west route through the city and linking directly to the national motorway network via the M62, offering easy access to Leeds, Manchester and the wider region.
The property is fronting onto a pedestrianised square with Hull Minster as the focal point. The square is surrounded by a mix of commercial businesses, bars and restaurants that form a strong, high‑quality leisure circuit. Offices located close by help generate consistent footfall throughout the day.
The ground floor is the principal open‑plan bar area, which occupies the full width of the frontage with a capacity for approximately 48 covers. The bar servery is positioned centrally offering good operational visibility across the trading floor.
The first floor is arranged to serve the operational needs of the business, offering a mix of ancillary and staff‑related accommodation.
The second floor comprises largely unused ancillary accommodation. These areas offer great potential for refurbishment or future redevelopment, subject to appropriate consents, but at present remain in a neglected condition.
The third floor consists solely of an attic store room.
Ancillary areas include: kitchen, cellar, customer WCs on the GF and FF, with ample storage space throughout.
The property presents a good opportunity for an incoming operator to acquire a public house benefiting from high levels of footfall and visibility within Hull city centre. The ground floor offers an immediately usable trading area, whilst the second and third floors provide clear scope for redevelopment, subject to the necessary planning consents.
Business RatesThe Rateable Value is £26,000 with effect from 1 April 2026.
Confirmation of actual business rates payable should be
obtained from the Local Authority
Premises Licence
- Service charge
- Ask agent
- Business rates
- Ask agent
- Use class
- Ask agent
- Listed building
- No
- Business for sale
- Yes
An Energy Performance certificate helps you understand the current energy efficiency of a property.
Read more about EPC requirementsAsk agent
- BREEAM rating
- Ask agent
- Environmental description
- Ask agent
Brochure
Head of Steam, 10 King Street, Hull, HU1 2JJ
We’re the leading specialist advisor for buying and selling businesses in our sectors - hotels, pubs, restaurants, childcare, healthcare, convenience retail, leisure and medical.
If you’re looking to buy or sell a business in our specialist sectors – from a pharmacy in Sussex to a hotel in Austria – our expert advice and collaborative support will help you achieve your goals. You may be an independent first-time buyer or a multinational adding to your portfolio; either way, you’ll discover that our personalised service is focused on helping you achieve your ambitions.
Clients have access to our carefully managed network of potential buyers. This unique database of contacts has been continually developed by our advanced IT capabilities and benefits from both our years of experience developing our network and our wide geographical coverage.
Where we work
We employ the largest team of sector specialists in the UK and the largest group of hotel specialists in Europe, providing professional brokerage and advisory services from offices in major cities across Britain and Europe. And because we’ve been doing this for over 80 years, we know our sectors and local markets inside out. We work closely with our clients to guide and conclude transactions of any size, covering hotels, restaurants and pubs, leisure, forecourts and convenience retail businesses, social care and elderly care, childcare & education facilities, dental practices and pharmacies.
Our professional services
We offer unrivalled insight, experience and expertise across your choice of services, including brokerage, consultancy, finance, development, investment, surveying, rent reviews, dispute resolution, corporate valuation, and turnaround & recovery. These services are all underpinned by our in-depth market intelligence and leading-edge technology. And we’re accredited by the Royal Institution of Chartered Surveyors (RICS), so you can trust in our professionalism.
What makes us tick
Businesses are about people, so relationships matter to us. We bring an integrity and transparency to business which can be all too rare – and that’s why people trust us. Our clients will attest to our genuine desire to help achieve their objectives, our attention to detail, and our tireless hard work on their behalf. We understand that buying a business can bring its own pressures and strains; needs can change, plans may need to be adjusted, and opportunities can come and go. But we’re always here, a constant, flexible and reliable force you can count on.
Our opening hours for all offices:
Mon – Fri, 9am – 5.30pm
Your search history
You have no recent searches
Disclaimer - Property reference 5455562-fh. The information displayed about this property comprises a property advertisement. Rightmove.co.uk makes no warranty as to the accuracy or completeness of the advertisement or any linked or associated information, and Rightmove has no control over the content. This property advertisement does not constitute property particulars. The information is provided and maintained by Christie Owen & Davies Ltd, Pubs & Restaurants. Please contact the selling agent or developer directly to obtain any information which may be available under the terms of The Energy Performance of Buildings (Certificates and Inspections) (England and Wales) Regulations 2007 or the Home Report if in relation to a residential property in Scotland.











