Quay Street, City Centre, Bristol, Bristol City
Size
1,154 - 2,727
Lease length
Ask agent
EPC
Parking
Ask agent
- Price per
- Primary use
- Restaurant
- Other use(s)
- High street retail, Shop, Cafe
Key features
- City centre location
Description
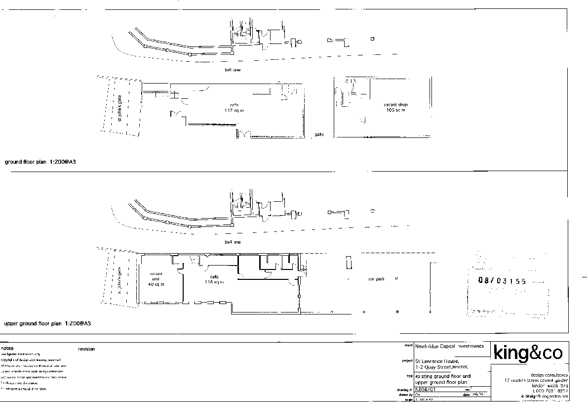
The property comprises a commercial unit arranged over ground and first floor levels. The premises benefits from a prominent frontage fronting Quay Street. Internally the unit offers a fairly open plan ground floor with kitchen, and accessible WC. On the first floor is storage rooms and WC’s
The property has most recently been used as a restaurant.
Location
The property is located on Quay Street in Bristol City Centre, a mixed used location comprising office, retail, restaurant and bar operators. There is also a large student population in the nearby vicinity. The property is located a short distance from Broadmead on one side, and Bristol Bus Station on the other.  Occupiers nearby include The White Lion Public House, Premier convenience store and Xcooters.
Terms
The landlord is seeking an effectively full repairing and insuring lease (via service charge) for a term to be agreed.
Use
Class E – Suitable for shops, offices, financial and professional services
Services
Ground and First Floors
Bar Area
W.C. Facilities
VAT
All figures are exclusive of VAT.
Deposit
A 3-6 month deposit will payable depending on the strength of financial accounts.
Size & Floors
SQ FT SQ M
Ground Floor 1,154 107.18
First Floor 1,573 146.13
Total 2,727 253.31
Rent
£32,000 per annum exclusive
Service Charge
Variable service charge. Further details on request.
Business Rates
Rateable Value: £24,250
Rates Payable (2025/26) 49.9p in the £
Interested parties should make their own enquiries to the Local Billing Authority.
Each party will be responsible for their own legal costs in connection with this transaction.
Energy Performance Certificate
The property has an EPC with a B (42) rating.
Anti-Money Laundering
Once Heads of Terms are agreed successful applicants will be required to provide relevant information to satisfy the AML requirements.
Viewings and Further Information
Steve Cullis - or
- Let type
- Long
- Let contract length
- Ask agent
- Rent obligation
- Fully repairing and insuring
- Status
- Available
- Date available
- 18 February 2026
- Service charge
- Ask agent
- Business rates
- Ask agent
- Use class
- E
- Floors in building
- 2
An Energy Performance certificate helps you understand the current energy efficiency of a property.
Read more about EPC requirementsAsk agent
- BREEAM rating
- Ask agent
- Environmental description
- Ask agent
Brochure
Quay Street, City Centre, Bristol, Bristol City
Hootons is one of Bristol's best rated commercial property agents. With over 30 years in the market, we help both landlords and tenants with their commercial property either to let or for sale.
As an independent general practice, we can assist our clients with all property related matters, from property management, rent reviews, lease renewals, valuations and investments.
Visit our website for full details - www.hootons.co.uk
Your search history
You have no recent searches
Disclaimer - Property reference 2QuayStreet. The information displayed about this property comprises a property advertisement. Rightmove.co.uk makes no warranty as to the accuracy or completeness of the advertisement or any linked or associated information, and Rightmove has no control over the content. This property advertisement does not constitute property particulars. The information is provided and maintained by Hootons Commercial Ltd, Bristol. Please contact the selling agent or developer directly to obtain any information which may be available under the terms of The Energy Performance of Buildings (Certificates and Inspections) (England and Wales) Regulations 2007 or the Home Report if in relation to a residential property in Scotland.





