The Masons Arms, 13 Cornmarket, Louth, Lincolnshire, LN11 9PY
Size
Ask agent
Tenure
Freehold
EPC
Parking
Ask agent
- Primary use
- Hotel
Key features
- 18th Century Grade II Listed boutique hotel
- 10 superb en-suite letting bedrooms
- Bar, restaurant, ballroom and library
- Refurbished throughout to high standard
- Sales c. £11,000 per week
- Thriving market town location. Energy Rating C
- Christie & Co Ref: 5740696
Description
An 18th century Grade II listed property which has been refurbished to a high standard throughout to provide a superb 10 bedroom boutique hotel with bar, restaurant and function facilities.
Centrally located in the thriving Lincolnshire market town of Louth, The Masons Arms was painstakingly refurbished by the current owner in 2017 and provides an excellent opportunity for new owners to continue to develop this already popular business.
The Masons Arms is situated in Cornmarket, in the centre of the historic market town of Louth in the Lincolnshire Wolds. Lincoln is easily accessed by the A157 and is around a 45 minute drive away and has mainline train services north and south. Trains from Grimsby serve Doncaster and points west, as well as north and the south. Doncaster Sheffield Airport, which is due to re-open in Spring 2026, is approximately 52 miles away.
Louth, which is the "capital" of the Lincolnshire Wolds and holds street markets three times per week, is a pretty town with a growing population and attracts visitors and tourists, Westgate is renowned for its Georgian houses. The town is home to a variety of businesses of different sizes, both corporate and independently owned. Local attractions include the museum, Hubbard Hills, Lincolnshire Wolds, the coastline with sandy beaches, Market Rasen Horse Racing Course, Cadwell Park motor circuit and towns such as Alford, Horncastle and Spilsby are situated close by.
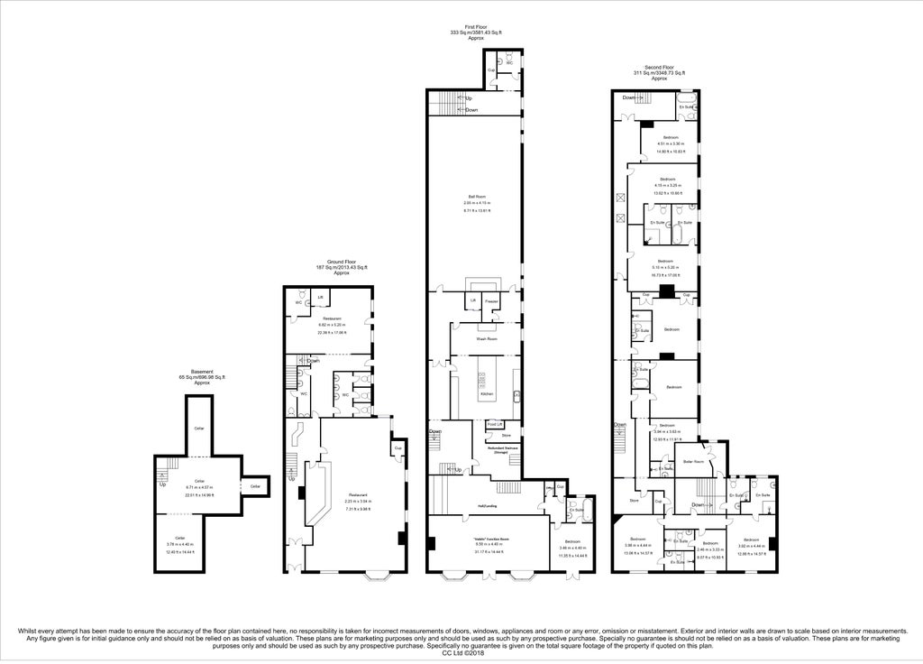
Entrance vestibule leading to reception, restaurant (45) - with bar servery, The Library (14) - with loose tables and chairs and banquette. Ancillary areas include a lower ground floor beer cellar - with lift to street level, chair lift, a secure wine/bottle store, customer toilets and a customer lift.
Other FloorsFirst Floor
Ballroom (100+ for events and 80 for meals) with bar servery, customer toilets & separate store room, Habits Lounge (30) - with bar servery, loose tables and chairs and banquettes, an ideal space for afternoon teas and smaller functions, and is licensed to hold wedding ceremonies. Commercial catering kitchen - a well-equipped facility with dumb waiter taking food to the ground floor bistro and library, wash-up and preparation areas, walk-in chill room and dry store, and manager's office.
Second Floor
Laundry and store room and staff cloakroom - with shower and changing facility
We are advised that the trade fixtures and fittings are owned outright and will be included within the sale
Letting Accommodation10 superbly presented en suite letting bedrooms, with LED TVs, digital radio and tea/espresso style coffee making facilities, located at first, second and third floor levels. All of the bedrooms have a mini bar.
External DetailsThere is an outside seating area to the side of the property. Additionally, there is space for two tables to the front of the property. The business benefits from the option to pay for a stall outside the hotel on market days which can be used for additional outside seating.
The OpportunityThe Masons Arms was comprehensively refurbished from a shell condition by the current owner and offers an excellent opportunity for a new owner to further develop this already popular business.
The ballroom function space offers excellent potential to develop the wedding and functions trade, whilst the business’s reputation for food is steadily growing. The venue also hosts comedy and live music nights along with other events. The Masons is well known for its "Chuck Burgers" eat-in and take-away service. The property holds Premises Licence and Civil Ceremonies Licence.
Trading information will be made available to seriously interested parties who have viewed the business premises.
TenureThis opportunity is available on both a Freehold and Leasehold basis. We are seeking a proceedable party with a good level of deposit on a Freehold offer, alternatively a 10 year FIR lease with six months rent as a deposit and then rent paid quarterly in advance, from an experienced party with a background in hospitality.
- Service charge
- Ask agent
- Business rates
- Ask agent
- Use class
- Ask agent
- Listed building
- No
- Business for sale
- Yes
An Energy Performance certificate helps you understand the current energy efficiency of a property.
Read more about EPC requirementsAsk agent
- BREEAM rating
- Ask agent
- Environmental description
- Ask agent
Brochure
The Masons Arms, 13 Cornmarket, Louth, Lincolnshire, LN11 9PY
We’re the leading specialist advisor for buying and selling businesses in our sectors - hotels, pubs, restaurants, childcare, healthcare, convenience retail, leisure and medical.
If you’re looking to buy or sell a business in our specialist sectors – from a pharmacy in Sussex to a hotel in Austria – our expert advice and collaborative support will help you achieve your goals. You may be an independent first-time buyer or a multinational adding to your portfolio; either way, you’ll discover that our personalised service is focused on helping you achieve your ambitions.
Clients have access to our carefully managed network of potential buyers. This unique database of contacts has been continually developed by our advanced IT capabilities and benefits from both our years of experience developing our network and our wide geographical coverage.
Where we work
We employ the largest team of sector specialists in the UK and the largest group of hotel specialists in Europe, providing professional brokerage and advisory services from offices in major cities across Britain and Europe. And because we’ve been doing this for over 80 years, we know our sectors and local markets inside out. We work closely with our clients to guide and conclude transactions of any size, covering hotels, restaurants and pubs, leisure, forecourts and convenience retail businesses, social care and elderly care, childcare & education facilities, dental practices and pharmacies.
Our professional services
We offer unrivalled insight, experience and expertise across your choice of services, including brokerage, consultancy, finance, development, investment, surveying, rent reviews, dispute resolution, corporate valuation, and turnaround & recovery. These services are all underpinned by our in-depth market intelligence and leading-edge technology. And we’re accredited by the Royal Institution of Chartered Surveyors (RICS), so you can trust in our professionalism.
What makes us tick
Businesses are about people, so relationships matter to us. We bring an integrity and transparency to business which can be all too rare – and that’s why people trust us. Our clients will attest to our genuine desire to help achieve their objectives, our attention to detail, and our tireless hard work on their behalf. We understand that buying a business can bring its own pressures and strains; needs can change, plans may need to be adjusted, and opportunities can come and go. But we’re always here, a constant, flexible and reliable force you can count on.
Our opening hours for all offices:
Mon – Fri, 9am – 5.30pm
Your search history
You have no recent searches
Disclaimer - Property reference 5740696-fh. The information displayed about this property comprises a property advertisement. Rightmove.co.uk makes no warranty as to the accuracy or completeness of the advertisement or any linked or associated information, and Rightmove has no control over the content. This property advertisement does not constitute property particulars. The information is provided and maintained by Christie Owen & Davies Ltd, Hotels. Please contact the selling agent or developer directly to obtain any information which may be available under the terms of The Energy Performance of Buildings (Certificates and Inspections) (England and Wales) Regulations 2007 or the Home Report if in relation to a residential property in Scotland.



















