The Pychley Inn, 23 High Street, West Haddon, Northants, NN6 7AP
Size
Ask agent
Tenure
Freehold
EPC
Parking
Ask agent
- Primary use
- Hotel
Key features
- 18 well appointed en-suite rooms
- Bar (50), two restaurants (120 total covers)
- Turnover YE March 2024 £1,332,793
- Adjusted Profit £109,583
- Close to major transport links
- Located in an affluent catchment area. Energy Rating D
- Christie & Co Ref: 5842731
Description
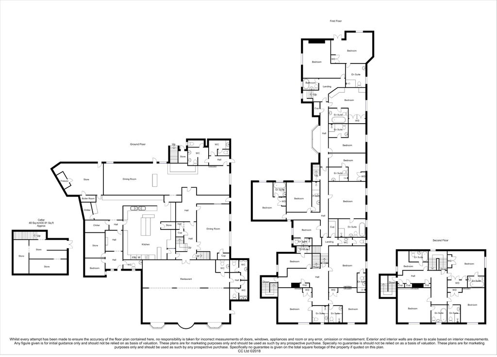
A substantial detached building of principally brick construction beneath a series of pitched roofs with an attractive Georgian frontage. The letting accommodation is arranged over the first and second floor in the main building, with the remaining bedrooms situated in a separate but adjoining two storey annex. The property has benefitted from a continual programme of capital expenditure under the current ownership including the
refurbishment of the bar, restaurant, reception, guest accommodation and ancillary areas such as the commercial kitchen.
The bedrooms are located on the first floor with function / conference space at ground floor level.
The property is set in a considerable plot and comprises a small beer garden with 30 covers adjacent to the car park.
The Pytchley Inn is situated in the centre of the affluent village of West Haddon, some 11 miles north-west of Northampton and 7 miles east of Rugby via the A428, a major arterial road. The property is strategically positioned close to major transport links such as the M1 motorway and falls within the “Golden Triangle” of logistics, the highest concentration of distribution and warehousing facilities in the UK. The Prologis RFI DIRFT, a major industrial and logistical development park, is a short distance from the property being just 4.3 miles away.
The property is also near to several key demand generators such as Silverstone Racing Circuit (21.8 miles away), numerous National Trust sites, and Althorp House, which provide important leisure trade to the business. With considerable further development planned for local villages and the surrounding area, there is ongoing opportunity to drive additional custom to the business.
Leading from the main entrance to the reception area are three distinct trading sections comprising a traditional bar area which offers a more informal setting for circa 50 covers, and two separate restaurant areas, titled the York and Ascot room. The former can accommodate up to 30 covers and is used for functions and private events. The latter is the more formal dining section for patrons and can accommodate up to 90 covers, providing a combined total of 170 covers throughout.
Fixtures & FittingsWe are advised that the fixtures and fittings will be included in the sale.
Staff AccommodationThe property comprises an outbuilding on site which has been converted to staff accommodation on the ground floor, with additional space for storage in the adjoining garage.
Letting AccommodationThe property offers 18 well appointed en-suite letting rooms and comprises the following room types;
Six premium double rooms;
One executive king room;
Four super-kings/ twin rooms of which three are classed as executive and one as premium;
Three premium triple rooms;
Two executive family rooms;
The rooms have benefitted from continual refurbishment and maintenance under the current ownership. The business enjoys a consistent occupancy rate which is driven by an influx of corporate trade midweek and leisure on weekends.
The property is set in a considerable plot and comprises a beer garden with 30 covers along with car parking for around 50 vehicles.
The OpportunityThe Pytchley Inn has traded under the current ownership for the past 46 years and this is the first time that it has been presented to the market due to the owners wishing to retire.
The owners have worked tirelessly during their occupation to create an exceptionally successful business with an enviable reputation through fine tuning the food, beverage, and accommodation offering. This is evident from both the consistent turnover and profit and excellent TripAdvisor reviews.
The predominant source of revenue for the business is produced from food and beverage sales, with over 50% of the overall income generated from dry sales alone. The restaurant is exceptionally busy seven days a week and offers a traditional British fayre, which is well supported by both the local and wider community, thus benefitting from repeat custom on continual basis.
The sale presents an opportunity for an experienced operator to capitalise upon the existing reputation whilst implementing new procedures and maximising marketing opportunities to further boost revenue.
There is scope to improve the average occupancy rate for the bedrooms by focusing on attracting further leisure trade on the weekends.
The business is currently fully managed and employs both full and part time staff members. Over the past few years the owners have sought to detach themselves from the day to day running of the business. TUPE regulations will apply. A full staff schedule will provided to credible parties.
Trading InformationThe business has performed consistently over the past five years and boasts an incremental increase in the turnover. For the year ended 31 March 2024 the business reported a net turnover of £1,332,793 and an EBITDA of £109,583.
Further trading information will be supplied to genuinely interested parties following a formal viewing.
The business is open from 7am until midday for breakfast, with food served from midday until 9pm Sunday to Thursday and 9:30pm on Fridays and Saturdays. The bar area is open from midday until 11pm Monday to Saturday, and 10:30pm on Sundays.
- Service charge
- Ask agent
- Business rates
- Ask agent
- Use class
- Ask agent
- Listed building
- No
- Business for sale
- Yes
An Energy Performance certificate helps you understand the current energy efficiency of a property.
Read more about EPC requirementsAsk agent
- BREEAM rating
- Ask agent
- Environmental description
- Ask agent
Brochure
The Pychley Inn, 23 High Street, West Haddon, Northants, NN6 7AP
We’re the leading specialist advisor for buying and selling businesses in our sectors - hotels, pubs, restaurants, childcare, healthcare, convenience retail, leisure and medical.
If you’re looking to buy or sell a business in our specialist sectors – from a pharmacy in Sussex to a hotel in Austria – our expert advice and collaborative support will help you achieve your goals. You may be an independent first-time buyer or a multinational adding to your portfolio; either way, you’ll discover that our personalised service is focused on helping you achieve your ambitions.
Clients have access to our carefully managed network of potential buyers. This unique database of contacts has been continually developed by our advanced IT capabilities and benefits from both our years of experience developing our network and our wide geographical coverage.
Where we work
We employ the largest team of sector specialists in the UK and the largest group of hotel specialists in Europe, providing professional brokerage and advisory services from offices in major cities across Britain and Europe. And because we’ve been doing this for over 80 years, we know our sectors and local markets inside out. We work closely with our clients to guide and conclude transactions of any size, covering hotels, restaurants and pubs, leisure, forecourts and convenience retail businesses, social care and elderly care, childcare & education facilities, dental practices and pharmacies.
Our professional services
We offer unrivalled insight, experience and expertise across your choice of services, including brokerage, consultancy, finance, development, investment, surveying, rent reviews, dispute resolution, corporate valuation, and turnaround & recovery. These services are all underpinned by our in-depth market intelligence and leading-edge technology. And we’re accredited by the Royal Institution of Chartered Surveyors (RICS), so you can trust in our professionalism.
What makes us tick
Businesses are about people, so relationships matter to us. We bring an integrity and transparency to business which can be all too rare – and that’s why people trust us. Our clients will attest to our genuine desire to help achieve their objectives, our attention to detail, and our tireless hard work on their behalf. We understand that buying a business can bring its own pressures and strains; needs can change, plans may need to be adjusted, and opportunities can come and go. But we’re always here, a constant, flexible and reliable force you can count on.
Our opening hours for all offices:
Mon – Fri, 9am – 5.30pm
Your search history
You have no recent searches
Disclaimer - Property reference 5842731-fh. The information displayed about this property comprises a property advertisement. Rightmove.co.uk makes no warranty as to the accuracy or completeness of the advertisement or any linked or associated information, and Rightmove has no control over the content. This property advertisement does not constitute property particulars. The information is provided and maintained by Christie Owen & Davies Ltd, Hotels. Please contact the selling agent or developer directly to obtain any information which may be available under the terms of The Energy Performance of Buildings (Certificates and Inspections) (England and Wales) Regulations 2007 or the Home Report if in relation to a residential property in Scotland.

















