1A High Street, Galashiels, Scottish Borders
Size
2,650
Lease length
Ask agent
EPC
Ask agent
Parking
Ask agent
- Price per
- Primary use
- High street retail
- Other use(s)
- Serviced office, Shop, Cafe, Restaurant, Other
- Frontage
- Ask agent
Key features
- Good Transport Links
- Modern Well Presented Premises
- GIA 2,650 sq ft
Description
Modern well presented premises
Highly Flexible. Suite Hot Food Restaurant, Treatment Rooms, Office, Retail or Hybrid Business Accommodation
Gross Internal Area 246.32 sq m (2,650 sq ft)
Town Centre Position
Good transport Links
DESCRIPTION
1a High Street a deceptively large link-detached building set back from street level.
It would appear to be of cavity brick construction. It has a render finish to the front elevation. The building has a dual span roof. The front section is finished in slate. The roof to the rear span has been renewed and is now clad with insulated composite box profile cladding.
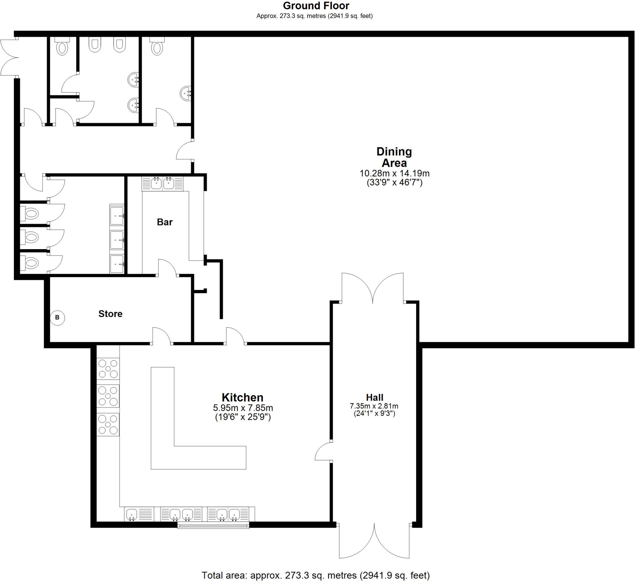
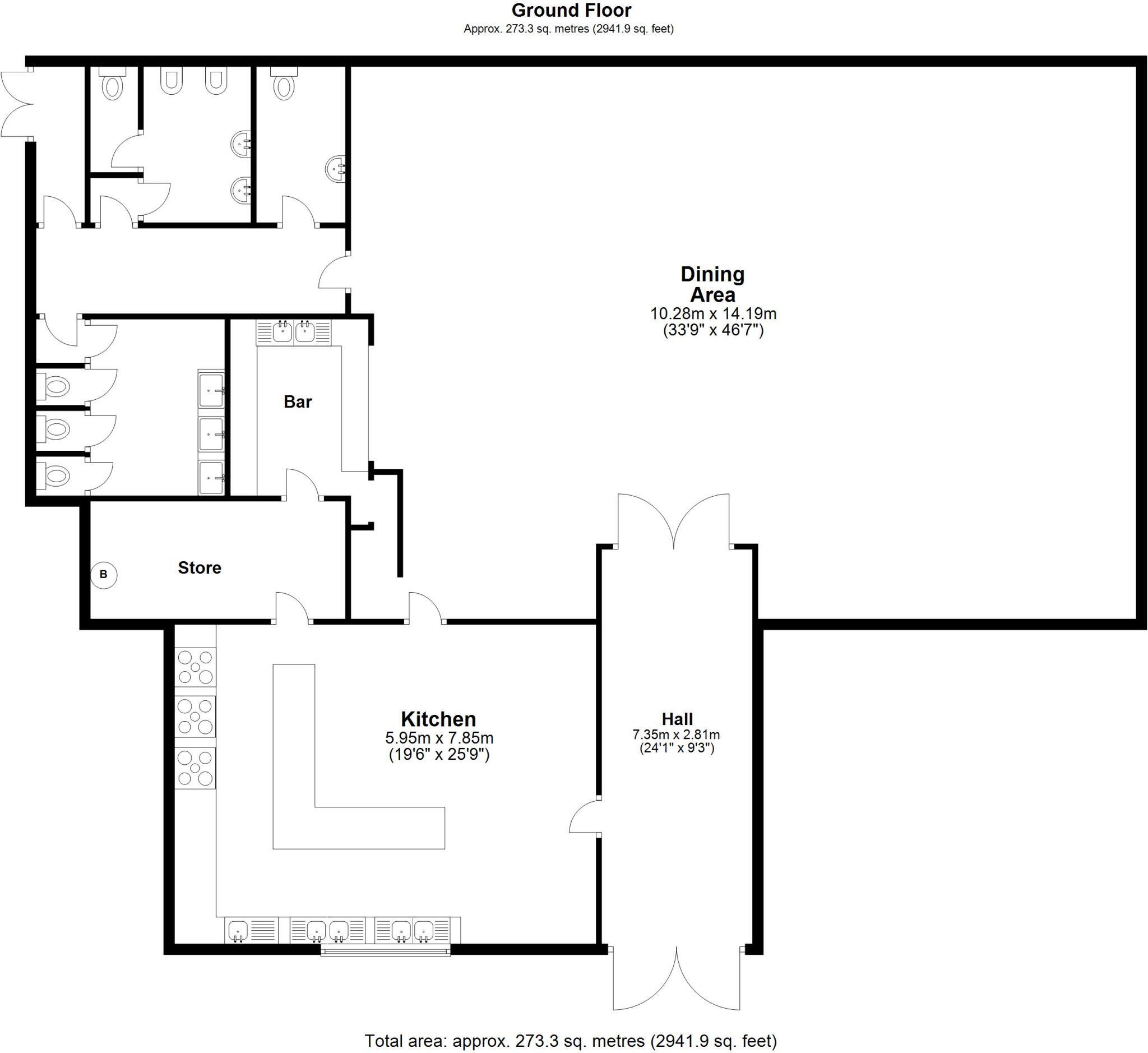
ACCOMMODATION
The subjects are currently configured as:
Ramped entrance hall; dining room/main work area with former bar area off; former kitchen now storeroom; cellar/storage cupboard; rear lobby providing access to ladies WC’s with three cubicles each with low flush units and three wash hand basins; gents fitted with two wash hand basin; two urinals and cubicle with low flush unit; disabled WC fitted to accessible standard and emergency exit to the southern corner.
AREAS
The subject has been measured in accordance with the RICS Code of Measuring Practice to the following Gross Internal Area:
1A High Street: 246.32 sq m / 2,650 sq ft
LOCATION
The subjects are situated off the High Street to the west of Galashiels town centre.
Galashiels and District has a population of approximately 14,970 according to the 2021 Mid-Year Population estimates compiled by National Records of Scotland a small increase in relation to the population recorded at the 2011 Census (14,590).
Situated within the Central Scottish Borders, Galashiels is one of the largest Towns in the region. It is generally considered to be the principal administrative, social and retail centre effectively serving a population of in excess of 116,020.
There is a significant student population within the town with campuses of Heriot Watt University and Borders College approximately 1 mile to the east at Netherdale. Borders General Hospital also has close training ties with eh Edinburgh Universities.
In recent years Galashiels has benefited from considerable public and private investment. Developments have included the Gala Water Retail Park, two new supermarkets to the east of the town centre and significant transport infrastructure works including the Galashiels Inner Relief Road, and the Borders Railway link re-establishing passenger services between Edinburgh Waverley and the Central Borders.
The journey time from Galashiels to Edinburgh city centre by train is approximately 55 minutes with departures every 30 minutes. On weekdays, the first train departs from Edinburgh at 05.45 with the last at 23.55.
RATEABLE VALUE
The subjects are assessed to a Rateable Value of £10,500 effective from 01-April-26.
Small Business Rates Relief Scheme (SBRR) currently provides up to 100% rates relief for units with a Rateable Value of £12,000 or less based on the combined total of all the occupiers business premises within Scotland (subject to application and eligibility). This relief is reviewed annually in accordance with the budget but is current for this Financial Year. The Rateable Value for the subjects is currently well below this threshold.
LEGAL COSTS
Each party will be responsible for their own legal costs incurred in connection with this transaction.
In the normal manner, the in-going tenant will be liable for any land and buildings transaction tax, registration dues and VAT thereon.
VALUE ADDED TAX
Any prices are exclusive of VAT. The property is understood to be elected to VAT. Any intending purchasers must satisfy themselves independently as to the instances of VAT in respect of any transaction
LEASE TERMS
Available by way of a Full Repairing and Insuring lease. Terms by negotiation.
EPC
TBC
PLANNING
Established Use is understood to be Class 1A of the Town and Country (Use Classes) Scotland Order 1997 (as amended) which incorporates former Class 1 (Retail), Class 2 (Financial, Professional and Other Services). Class 1A also has permitted development rights for change of use to Class 3 (Hot Food) and Class 4 (Business).
VIEWING
By appointment with the sole agents.
Edwin Thompson, Chartered Surveyors
76 Overhaugh Street
Galashiels
TD1 1DP
Tel.
Fax.
E-mail: g.
IMPORTANT NOTICE
Edwin Thompson for themselves and for the Vendor of this property, whose Agents they are, give notice that:
1. The particulars are set out as a general outline only for the guidance of intending purchasers and do not constitute, nor constitute part of, any offer or contract.
2. All descriptions, dimensions, plans, reference to condition and necessary conditions for use and occupation and other details are given in good faith and are believed to be correct, but any intending purchasers should not rely on them as statements or representations of fact but must satisfy themselves by inspection or otherwise as to their correctness.
3. No person in the employment of Edwin Thompson has any authority to make or give any representation or warranty whatsoever in relation to this property or these particulars, nor to enter into any contract relating to the property on behalf of the Agents, nor into any contract on behalf of the Vendor.
4. No responsibility can be accepted for loss or expense incurred in viewing the property or in any other way in the event of the property being sold or withdrawn.
5. Edwin Thompson is the generic trading name for Edwin Thompson Property Services Limited, a Limited Company registered in England and Wales (no.07428207). Registered office:28 St John’s Street, Keswick, Cumbria, CA12 5AF
- Let type
- Ask agent
- Let contract length
- Ask agent
- Rent obligation
- Fully repairing and insuring
- Status
- Available
- Date available
- 02 March 2026
- Service charge
- Ask agent
- Business rates
- Ask agent
- Use class
- 1A
An Energy Performance certificate helps you understand the current energy efficiency of a property.
Read more about EPC requirementsAsk agent
- BREEAM rating
- Ask agent
- Environmental description
- Ask agent
Brochure
1A High Street, Galashiels, Scottish Borders
Founded in the English Lake District in 1880, Edwin Thompson now operate from eight offices in Northern England and the Scottish Borders - Berwick-upon-Tweed, Carlisle, Edinburgh, Galashiels, Keswick, Kendal, Newcastle and Windermere, as well as their original office in Keswick - with a client list ranging from major national companies , institutions and pension funds to smaller local companies and individuals, with interests throughout the UK.
Your search history
You have no recent searches
Disclaimer - Property reference Macari-1A. The information displayed about this property comprises a property advertisement. Rightmove.co.uk makes no warranty as to the accuracy or completeness of the advertisement or any linked or associated information, and Rightmove has no control over the content. This property advertisement does not constitute property particulars. The information is provided and maintained by EDWIN THOMPSON PROPERTY SERVICES LIMITED, Galashiels. Please contact the selling agent or developer directly to obtain any information which may be available under the terms of The Energy Performance of Buildings (Certificates and Inspections) (England and Wales) Regulations 2007 or the Home Report if in relation to a residential property in Scotland.













