Suite B Lincs Gateway, Lincs Gateway Business Park, Goodison Road, Spalding, Lincolnshire
Size
1,390
Lease length
Ask agent
EPC
Parking
Ask agent
- Price per
- Primary use
- Traditional office
- Other use(s)
- Other
- Capacity
- Ask agent
- Desks
- Ask agent
Key features
- Superb Grade A Office Space Available To Let
- Prominently Located at the Entrance to The County
- Open Plan Office Space Extending to 129sqm, 1,390sqft
- High Specification Office Accommodation
- Allocated Parking
- Available To Let Leasehold on FRI Terms
Description
The offices are strategically located close to the entrance to the county from Cambridgeshire on the A16 trunk road to the south of Spalding.
Â
They form part of Lincs Gateway, which is a new Business Park under construction, the park providing a strategic Employment Zone on the Spalding Relief Road.
Â
The offices are located within an area of the Business Park where a newly constructed garage filling station and Applegreen shop has opened with Greggs, Subway and Costa concessions. Neighbours include a public house The Tulip Queen, a hotel, Taco Bell and KFC as well as other offices and business users.
Â
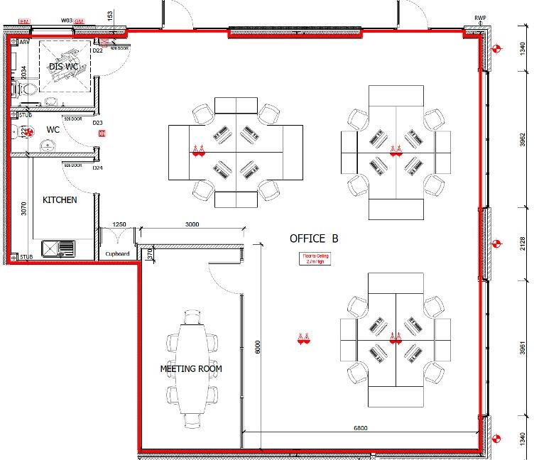
Accommodation…
Double glass entrance doors lead to the main open plan office space with a glass partitioned boardroom.
Â
Office………...……..12m x 6m, 73sqm and 4.8m x 6m, 29sqm
Boardroom…………………………………...5.7m x 3.8m, 21.2sqm
Kitchen…………………………………………..2.4m x 3.1m, 7.5sqm
Having a modern range of kitchen units, stainless steel sink, square edged work surfaces.
Store
WC
Accessible WC
Â
Allocated parking will be available.
Services…
It is understood that individual metered supplies are connected.
Â
Tenure….
The building is available by way of a new Full Repairing and Insuring lease with a minimum term of 3 years, which will be excluded from the provisions of the Landlord and Tenant Act 1954 Part II.
Â
The incoming tenant will be responsible for paying a contribution towards the Landlord’s reasonable legal fees up to a maximum of ÂŁ1,500.Â
Â
The landlord will hold a deposit the equivalent of a quarter of a year’s rent upfront.
Â
Outgoings…
All outgoings will be the responsibility of the tenant.
Â
The office is rated at ÂŁ12,500, thereby qualifying businesses may be able to claim relief.
Â
A service charge will be levied by apportionment to cover communal areas and maintenance.
Â
An insurance rent will be charged by the landlord by apportionment to cover the buildings insurance.
Â
EPC…
The office has an Energy Performance Asset Rating A24. Full details are available on request.
Â
Viewing…
All viewings are to be made by appointment through the agent. Poyntons Consultancy.
- Let type
- Ask agent
- Let contract length
- Ask agent
- Rent obligation
- Fully repairing and insuring
- Status
- Available
- Service charge
- Ask agent
- Business rates
- Ask agent
- Use class
- Ask agent
An Energy Performance certificate helps you understand the current energy efficiency of a property.
Read more about EPC requirements- BREEAM rating
- Ask agent
- Environmental description
- Ask agent
Brochure
Suite B Lincs Gateway, Lincs Gateway Business Park, Goodison Road, Spalding, Lincolnshire
Poyntons Consultancy offers advice on disposals, property acquisitions and property development across the following sectors: Retail, Industrial, Office & Business Parks, Hotels & Leisure and Residential.
As a property consultants agency we deliver exceptional results to a large and varied client base consisting of developers, investors, landlords and tenants.
Your search history
You have no recent searches
Disclaimer - Property reference SuiteBLincsGateway. The information displayed about this property comprises a property advertisement. Rightmove.co.uk makes no warranty as to the accuracy or completeness of the advertisement or any linked or associated information, and Rightmove has no control over the content. This property advertisement does not constitute property particulars. The information is provided and maintained by Poyntons Consultancy Ltd, Lincolnshire Office. Please contact the selling agent or developer directly to obtain any information which may be available under the terms of The Energy Performance of Buildings (Certificates and Inspections) (England and Wales) Regulations 2007 or the Home Report if in relation to a residential property in Scotland.












