Vacant Unit, 57-59 Dundas Street & 65-67 Dundas Mews, Middlesbrough, TS1 1HR
Size
Ask agent
Tenure
Freehold
EPC
Parking
Ask agent
- Primary use
- High street retail
- Frontage
- Ask agent
Key features
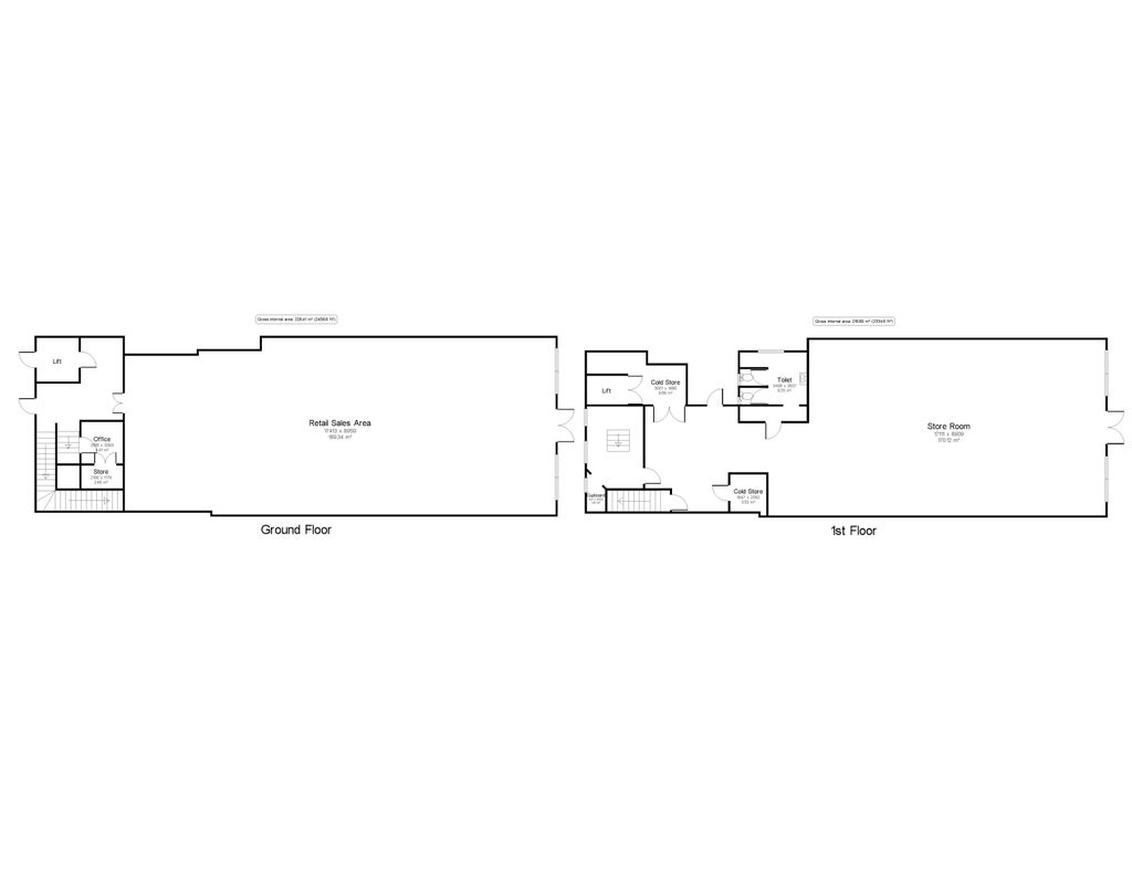
- Total Floor Area c.4,300 sq. ft (405 sq. m)
- Ground Floor Area: c.2,300 sq. ft (213 sq. m)
- Brand New Lease Available
- Use Class: E (former A1 retail)
- Busy City Centre Location
- EPC Rating C
- Christie & Co Ref: 6411162
Description
A prime retail opportunity in the heart of Middlesbrough town centre, this former Heron Foods unit offers exceptional visibility and strong footfall, . Spanning approximately 4,300 sq ft over two floors, the property features a spacious 2,300 sq ft ground floor retail area ideal for a wide range of uses, complemented by 2,100 sq ft of first-floor ancillary space including storage and staff facilities.
LocationLocated in Middlesborough town centre, with high footfall of passing trade, the property is surrounded by national and independent retailers. The property is located close to the Dundas Indoor Market with a number of independent traders, this property benefits from a highly visible location with good transport links.
Internal DetailsThe unit is currently vacant. On the ground floor there is a large retail trading area, a store room, office, internal lift and rear access. Via the stairs and lift on the first floor there is a large store area, staff w.c. and two store rooms.
The OpportunityBenefitting from Class E use makes it ideal for grocery, convenience, or general retailers, and its location within Teesside’s principal shopping hub ensures strong visibility and connectivity.
TenureThe unit is being offered on a nil premium basis with a new lease to be created with an annual rent of £48,000 (£4,000 per month).
- Service charge
- Ask agent
- Business rates
- Ask agent
- Use class
- Ask agent
- Listed building
- Ask agent
- Business for sale
- Yes
An Energy Performance certificate helps you understand the current energy efficiency of a property.
Read more about EPC requirementsAsk agent
- BREEAM rating
- Ask agent
- Environmental description
- Ask agent
Brochure
Vacant Unit, 57-59 Dundas Street & 65-67 Dundas Mews, Middlesbrough, TS1 1HR
We’re the leading specialist advisor for buying and selling businesses in our sectors - hotels, pubs, restaurants, childcare, healthcare, convenience retail, leisure and medical.
If you’re looking to buy or sell a business in our specialist sectors – from a pharmacy in Sussex to a hotel in Austria – our expert advice and collaborative support will help you achieve your goals. You may be an independent first-time buyer or a multinational adding to your portfolio; either way, you’ll discover that our personalised service is focused on helping you achieve your ambitions.
Clients have access to our carefully managed network of potential buyers. This unique database of contacts has been continually developed by our advanced IT capabilities and benefits from both our years of experience developing our network and our wide geographical coverage.
Where we work
We employ the largest team of sector specialists in the UK and the largest group of hotel specialists in Europe, providing professional brokerage and advisory services from offices in major cities across Britain and Europe. And because we’ve been doing this for over 80 years, we know our sectors and local markets inside out. We work closely with our clients to guide and conclude transactions of any size, covering hotels, restaurants and pubs, leisure, forecourts and convenience retail businesses, social care and elderly care, childcare & education facilities, dental practices and pharmacies.
Our professional services
We offer unrivalled insight, experience and expertise across your choice of services, including brokerage, consultancy, finance, development, investment, surveying, rent reviews, dispute resolution, corporate valuation, and turnaround & recovery. These services are all underpinned by our in-depth market intelligence and leading-edge technology. And we’re accredited by the Royal Institution of Chartered Surveyors (RICS), so you can trust in our professionalism.
What makes us tick
Businesses are about people, so relationships matter to us. We bring an integrity and transparency to business which can be all too rare – and that’s why people trust us. Our clients will attest to our genuine desire to help achieve their objectives, our attention to detail, and our tireless hard work on their behalf. We understand that buying a business can bring its own pressures and strains; needs can change, plans may need to be adjusted, and opportunities can come and go. But we’re always here, a constant, flexible and reliable force you can count on.
Our opening hours for all offices:
Mon – Fri, 9am – 5.30pm
Your search history
You have no recent searches
Disclaimer - Property reference 6411162-fh. The information displayed about this property comprises a property advertisement. Rightmove.co.uk makes no warranty as to the accuracy or completeness of the advertisement or any linked or associated information, and Rightmove has no control over the content. This property advertisement does not constitute property particulars. The information is provided and maintained by Christie Owen & Davies Ltd, Retail. Please contact the selling agent or developer directly to obtain any information which may be available under the terms of The Energy Performance of Buildings (Certificates and Inspections) (England and Wales) Regulations 2007 or the Home Report if in relation to a residential property in Scotland.









