
Gloucester Crescent, Primrose Hill, London, NW1

- PROPERTY TYPE
Terraced
- BEDROOMS
5
- BATHROOMS
2
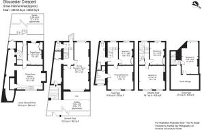
- SIZE
2,652 sq ft
246 sq m
- TENUREDescribes how you own a property. There are different types of tenure - freehold, leasehold, and commonhold.Read more about tenure in our glossary page.
Freehold
Key features
- Unmodernised Grade II Listed house
- Front and rear garden
- Central Location
- Sought-after Crescent
- Grand Volumes
Description
Description
This house has been the same ownership for 38 years and provides versatile family accommodation that will enable a purchaser to create a home to their own specification. The property offers superb volumes throughout as well as a 72ft south west facing garden. There is also potential to extend, STPA, on the garden level and extend second floor over existing bathrooms.
Location
Gloucester Crescent is a highly sought-after residential tree-lined road, close to both Regent’s Canal and Regent’s Park.
The bohemian atmosphere of Camden Town is 0.1 miles away, and Primrose Hill park is 0.5 miles away, along with the cafes and restaurants on Regent’s Park Road.
Public transport connections are extensive, with Camden Town underground being 0.2 miles away which offers connections to the Eurostar, the West End and the City.
Primrose Hill Primary School is 0.2 miles away as well as numerous local prep schools.
All distances are approximate.
Square Footage: 2,652 sq ft
Additional Info
Council Tax: Band G
Brochures
Web DetailsParticulars- COUNCIL TAXA payment made to your local authority in order to pay for local services like schools, libraries, and refuse collection. The amount you pay depends on the value of the property.Read more about council Tax in our glossary page.
- Band: G
- PARKINGDetails of how and where vehicles can be parked, and any associated costs.Read more about parking in our glossary page.
- Ask agent
- GARDENA property has access to an outdoor space, which could be private or shared.
- Yes
- ACCESSIBILITYHow a property has been adapted to meet the needs of vulnerable or disabled individuals.Read more about accessibility in our glossary page.
- Ask agent
Energy performance certificate - ask agent
Gloucester Crescent, Primrose Hill, London, NW1
Add an important place to see how long it'd take to get there from our property listings.
__mins driving to your place
Get an instant, personalised result:
- Show sellers you’re serious
- Secure viewings faster with agents
- No impact on your credit score
Your mortgage
Notes
Staying secure when looking for property
Ensure you're up to date with our latest advice on how to avoid fraud or scams when looking for property online.
Visit our security centre to find out moreDisclaimer - Property reference PHS220028. The information displayed about this property comprises a property advertisement. Rightmove.co.uk makes no warranty as to the accuracy or completeness of the advertisement or any linked or associated information, and Rightmove has no control over the content. This property advertisement does not constitute property particulars. The information is provided and maintained by Savills, Primrose Hill. Please contact the selling agent or developer directly to obtain any information which may be available under the terms of The Energy Performance of Buildings (Certificates and Inspections) (England and Wales) Regulations 2007 or the Home Report if in relation to a residential property in Scotland.
*This is the average speed from the provider with the fastest broadband package available at this postcode. The average speed displayed is based on the download speeds of at least 50% of customers at peak time (8pm to 10pm). Fibre/cable services at the postcode are subject to availability and may differ between properties within a postcode. Speeds can be affected by a range of technical and environmental factors. The speed at the property may be lower than that listed above. You can check the estimated speed and confirm availability to a property prior to purchasing on the broadband provider's website. Providers may increase charges. The information is provided and maintained by Decision Technologies Limited. **This is indicative only and based on a 2-person household with multiple devices and simultaneous usage. Broadband performance is affected by multiple factors including number of occupants and devices, simultaneous usage, router range etc. For more information speak to your broadband provider.
Map data ©OpenStreetMap contributors.





