Plaistow Road, RH14
- SIZE AVAILABLE
5,000-40,000 sq ft
465-3,716 sq m
- SECTOR
Light industrial facility to lease
Lease details
- Lease available date:
- Ask agent
- Lease type:
- Long term
Key features
- Yard area of approx 40,000 sq ft (3,716 m2) available to let in parts by separated compounds
- Compressed Type 2 surfaced areas within secure site
- Available by way of short form of leases
- Site currently operates under B2 and B8 use classes
Description
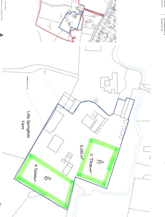
Little Springfield Farm is located off Plaistow Road approx 1 mile south of its junction of the B2133 on the edge of Loxwood village with driveway on the left hand side.
DESCRIPTION
We are pleased to offer to let surplus compressed Type 2 yard space within the site of the Landlords own business operation. Our client can offer by part ideally compounds from 5000 sq ft and above with the benefit of this being a secure site with water, three phase electricity and private drainage.
The site may suit a number of transport and storage uses subject to securing planning and any other statutory consents that may be required. Little Springfield Farm is approached via its own long private drive off the set behind secure gates
Total Site Area available Approx 40,000 sq ft (3,716m2)
AVAILABILITY
Compound marked A is under offer. Compound marked B and additional is available.
LEASE TERMS
The yard space is offered on flexible lease terms by way of a short form of lease excluded from the security provisions of the Landlord and Tenant Act 1954 for a term to be agreed. The Landlord is seeking short/medium occupation until they further expand the site.
RENTAL
Based on £3 psf pa - payable quarterly in advance on the usual quarter days. The ingoing tenant to provide a rental deposit to be held throughout the Term.
VAT
We are advised that the premises is not elected for VAT.
BUSINESS RATES
To be re- assessed now that the site is to be let by part a new assessment of the newly lettable space may be required. Interested parties are advised to make their own enquiries of the local rating authority to verify this information.
PLANNING
The site has historically operated under existing B2 General Industrial and B8 Storage and Distribution uses and may also suit a number of alternative uses subject to the securing the required planning
permission.
LEGAL COSTS
Each party to be responsible for their own legal costs in the transaction.
ALL SUMS QUOTED ARE EXCLUSIVE OF VAT WHERE APPLICABLE
VIEWING
Strictly by appointment with the Landlord's Sole Agents:
Robinsons
Contact: Steven Lane
Tel:
Brochures
Plaistow Road, RH14
NEAREST STATIONS
Distances are straight line measurements from the centre of the postcode- Billingshurst Station5.0 miles
Notes
Disclaimer - Property reference Billingshurst1. The information displayed about this property comprises a property advertisement. Rightmove.co.uk makes no warranty as to the accuracy or completeness of the advertisement or any linked or associated information, and Rightmove has no control over the content. This property advertisement does not constitute property particulars. The information is provided and maintained by Robinsons, Commercial, Reigate. Please contact the selling agent or developer directly to obtain any information which may be available under the terms of The Energy Performance of Buildings (Certificates and Inspections) (England and Wales) Regulations 2007 or the Home Report if in relation to a residential property in Scotland.
Map data ©OpenStreetMap contributors.



