High street retail property for sale
119 Southampton Way, London, SE5
- SIZE AVAILABLE
1,363 sq ft
127 sq m
- SECTOR
High street retail property for sale
- USE CLASSUse class orders: A1 Shops and Class E
A1, E
Description
Gross Initial Yield: 5.99%
Rental Income: £23,975 p.a.
VAT is NOT applicable to this property
Comprises ground floor shop t/a Coral
Located in predominantly residential area with occupiers nearby including Costcutter, Post Office, Hair Dresser and more.
Property Description:
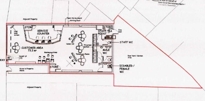
The property comprises ground floor shop t/a Coral and provides the following accommodation and dimensions:
Ground Floor: 126.60 sq m (1,363 sq ft)
Open plan retail, Office, Storage, WCs
Tenancy:
The property is at present let to Coral Racing Limited for a term of 16 years from 1st March 2011 at a current rent of £23,975.67 p.a. and the lease contains full repairing and insuring covenants. No breaks.
Tenure:
Long Leasehold. To be held on a new 999 Year lease from completion at a ground rent of peppercorn.
Location:
Camberwell is a densely populated suburb of South East London located in the London Borough of Southwark, approximately 3 miles south-east of Central London. The property is situated on the north side of Southampton Way at the junction with Wells Way. The area is served by the A2 to the north east, the A3 to the west and A202 Peckham Road to the south. Denmark Hill mainline station providing a direct line to London Blackfriars station with a train every 15 minutes.
Brochures
119 Southampton Way, London, SE5
NEAREST STATIONS
Distances are straight line measurements from the centre of the postcode- Denmark Hill Station0.7 miles
- Peckham Rye Station0.9 miles
- Kennington Station1.1 miles
Notes
Disclaimer - Property reference camberwell2. The information displayed about this property comprises a property advertisement. Rightmove.co.uk makes no warranty as to the accuracy or completeness of the advertisement or any linked or associated information, and Rightmove has no control over the content. This property advertisement does not constitute property particulars. The information is provided and maintained by Blue Alpine, London. Please contact the selling agent or developer directly to obtain any information which may be available under the terms of The Energy Performance of Buildings (Certificates and Inspections) (England and Wales) Regulations 2007 or the Home Report if in relation to a residential property in Scotland.
Map data ©OpenStreetMap contributors.




