Pub to lease
560 Christchurch Road, Boscombe, Bournemouth, Dorset
- SIZE AVAILABLE
5,144 sq ft
478 sq m
- SECTOR
Pub to lease
Lease details
- Lease available date:
- Now
- Lease type:
- Long term
Key features
- Premises with licence till 02.00 am
- Ground floor area: 212 sq.m./2,281 sq.ft.
- Basement floor area: 266 sq.m./2863 sq.ft.
Description
The building comprises a Public House located within the pedestrianised section of Christchurch Road. The property has the benefit of a substantial frontage and visibility to the road and is located close to a range of day time and night time entertainment and catering establishments including the O2 Academy, McDonalds, the award winning Chaplin's & The Cellar Bar as well as a range of locally run fast food establishments.
The commercial element of the building has historically traded as a public house arranged over ground and lower ground floors.
The basement is separated from the ground floor and has its own separate entrance.
Planning
Long established Class A4 drinking establishment.
From September 2020 this property falls within Class E Commercial Businesses and Services, which include A1, A2, A3, B1, Indoor sports and Medical use, crèche/day nursery
Legal Fees
Each party will be responsible for their own legal fees.
EPC
Rating B-43
Costs
Once a letting has been agreed, the proposed tenant will need to make a non-refundable applicant charge of £600 plus VAT.
There is a premium of £50,000
Accommodation Text
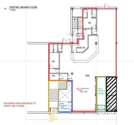
Ground Floor - See Plan - Existing ground floor edged in red
Male and Female WC's
Stores
Rear office area
Rear smoking area
Seating area
Ground floor area: 212 sq m / 2,281 sq ft
Basement - See Plan - Existing ground floor edged in yellow and Basement plan
Main area
Kitchen
Store
Male and Female WC's
Rear Fire Escape
Beer Store/Cellar
Basement floor area: 266 sq m / 2,863 sq ft
Premises with licence till 02.00 am
Ground floor area: 212 sq.m./2,281 sq.ft.
Basement floor area: 266 sq.m./2863 sq.ft.
Tenure Comments
Available on a new lease with terms to be negotiated for the whole property at a rental of £50,000 per annum.
Premium £50,000
LICENSED PREMISES - TO LET
Brochures
560 Christchurch Road, Boscombe, Bournemouth, Dorset
NEAREST STATIONS
Distances are straight line measurements from the centre of the postcode- Pokesdown Station0.7 miles
- Bournemouth Station1.1 miles
- Christchurch Station2.5 miles
Notes
Disclaimer - Property reference 259LH. The information displayed about this property comprises a property advertisement. Rightmove.co.uk makes no warranty as to the accuracy or completeness of the advertisement or any linked or associated information, and Rightmove has no control over the content. This property advertisement does not constitute property particulars. The information is provided and maintained by Ellis and Partners Limited, Bournemouth. Please contact the selling agent or developer directly to obtain any information which may be available under the terms of The Energy Performance of Buildings (Certificates and Inspections) (England and Wales) Regulations 2007 or the Home Report if in relation to a residential property in Scotland.
Map data ©OpenStreetMap contributors.




