
High Street, Burnham-On-Crouch
- PROPERTY TYPE
Commercial Property
- BEDROOMS
4
- BATHROOMS
2
- SIZE
3,500 sq ft
325 sq m
Key features
- Freehold split commerical andi residential investment for sale
- Prime location in affluent market town
- Being sold with vacant possession
- Courtyard style rear with garage storage (No off road parking)
- 4 bedroom duplex apartment on first and second floor
- May suit alternative uses, subject to obtaining the necessary consents
- 3500 sq ft total floor area
- Viewing by appointment - Church & Hawes
- EPC Rating - Residential E, Commercial B
- Business rates from 1st April 2023 £16,500 pa
Description
MIXED USE INVESTMENT: A VACANT FREEHOLD BUILDING CONTAINING A RESTAURANT ON THE GROUND FLOOR AND A 5 BEDROOM FLAT ON THE UPPER FLOORS
A vacant freehold building with former restaurant on the ground floor and a 4/5 bedroom flat on the first and second floor. There is also a rear courtyard with garage storage. It is considered that the upper floors could suit multi occupational letting with some minor adaptations and obtaining necessary consents.
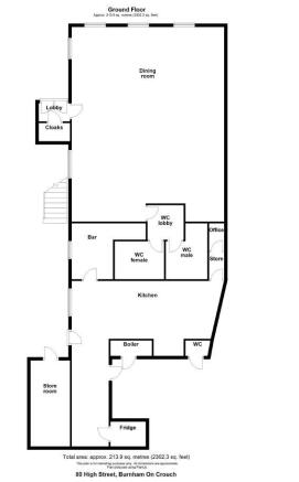
Total Floor Area
3550 square foot approximately
Ground floor commercial - Approximately 2300 square foot
Duplex Residential Apartment - Approximately 1250 square foot over the first and second floors with accommodation to include kitchen, bathroom, shower room, communal living/dining area and 5 bedrooms.
It is considered that the ground floor commercial unit could suit a variety of uses and the upper floors could be converted to create studio apartments or be used for multiple occupancy letting subject to obtaining planning permission and all other necessary consents.
For all planning enquiries please contact Maldon District council planning department on
Residential E, Commercial B
Agents Note - These particulars do not constitute any part of an offer or contract. All measurements are approximate. No responsibility is accepted as to the accuracy of these particulars or statements made by our staff concerning the above property. We have not tested any apparatus or equipment therefore cannot verify that they are in good working order. Any intending purchaser must satisfy themselves as to the correctness of such statements within these particulars. All negotiations to be conducted through Church and Hawes. No enquiries have been made with the local authorities pertaining to planning permission or building regulations. Any buyer should seek verification from their legal representative or surveyor.
Village Of Burnham-On-Crouch - Burnham-on-Crouch is a picturesque town on the banks of the River Crouch, a renown yachting and sailing centre hosting the famous ‘Burnham Week’ at the end of August. The town has a population of a little over 9,500 and is the principal settlement in the Dengie peninsula. Consequently it boasts many amenities that are uncommon in small towns including two primary schools and an academy secondary school, independent cinema, Burnham yacht harbour/marina, several boatyards, three yacht clubs (including the Royal Corinthian & Royal Burnham), two supermarkets and numerous individual shops, public houses and restaurants. There is a railway station on the Southminster branch line with direct commuter trains into London Liverpool Street (at peak times). The Burnham-on-Crouch Golf Club, founded in 1923, is situated in Creeksea on the outskirts of Burnham and enjoys breathtaking views over the Crouch Valley and River Crouch.
Brochures
High Street, Burnham-On-CrouchHigh Street, Burnham-On-Crouch
NEAREST STATIONS
Distances are straight line measurements from the centre of the postcode- Burnham-on-Crouch Station0.7 miles
- Southminster Station2.5 miles
- Althorne Station3.4 miles


Notes
Disclaimer - Property reference 33950724. The information displayed about this property comprises a property advertisement. Rightmove.co.uk makes no warranty as to the accuracy or completeness of the advertisement or any linked or associated information, and Rightmove has no control over the content. This property advertisement does not constitute property particulars. The information is provided and maintained by Church & Hawes, Burnham on Crouch. Please contact the selling agent or developer directly to obtain any information which may be available under the terms of The Energy Performance of Buildings (Certificates and Inspections) (England and Wales) Regulations 2007 or the Home Report if in relation to a residential property in Scotland.
Auction Fees: The purchase of this property may include associated fees not listed here, as it is to be sold via auction. To find out more about the fees associated with this property please call Church & Hawes, Burnham on Crouch on 01621 738570.
*Guide Price: An indication of a seller's minimum expectation at auction and given as a Guide Price or a range of Guide Prices. This is not necessarily the figure a property will sell for and is subject to change prior to the auction.
Reserve Price: Each auction property will be subject to a Reserve Price below which the property cannot be sold at auction. Normally the Reserve Price will be set within the range of Guide Prices or no more than 10% above a single Guide Price.
Map data ©OpenStreetMap contributors.







