
3 bedroom end of terrace house for sale
Penistone Road North, Sheffield

- PROPERTY TYPE
End of Terrace
- BEDROOMS
3
- BATHROOMS
1
- SIZE
Ask agent
Key features
- GUIDE PRICE £180,000-£190,000
- Spacious 3-bedroom end of terrace home in Hillsborough, Sheffield.
- Rare private driveway — a valuable feature in this location.
- Large exterior storage space for extra convenience.
- Close to Hillsborough Football Ground, ideal for sports fans.
- Excellent public transport links with easy access to the city centre and M1 motorway.
- Near local amenities and Kilner Way retail park for everyday needs.
Description
Imagine the ease of having your own private driveway — a true rarity in this sought-after area — offering both convenience and peace of mind. Whether you're commuting, shopping, or enjoying local amenities, this home puts everything within easy reach, making day-to-day life effortless.
Don’t miss out on this exceptional Hillsborough home with outstanding transport links and unique features. Contact us today to arrange a viewing and take the first step toward making this fantastic property yours!
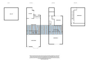
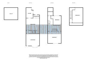
Dining Room
14'3" x 12'2" (4.35m x 3.73m)
Rear door to back porch, GCH radiator and access to off-shot kitchen.
Living Room
14'4" x 11'6" (4.37m x 3.52m)
Front door access, front facing bay window, GCH radiator.
Kitchen
11'11" x 5'11" (3.64m x 1.82m)
Side facing windows and integrated appliances.
Bedroom
14'0" x 11'11" (4.29m x 3.65m)
Front facing window, storage cupboard and GCH radiator.
Bathroom
10'8" x 10'0" (3.27m x 3.07m)
Rear facing window and GCH radiator.
Bedroom Three
17'7" x 10'6" (5.36m x 3.21m)
Rear facing Velux window, GCH radiator and storage.
Disclaimer
Haybrook Estate Agents also offer a professional, ARLA accredited Lettings and Management Service. If you are considering renting your property in order to purchase, are looking at buy to let or would like a free review of your current portfolio then please call the Lettings Branch Manager on the number shown above.
Haybrook Estate Agents is the seller's agent for this property. Your conveyancer is legally responsible for ensuring any purchase agreement fully protects your position. We make detailed enquiries of the seller to ensure the information provided is as accurate as possible. Please inform us if you become aware of any information being inaccurate.
Brochures
Material InformationBrochure- COUNCIL TAXA payment made to your local authority in order to pay for local services like schools, libraries, and refuse collection. The amount you pay depends on the value of the property.Read more about council Tax in our glossary page.
- Ask agent
- PARKINGDetails of how and where vehicles can be parked, and any associated costs.Read more about parking in our glossary page.
- Yes
- GARDENA property has access to an outdoor space, which could be private or shared.
- Ask agent
- ACCESSIBILITYHow a property has been adapted to meet the needs of vulnerable or disabled individuals.Read more about accessibility in our glossary page.
- Ask agent
Penistone Road North, Sheffield
Add an important place to see how long it'd take to get there from our property listings.
__mins driving to your place
Get an instant, personalised result:
- Show sellers you’re serious
- Secure viewings faster with agents
- No impact on your credit score

Your mortgage
Notes
Staying secure when looking for property
Ensure you're up to date with our latest advice on how to avoid fraud or scams when looking for property online.
Visit our security centre to find out moreDisclaimer - Property reference 0311_HAY031176588. The information displayed about this property comprises a property advertisement. Rightmove.co.uk makes no warranty as to the accuracy or completeness of the advertisement or any linked or associated information, and Rightmove has no control over the content. This property advertisement does not constitute property particulars. The information is provided and maintained by Haybrook, Hillsborough. Please contact the selling agent or developer directly to obtain any information which may be available under the terms of The Energy Performance of Buildings (Certificates and Inspections) (England and Wales) Regulations 2007 or the Home Report if in relation to a residential property in Scotland.
*This is the average speed from the provider with the fastest broadband package available at this postcode. The average speed displayed is based on the download speeds of at least 50% of customers at peak time (8pm to 10pm). Fibre/cable services at the postcode are subject to availability and may differ between properties within a postcode. Speeds can be affected by a range of technical and environmental factors. The speed at the property may be lower than that listed above. You can check the estimated speed and confirm availability to a property prior to purchasing on the broadband provider's website. Providers may increase charges. The information is provided and maintained by Decision Technologies Limited. **This is indicative only and based on a 2-person household with multiple devices and simultaneous usage. Broadband performance is affected by multiple factors including number of occupants and devices, simultaneous usage, router range etc. For more information speak to your broadband provider.
Map data ©OpenStreetMap contributors.





