3 bedroom semi-detached house for sale
Red Deer Road, Radbrook, Shrewsbury, SY3 9FA

- PROPERTY TYPE
Semi-Detached
- BEDROOMS
3
- BATHROOMS
1
- SIZE
Ask agent
- TENUREDescribes how you own a property. There are different types of tenure - freehold, leasehold, and commonhold.Read more about tenure in our glossary page.
Freehold
Description
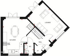
Accommodation comprises
Pitched roof entrance storm porch, double glazed composite entrance door.
Entrance Hall
Tiled flooring, radiator, built in airing cupboard, staircase leads to First Floor Landing.
Cloakroom/WC
Fitted with wash basin with tiled splash and WC, ceramic tile flooring, radiator, double glazed front window.
Living Room
17' 10'' x 10' 10'' (5.43m x 3.30m)
Attractive room with excellent natural lighting, 2 radiators, double glazed front window and French doors leading to rear garden.
Kitchen/Dining Room
17' 10'' x 11' 8'' (5.43m x 3.55m)
Tiled flooring and fitted with an excellent range of cream shaker style units, laminated work tops, inset 1 1/2 bowl sink unit with mixer tap, good range of integrated appliances including electric oven, 4 ring gas hob with glass splash and filter hood, fridge/freezer, dishwasher and washing machine, cupboard housing gas central heating boiler, double glazed window to the front. The Dining Area also provides space for seating with double radiator, double glazed French doors looking over and leading onto private rear garden.
First Floor Landing
Double glazed window overlooking rear garden.
Bedroom 1
13' 11'' x 11' 9'' (4.24m x 3.58m)
A most impressive room offering generous space, large double glazed window to the front, double radiator.
En Suite Shower Room
Again a good size room with fully tiled double size shower cubicle, wash basin, WC, radiator, double glazed window, shaver socket, extractor.
Bedroom 2
13' 0'' x 10' 4'' (3.96m x 3.15m)
Radiator, double doors to large built in storage cupboard, double glazed window with deep sill to the front.
Bedroom 3
7' 3'' x 7' 6'' (2.21m x 2.28m)
Radiator, double glazed window overlooking rear garden.
Family Bathroom
Fitted with white 3 piece suite including bath with mixer tap and deep tiled surround, wash basin, WC, double radiator, extractor, double glazed rear window.
Outside - Front
The property enjoys a corner position with Garage and driveway providing parking for 2 cars. The front garden is laid to lawn.
Brick Built Garage
Up and over door, pitched roof.
Rear Garden
Private rear garden approached onto paved patio. The majority of garden is laid to lawn enclosed by high level timber fencing with gated access to the side leading to the driveway.
Brochures
Property BrochureFull Details- COUNCIL TAXA payment made to your local authority in order to pay for local services like schools, libraries, and refuse collection. The amount you pay depends on the value of the property.Read more about council Tax in our glossary page.
- Band: D
- PARKINGDetails of how and where vehicles can be parked, and any associated costs.Read more about parking in our glossary page.
- Yes
- GARDENA property has access to an outdoor space, which could be private or shared.
- Yes
- ACCESSIBILITYHow a property has been adapted to meet the needs of vulnerable or disabled individuals.Read more about accessibility in our glossary page.
- Ask agent
Red Deer Road, Radbrook, Shrewsbury, SY3 9FA
Add an important place to see how long it'd take to get there from our property listings.
__mins driving to your place
Get an instant, personalised result:
- Show sellers you’re serious
- Secure viewings faster with agents
- No impact on your credit score
Your mortgage
Notes
Staying secure when looking for property
Ensure you're up to date with our latest advice on how to avoid fraud or scams when looking for property online.
Visit our security centre to find out moreDisclaimer - Property reference 12703233. The information displayed about this property comprises a property advertisement. Rightmove.co.uk makes no warranty as to the accuracy or completeness of the advertisement or any linked or associated information, and Rightmove has no control over the content. This property advertisement does not constitute property particulars. The information is provided and maintained by Zaza Johnson & Bath, Shrewsbury. Please contact the selling agent or developer directly to obtain any information which may be available under the terms of The Energy Performance of Buildings (Certificates and Inspections) (England and Wales) Regulations 2007 or the Home Report if in relation to a residential property in Scotland.
*This is the average speed from the provider with the fastest broadband package available at this postcode. The average speed displayed is based on the download speeds of at least 50% of customers at peak time (8pm to 10pm). Fibre/cable services at the postcode are subject to availability and may differ between properties within a postcode. Speeds can be affected by a range of technical and environmental factors. The speed at the property may be lower than that listed above. You can check the estimated speed and confirm availability to a property prior to purchasing on the broadband provider's website. Providers may increase charges. The information is provided and maintained by Decision Technologies Limited. **This is indicative only and based on a 2-person household with multiple devices and simultaneous usage. Broadband performance is affected by multiple factors including number of occupants and devices, simultaneous usage, router range etc. For more information speak to your broadband provider.
Map data ©OpenStreetMap contributors.








