
Woodlands Close, Dibden Purlieu, SO45

- PROPERTY TYPE
Detached Bungalow
- BEDROOMS
3
- BATHROOMS
2
- SIZE
Ask agent
- TENUREDescribes how you own a property. There are different types of tenure - freehold, leasehold, and commonhold.Read more about tenure in our glossary page.
Freehold
Key features
- PART-EXCHANGE CONSIDERED
- Excellent opportunity to purchase a BRAND NEW detached bungalow
- Potential to customise your own internal finish (if you're quick!)
- Enviable location set within a short walk of Dibden Purlieu Village & its amenities
- Landscaped gardens and plenty of driveway parking
- Three bedrooms, two bathrooms & impressive, open-plan living area
- High-specification to comply with latest regulations
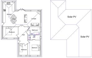
- Solar panels, ground source heat pump, triple glazed windows & underfloor heating
- Completion expected by the end of the summer - Book your viewing today!
Description
A unique opportunity to purchase a BRAND NEW detached bungalow, boasting an enviable setting within highly favoured cul-de-sac, positioned within a short walk of Dibden Purlieu Village and The New Forest National Park. The property has been designed with modern, energy efficient living in mind. The finished product will showcase solar panels, a ground-source heat pump, triple glazed windows and underfloor heating throughout.
Internally, the accommodation features three well-proportioned bedrooms, a family bathroom and ensuite shower room, and an impressive open-plan kitchen/living area. Exterior highlights include landscaped gardens and ample driveway parking.
The high-specification home is anticipated for completion by the end of summer, so seize the opportunity to make this your next home.
LOCATION
The property is positioned in the requested area of Dibden Purlieu and is favoured for being within walking distance of both The New Forest National Park and the local, village amenities. In Dibden Purlieu there are a variety of shops, cafes/restaurants, a butcher and a gastro pub (The Heath). The historic waterside town of Hythe is just a short drive away enjoying a further variety of amenities. A local bus service operating through Dibden Purlieu allows access to most of the surrounding areas including Southampton. There are mainline railway stations at Brockenhurst and Southampton Central, which are both just a drive away, plus the opportunity for connections at Beaulieu Road and Totton. Proximity to the water enables many outside interests to be enjoyed. There are also various activity centres including a Golf Course with driving range in nearby Dibden and a recreation centre with swimming pool at Applemore.
- COUNCIL TAXA payment made to your local authority in order to pay for local services like schools, libraries, and refuse collection. The amount you pay depends on the value of the property.Read more about council Tax in our glossary page.
- Ask agent
- PARKINGDetails of how and where vehicles can be parked, and any associated costs.Read more about parking in our glossary page.
- Yes
- GARDENA property has access to an outdoor space, which could be private or shared.
- Yes
- ACCESSIBILITYHow a property has been adapted to meet the needs of vulnerable or disabled individuals.Read more about accessibility in our glossary page.
- Ask agent
Energy performance certificate - ask agent
Woodlands Close, Dibden Purlieu, SO45
Add an important place to see how long it'd take to get there from our property listings.
__mins driving to your place
Get an instant, personalised result:
- Show sellers you’re serious
- Secure viewings faster with agents
- No impact on your credit score
Your mortgage
Notes
Staying secure when looking for property
Ensure you're up to date with our latest advice on how to avoid fraud or scams when looking for property online.
Visit our security centre to find out moreDisclaimer - Property reference 6f7e3c59-70e7-4d18-81fb-238be80e7e8d. The information displayed about this property comprises a property advertisement. Rightmove.co.uk makes no warranty as to the accuracy or completeness of the advertisement or any linked or associated information, and Rightmove has no control over the content. This property advertisement does not constitute property particulars. The information is provided and maintained by Anthony James Properties, Dibden Purlieu. Please contact the selling agent or developer directly to obtain any information which may be available under the terms of The Energy Performance of Buildings (Certificates and Inspections) (England and Wales) Regulations 2007 or the Home Report if in relation to a residential property in Scotland.
*This is the average speed from the provider with the fastest broadband package available at this postcode. The average speed displayed is based on the download speeds of at least 50% of customers at peak time (8pm to 10pm). Fibre/cable services at the postcode are subject to availability and may differ between properties within a postcode. Speeds can be affected by a range of technical and environmental factors. The speed at the property may be lower than that listed above. You can check the estimated speed and confirm availability to a property prior to purchasing on the broadband provider's website. Providers may increase charges. The information is provided and maintained by Decision Technologies Limited. **This is indicative only and based on a 2-person household with multiple devices and simultaneous usage. Broadband performance is affected by multiple factors including number of occupants and devices, simultaneous usage, router range etc. For more information speak to your broadband provider.
Map data ©OpenStreetMap contributors.





