3 bedroom apartment for sale
Sliema, Malta
- PROPERTY TYPE
Apartment
- BEDROOMS
3
- BATHROOMS
3
- SIZE
2,756 sq ft
256 sq m
Key features
- Large 3-bedroom apartment in an Edwardian block on Sliema seafront
- First-floor location with sea views and walking distance to cafés and restaurants
- Bright, airy rooms with high ceilings and beautiful architectural details
- Fully furnished and recently converted with luxury finishes
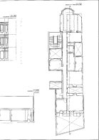
- Welcoming entrance hall leading to a spacious front sitting room and separate dining room
- Guest powder room with hidden laundry closet (washing machine & dryer)
- Study/home office and separate fully equipped kitchen
- Master bedroom with en-suite bath and walk-in shower
- Two additional bedrooms with access to back balcony
- Main bathroom at the back of the apartment
Description
The entrance hall opens to a spacious front sitting room and a separate dining area, perfect for entertaining. A guest powder room cleverly hides the washing machine and dryer, while a study or home office adds flexibility. The fully equipped kitchen provides everything needed for daily life.
The sleeping quarters are located at the back of the apartment, offering privacy and light. The master bedroom includes a luxurious en-suite bath and walk-in shower, while the two additional bedrooms enjoy access to a bright back balcony.
Adding further value, there is a roof room with water and electricity and undivided roof ownership, ideal for storage or creating a private retreat. Fully furnished and ready to move in, this apartment offers a rare combination of seafront living, space, and character in one of Malta's most sought-after areas.
Sliema, Malta
NEAREST AIRPORTS
Distances are straight line measurements- Malta(International)3.2 miles
- Malta(International)3.6 miles
Notes
This is a property advertisement provided and maintained by Remax Malta, Malta (reference 240091001-390) and does not constitute property particulars. Whilst we require advertisers to act with best practice and provide accurate information, we can only publish advertisements in good faith and have not verified any claims or statements or inspected any of the properties, locations or opportunities promoted. Rightmove does not own or control and is not responsible for the properties, opportunities, website content, products or services provided or promoted by third parties and makes no warranties or representations as to the accuracy, completeness, legality, performance or suitability of any of the foregoing. We therefore accept no liability arising from any reliance made by any reader or person to whom this information is made available to. You must perform your own research and seek independent professional advice before making any decision to purchase or invest in overseas property.




