3 bedroom semi-detached house for sale
Caerbryn, PENTWYNMAWR, NEWBRIDGE, NP11

- PROPERTY TYPE
Semi-Detached
- BEDROOMS
3
- BATHROOMS
1
- SIZE
Ask agent
- TENUREDescribes how you own a property. There are different types of tenure - freehold, leasehold, and commonhold.Read more about tenure in our glossary page.
Freehold
Description
The village of Pentwynmawr is so sought after with its communal amenities, country walks, and great school options.
The railway station for commuting is in the nearby town of Newbridge.
This super property has recently been refurbished to an impeccable standard with an eye for modern design and maximising on space.
The gardens have also been landscaped to include a front rear and side with driveway parking for multi vehicles.
There is an EV charger ready installed.
The grounds are well manicured with sun seating areas and minimal maintenance lawn for the whole family to enjoy.
Inside you note how light and airy it feels with pleasing natural daylight flooding through the large windows.
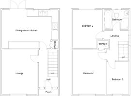
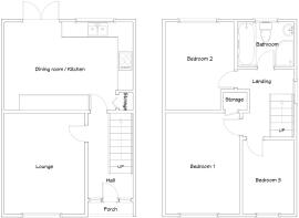
The hallway welcomes you with modern décor, laminate flooring, and an open staircase to one side having storage beneath.
The lounge (3.88m x 3.12m) is super cosy with a large front window and plush carpet.
The kitchen/dining area (3.23m x 5.13m) the heart of the home is the perfect place for family entertaining.
It has laminate flooring, modern décor, a window and French doors to the garden and a range of high gloss cabinets with an oven, a hob, a hood, a dish washer, and a coloured sink/drainer.
There is space for a large fridge freezer and a washing machine.
You also find handy fitted storage.
The first floor mirrors the ground for space with landing area having a side window, a family bathroom, and three bedrooms.
Bedroom one (4.01m x 2.98m) has a front window, plush carpet, fitted storage, and elegant décor.
Bedroom two (3.50m x 2.82m) has a rear window and laminate flooring.
Bedroom three (2.94m x 2.02m) has a front window and carpet.
The bathroom (2.26m x 1.87m) is again super modern with a rear window, smart décor, a WC, a wash basin in vanity storage, a bath and a shower enclosure with a waterfall shower and glazed doors.
A simply superb family home.
- COUNCIL TAXA payment made to your local authority in order to pay for local services like schools, libraries, and refuse collection. The amount you pay depends on the value of the property.Read more about council Tax in our glossary page.
- Ask agent
- PARKINGDetails of how and where vehicles can be parked, and any associated costs.Read more about parking in our glossary page.
- Yes
- GARDENA property has access to an outdoor space, which could be private or shared.
- Yes
- ACCESSIBILITYHow a property has been adapted to meet the needs of vulnerable or disabled individuals.Read more about accessibility in our glossary page.
- Ask agent
Caerbryn, PENTWYNMAWR, NEWBRIDGE, NP11
Add an important place to see how long it'd take to get there from our property listings.
__mins driving to your place
Get an instant, personalised result:
- Show sellers you’re serious
- Secure viewings faster with agents
- No impact on your credit score
Your mortgage
Notes
Staying secure when looking for property
Ensure you're up to date with our latest advice on how to avoid fraud or scams when looking for property online.
Visit our security centre to find out moreDisclaimer - Property reference CAERBRYNNEW. The information displayed about this property comprises a property advertisement. Rightmove.co.uk makes no warranty as to the accuracy or completeness of the advertisement or any linked or associated information, and Rightmove has no control over the content. This property advertisement does not constitute property particulars. The information is provided and maintained by Cariad Property, Newbridge. Please contact the selling agent or developer directly to obtain any information which may be available under the terms of The Energy Performance of Buildings (Certificates and Inspections) (England and Wales) Regulations 2007 or the Home Report if in relation to a residential property in Scotland.
*This is the average speed from the provider with the fastest broadband package available at this postcode. The average speed displayed is based on the download speeds of at least 50% of customers at peak time (8pm to 10pm). Fibre/cable services at the postcode are subject to availability and may differ between properties within a postcode. Speeds can be affected by a range of technical and environmental factors. The speed at the property may be lower than that listed above. You can check the estimated speed and confirm availability to a property prior to purchasing on the broadband provider's website. Providers may increase charges. The information is provided and maintained by Decision Technologies Limited. **This is indicative only and based on a 2-person household with multiple devices and simultaneous usage. Broadband performance is affected by multiple factors including number of occupants and devices, simultaneous usage, router range etc. For more information speak to your broadband provider.
Map data ©OpenStreetMap contributors.





