
Airedale View, Leeds, West Yorkshire

- PROPERTY TYPE
Terraced
- BEDROOMS
2
- BATHROOMS
1
- SIZE
Ask agent
Key features
- Two bedroom through terrace
- Well presented throughout
- Dining kitchen and utility room
- Two first floor bedrooms, modern bathroom
- Front and rear gardens
- Space for off street parking
- Canal-side walks nearby
- Well placed for commuter links
Description
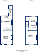
Benefitting from gas central heating and double glazing, the accommodation comprises in brief, to the ground floor; entrance into the living room with gas fire in feature cast iron surround and dado rail, dining kitchen with built in understairs storage, a range of sage green shaker-style fitted units, electric oven, gas hob, tiled floor and access out to the rear garden and utility room with fitted beech base units, stainless steel sink, tiled floor and plumbing for a washing machine.
To the first floor are two well-proportioned bedrooms, the principal bedroom with some super views out to the front elevation and painted wood flooring and bedroom with built-in wardrobe. The house bathroom is fitted with a white suite to include WC, wash basin and bath with mixer shower, chrome heated towel rail and stylish vinyl flooring. Externally, the property has a well-manicured enclosed garden to the front of the property with lawn and paved pathway and to the rear is a tiled patio area with gate leading out to a concrete base which provides a small off street parking space.
Anti-Money Laundering (AML) Checks - As part of making an offer, we're required by law to complete Anti-Money Laundering (AML) checks to confirm the identity of all purchasers. To cover the cost of this process, a fee of £48 inc VAT per buyer is payable when your offer is accepted. This is a standard requirement for all buyers and helps us ensure your offer can be progressed as quickly and smoothly as possible.
ADDITIONAL INFORMATION
Tenure
Leasehold - 500 years from 24th August 1652
Service Charge
Nothing to pay
Ground Rent
Nothing to pay
Disclaimer
Any information in relation to the length of lease, service charge, ground rent and council tax has been confirmed by our sellers. We would advise that any buyer make their own enquiries through their solicitors to verify that the information provided is accurate and not been subject to any change
Brochures
Particulars- COUNCIL TAXA payment made to your local authority in order to pay for local services like schools, libraries, and refuse collection. The amount you pay depends on the value of the property.Read more about council Tax in our glossary page.
- Band: B
- PARKINGDetails of how and where vehicles can be parked, and any associated costs.Read more about parking in our glossary page.
- Yes
- GARDENA property has access to an outdoor space, which could be private or shared.
- Yes
- ACCESSIBILITYHow a property has been adapted to meet the needs of vulnerable or disabled individuals.Read more about accessibility in our glossary page.
- Ask agent
Airedale View, Leeds, West Yorkshire
Add an important place to see how long it'd take to get there from our property listings.
__mins driving to your place
Get an instant, personalised result:
- Show sellers you’re serious
- Secure viewings faster with agents
- No impact on your credit score
Your mortgage
Notes
Staying secure when looking for property
Ensure you're up to date with our latest advice on how to avoid fraud or scams when looking for property online.
Visit our security centre to find out moreDisclaimer - Property reference PML250130. The information displayed about this property comprises a property advertisement. Rightmove.co.uk makes no warranty as to the accuracy or completeness of the advertisement or any linked or associated information, and Rightmove has no control over the content. This property advertisement does not constitute property particulars. The information is provided and maintained by Manning Stainton, Pudsey. Please contact the selling agent or developer directly to obtain any information which may be available under the terms of The Energy Performance of Buildings (Certificates and Inspections) (England and Wales) Regulations 2007 or the Home Report if in relation to a residential property in Scotland.
*This is the average speed from the provider with the fastest broadband package available at this postcode. The average speed displayed is based on the download speeds of at least 50% of customers at peak time (8pm to 10pm). Fibre/cable services at the postcode are subject to availability and may differ between properties within a postcode. Speeds can be affected by a range of technical and environmental factors. The speed at the property may be lower than that listed above. You can check the estimated speed and confirm availability to a property prior to purchasing on the broadband provider's website. Providers may increase charges. The information is provided and maintained by Decision Technologies Limited. **This is indicative only and based on a 2-person household with multiple devices and simultaneous usage. Broadband performance is affected by multiple factors including number of occupants and devices, simultaneous usage, router range etc. For more information speak to your broadband provider.
Map data ©OpenStreetMap contributors.








