
3 bedroom semi-detached house for sale
Top Street, Misson, Doncaster

- PROPERTY TYPE
Semi-Detached
- BEDROOMS
3
- BATHROOMS
1
- SIZE
Ask agent
- TENUREDescribes how you own a property. There are different types of tenure - freehold, leasehold, and commonhold.Read more about tenure in our glossary page.
Freehold
Description
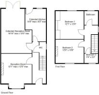
Located in this beautiful rural village, an extended 3 bedroom semi-detached house. The property will require some general rejuvenation, decoration etc. however has been priced to reflect this. It has a central heating system, pvc double glazing and briefly comprises: Long entrance hall with ground floor wc off, separate extended lounge, dining room and an extended kitchen. First floor landing, 3 bedrooms and a shower room. Outside there are front and rear gardens, a long side driveway and a detached brick garage. Misson is a small rural village on the South East side of Doncaster, close to the ever popular market town of Bawtry which has a wide range of amenities.
Accommodation - A pvc double glazed entrance door with fan light over leads into the properties entrance hall.
Entrance Hall - This has a staircase leading to the first floor accommodation, central heating radiator, a doorway gives access to understairs downstairs wc.
Downstairs Wc - This is fitted with a two piece suite comprising of a low flush wc, wash hand basin, there is a pvc double glazed window and a ceiling light.
Extended Lounge - 5.74m max x 3.66m max (18'10" max x 12'0" max) - A large rear facing reception room, it has a feature fireplace with an electric fireplace inset, two pvc double glazed double opening doors leading onto a decked patio, central light and wall lights and a central heating radiator.
Dining Room - 3.68m max x 3.66m (12'1" max x 12'0") - A front facing reception room with a deep pvc double glazed bay window to the front, there is a double panelled central heating radiator, Adam style fireplace, coving and a ceiling light.
Extended Kitchen - 4.47m max x 2.49m max (14'8" max x 8'2" max) - This is fitted with a range of base and wall units with a work surface over, there is a single drainer stainless steel sink unit with mixer tap, a ceramic hob, integrated oven with an extractor hood over. There is a floor standing combination type boiler which supplies the domestic hot water and central heating systems. Pvc double glazed door leading out to the rear garden along with a pvc window.
First Floor Landing - From here there is an an access point into the loft space, a pvc double glazed window to the side and and doors to the bedrooms and bathroom.
Bedroom 1 Rear - 3.68m x 3.66m (12'1" x 12'0") - This has a pvc double glazed window with an outlook over the rear garden, a central heating radiator, fitted wardrobes and a ceiling light.
Bedroom 2 - 3.66m x 3.20m (12'0" x 10'6") - This is a good sized second bedroom which has a pvc double glazed window to the front, central heating radiator and a ceiling light.
Bedroom 3 - 2.13m x 1.60m (7'0" x 5'3") - A smaller style box bedroom it has a pvc double glazed window, central heating radiator and a ceiling light.
Shower Room - This has a walk-in shower with glazed screen and a mains plumbed thermostatic shower, a wash hand basin and a low flush wc. Central heating radiator, pvc double glazed window and a ceiling light (it should be noted that the ceiling has been damaged in the past and therefore will need some remedial work).
Outside - To the front of the property there is a good sized garden, there is blocked paved driveway which provides car standing and continues along the side of the property and leads to a detached garage. The remainder is lawned with fencing to the perimeters.
Rear Garden - Again, this is a good size, there is a timber decked patio ( DO NOT WALK ON) which leads onto a good sized lawn, with maturing shrubs and plants including an ornamental tree and a brick store to the rear.
Agents Notes: - TENURE - FREEHOLD.
SERVICES - Electricity, water and drainage are connected.
DOUBLE GLAZING - PVC double glazing, where stated. Age of units various.
HEATING - Gas radiator central heating. Age of boiler TBC.
COUNCIL TAX - Band C.
BROADBAND - Ultrafast broadband is available with download speeds of up to 1000 mbps and upload speeds of up to 1000 mbps.
MOBILE COVERAGE - Coverage is available with EE, Three, 02 and Vodafone.
VIEWING - By prior telephone appointment with horton knights estate agents.
MEASUREMENTS - Please note all measurements are approximate and for guidance purposes only, with a six inch tolerance. Therefore please do NOT rely upon them for carpet measurements, furniture and the like. Similarly, the floor plan is designed as a visual reference and is NOT a scale drawing.
PROPERTY PARTICULARS - We endeavour to make our property particulars accurate and reliable, however if there is a point that is especially important to you, please contact ourselves prior to exchange of contracts, so that we may further clarify that point. We DO NOT give any warranty to the suitability of any part, including fixtures and fittings of this property, prospective buyers are kindly asked to take specific advice from their professional advisors.
OPENING HOURS - Monday - Friday 9:00 - 5:30 Saturday 9:00 - 3:00 Sunday
INDEPENDENT MORTGAGE ADVICE - With so many mortgage options to choose from, how do you know your getting the best deal? Quite simply...YOU DON'T. Talk to an expert. We offer uncomplicated impartial advice. Call us today: .
FREE VALUATIONS - If you need to sell a house then please take advantage of our FREE VALUATION service, contact our Doncaster Office for a prompt and efficient service.
Brochures
Top Street, Misson, Doncasterhorton knights - 10 Top StreetBrochure- COUNCIL TAXA payment made to your local authority in order to pay for local services like schools, libraries, and refuse collection. The amount you pay depends on the value of the property.Read more about council Tax in our glossary page.
- Band: C
- PARKINGDetails of how and where vehicles can be parked, and any associated costs.Read more about parking in our glossary page.
- Garage
- GARDENA property has access to an outdoor space, which could be private or shared.
- Yes
- ACCESSIBILITYHow a property has been adapted to meet the needs of vulnerable or disabled individuals.Read more about accessibility in our glossary page.
- Ask agent
Energy performance certificate - ask agent
Top Street, Misson, Doncaster
Add an important place to see how long it'd take to get there from our property listings.
__mins driving to your place
Get an instant, personalised result:
- Show sellers you’re serious
- Secure viewings faster with agents
- No impact on your credit score



Your mortgage
Notes
Staying secure when looking for property
Ensure you're up to date with our latest advice on how to avoid fraud or scams when looking for property online.
Visit our security centre to find out moreDisclaimer - Property reference 34384459. The information displayed about this property comprises a property advertisement. Rightmove.co.uk makes no warranty as to the accuracy or completeness of the advertisement or any linked or associated information, and Rightmove has no control over the content. This property advertisement does not constitute property particulars. The information is provided and maintained by Horton Knights, Doncaster. Please contact the selling agent or developer directly to obtain any information which may be available under the terms of The Energy Performance of Buildings (Certificates and Inspections) (England and Wales) Regulations 2007 or the Home Report if in relation to a residential property in Scotland.
*This is the average speed from the provider with the fastest broadband package available at this postcode. The average speed displayed is based on the download speeds of at least 50% of customers at peak time (8pm to 10pm). Fibre/cable services at the postcode are subject to availability and may differ between properties within a postcode. Speeds can be affected by a range of technical and environmental factors. The speed at the property may be lower than that listed above. You can check the estimated speed and confirm availability to a property prior to purchasing on the broadband provider's website. Providers may increase charges. The information is provided and maintained by Decision Technologies Limited. **This is indicative only and based on a 2-person household with multiple devices and simultaneous usage. Broadband performance is affected by multiple factors including number of occupants and devices, simultaneous usage, router range etc. For more information speak to your broadband provider.
Map data ©OpenStreetMap contributors.





