
Abbots Gait, Huntington, York, YO32 9SX

- PROPERTY TYPE
Semi-Detached Bungalow
- BEDROOMS
1
- BATHROOMS
1
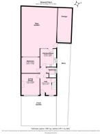
- SIZE
919 sq ft
85 sq m
- TENUREDescribes how you own a property. There are different types of tenure - freehold, leasehold, and commonhold.Read more about tenure in our glossary page.
Freehold
Key features
- Spacious Dormer Style Bungalow
- Over 900 sq ft Of Accommodation
- Enclosed Rear Garden
- Ground Floor Bedroom & Stairs Leading To a Loft Room With UPVC Double Glazed Window
- Modern Kitchen With Integrated Appliances & Space for Table
- Modern Bathroom
- Driveway Providing Off-Road Parking & Detached Garage
- Generous Entrance Hallway With Study Space
- Close to the York Ring Road, Monks Cross, Vanguard & Clifton Moor
- Offered For Sale With No Onward Chain
Description
The front door opens to a spacious, welcoming hallway, with stairs leading to the first floor and has doors serving the ground floor accommodation. A bay front lounge sits to the front of the property and centres upon a feature fireplace. The modern kitchen has a range of integrated appliances, space for a table, dual aspect windows and a door leading to the rear garden. A double bedroom has fitted wardrobes and shelving and to complete the ground floor is a modern bathroom with shower over bath.
The spacious first floor loft room is accessed via stairs has the benefit of a UPVC double glazed window and plenty of storage.
Externally, there is a lawned garden to the front and a driveway provides off-road parking and leads to a garage. Gated access opens to an enclosed rear garden, laid mainly to lawn, with a patio seating area and fenced perimeters.
Huntington is conveniently placed to access highly regarded junior and secondary schools, the outer ring road, York City Centre, Monks Cross, Vanguard, Clifton Moor and the A64.
General Remarks -
Viewings - All viewing is strictly by prior appointment with the sole selling agents, Hudson Moody. Please contact our offices at 58, Micklegate, York, YO1 6LF.
Fixtures & Fittings - All fixtures and fittings are specifically excluded from the sale unless they are mentioned in the particulars of sale.
Location - The bungalow is set in an ideal location in Huntington and is within easy reach of local amenities, York City Centre and outer ring road and retail parks.
Services - Mains supplies of water, electricity and drainage. Gas fired central heating.
Local Authority York - City of York Council, West Offices, Station Rise, York, YO1 6GA. Telephone .
Offer Procedure - Before contacting a Building Society, Bank or Solicitor you should make your offer to the office dealing with the sale, as any delay may result in the sale being agreed to another purchaser, thus incurring unnecessary costs. Under the Estate Agency Act 1991, you will be required to provide us with financial information in order to verify your position, before we can recommend your offer to the vendor. We will also require proof of identification in order to adhere to Money Laundering Regulations.
Anti Money Laundering Compliance - We are legally required to conduct Anti-Money Laundering (AML) checks on all purchasers and sellers. These checks become mandatory once a seller accepts an offer on a property (subject to contract).
AML checks are valid for six months from the date of completion. If your transaction does not proceed and you submit an offer on another property more than six months later, or if your existing AML check is more than six months old at the time of a new offer, you will be required to complete and pay for a new check.
We appoint HIPLA as our compliance partner to carry out these checks on our behalf. Once your offer has been accepted (subject to contract), HIPLA will contact you directly to complete a secure electronic verification process.
A non-refundable fee of £30 + VAT per purchaser is payable for the AML check. This fee must be paid before we can issue the Memorandum of Sale to the solicitors. The fee is non-refundable in all circumstances.
Hudson Moody receives service credits from HIPLA which may be used against other services, in recognition of facilitating the checks and undertaking associated administrative compliance duties.
Brochures
Abbots Gait, Huntington, York, YO32 9SXBrochure- COUNCIL TAXA payment made to your local authority in order to pay for local services like schools, libraries, and refuse collection. The amount you pay depends on the value of the property.Read more about council Tax in our glossary page.
- Band: C
- PARKINGDetails of how and where vehicles can be parked, and any associated costs.Read more about parking in our glossary page.
- Yes
- GARDENA property has access to an outdoor space, which could be private or shared.
- Yes
- ACCESSIBILITYHow a property has been adapted to meet the needs of vulnerable or disabled individuals.Read more about accessibility in our glossary page.
- Ask agent
Abbots Gait, Huntington, York, YO32 9SX
Add an important place to see how long it'd take to get there from our property listings.
__mins driving to your place
Get an instant, personalised result:
- Show sellers you’re serious
- Secure viewings faster with agents
- No impact on your credit score



Your mortgage
Notes
Staying secure when looking for property
Ensure you're up to date with our latest advice on how to avoid fraud or scams when looking for property online.
Visit our security centre to find out moreDisclaimer - Property reference 34384722. The information displayed about this property comprises a property advertisement. Rightmove.co.uk makes no warranty as to the accuracy or completeness of the advertisement or any linked or associated information, and Rightmove has no control over the content. This property advertisement does not constitute property particulars. The information is provided and maintained by Hudson Moody, Covering North of York. Please contact the selling agent or developer directly to obtain any information which may be available under the terms of The Energy Performance of Buildings (Certificates and Inspections) (England and Wales) Regulations 2007 or the Home Report if in relation to a residential property in Scotland.
*This is the average speed from the provider with the fastest broadband package available at this postcode. The average speed displayed is based on the download speeds of at least 50% of customers at peak time (8pm to 10pm). Fibre/cable services at the postcode are subject to availability and may differ between properties within a postcode. Speeds can be affected by a range of technical and environmental factors. The speed at the property may be lower than that listed above. You can check the estimated speed and confirm availability to a property prior to purchasing on the broadband provider's website. Providers may increase charges. The information is provided and maintained by Decision Technologies Limited. **This is indicative only and based on a 2-person household with multiple devices and simultaneous usage. Broadband performance is affected by multiple factors including number of occupants and devices, simultaneous usage, router range etc. For more information speak to your broadband provider.
Map data ©OpenStreetMap contributors.






