
5 bedroom detached house for sale
Knottocks Close, Beaconsfield, Buckinghamshire, HP9

- PROPERTY TYPE
Detached
- BEDROOMS
5
- BATHROOMS
2
- SIZE
2,200 sq ft
204 sq m
- TENUREDescribes how you own a property. There are different types of tenure - freehold, leasehold, and commonhold.Read more about tenure in our glossary page.
Freehold
Description
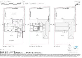
Upon entering, you are welcomed by a stunning entrance hall that immediately sets a luxurious tone. Elegant modern panelling and white marble-effect tiled flooring draw the eye towards the striking central staircase. The ground floor flows beautifully, centred around the generous 7.25m x 5.25m (23'9" x 17'3") living room — the heart of the home — featuring a modern inset fireplace and media wall, creating a cosy yet luxurious atmosphere perfect for relaxing.
The bright, contemporary kitchen offers high-gloss white cabinetry, integrated appliances, and views over the rear garden. It connects seamlessly to the dining room, bathed in natural light, with French doors opening directly onto the patio — ideal for indoor-outdoor entertaining. For added convenience, the ground floor also includes a separate playroom (which could alternatively serve as a home office or snug) and a practical utility room, ensuring everyday family needs are well accommodated.
The central staircase rises to the first-floor landing, giving access to five bedrooms and a family bathroom, all presented in a modern and airy décor. The principal bedroom features a luxurious en-suite shower room, finished in clean white tiling and featuring dual pedestal basins, a W/C, and a spacious walk-in shower enclosure.
The remaining four bedrooms are well-proportioned and beautifully presented, offering versatile living arrangements. They are currently configured as a mix of large double and single bedrooms, along with a well-lit dedicated home office (Bedroom 5). Several rooms benefit from contemporary plantation shutters.
Gardens and Grounds
Externally, the property boasts a large, secure rear garden, mainly laid to lawn and a charming paved patio sits directly off the dining room, offering an ideal space for alfresco dining and socialising.
To the front, the property enjoys impressive kerb appeal, with a large gravel driveway providing extensive off-street parking and access to the double garage.
Planning permission has been granted for a sweeping, single story extension to expand the kitchen and dining area, a broadened reception and addition of a boot room and second study. (Ref: PL/22/1862/FA) and the entire central heating system, including the boiler was installed in 2019.
Location
Knottocks Close enjoys a highly desirable position in the sought-after town of Beaconsfield, renowned for its outstanding schools, attractive surroundings and excellent commuter links. Nestled within a peaceful residential area, the property benefits from easy access to both Beaconsfield New Town and Old Town, each offering an array of independent boutiques, cafés, restaurants, supermarkets and everyday conveniences. The area is ideal for families, with beautiful green spaces, parks and woodland walks nearby, as well as leisure facilities including tennis, golf and health clubs.
Beaconsfield is particularly well regarded for its exceptional selection of schooling. The property sits within reach of highly rated state and independent options, including Beaconsfield High School (girls’ grammar), Royal Grammar School and John Hampden Grammar School (boys’ grammar in nearby High Wycombe), as well as reputable primary schools such as Butlers Court, St Mary’s & All Saints, and The Beaconsfield School. Prestigious private schools including Davenies and High March are also close by.
For commuters, Beaconsfield Station is conveniently accessible and offers direct rail services to London Marylebone in approximately 23–30 minutes, making the location ideal for those travelling into the capital. Road connections are excellent, with Junction 2 of the M40 just minutes away, providing straightforward access to the M25, Heathrow Airport and central London, as well as routes towards Oxford and the Midlands.
ADDITIONAL INFORMATION
Council Tax Band: G
Local Authority: Buckinghamshire Council
EPC Rating: C
Brochures
Particulars- COUNCIL TAXA payment made to your local authority in order to pay for local services like schools, libraries, and refuse collection. The amount you pay depends on the value of the property.Read more about council Tax in our glossary page.
- Band: G
- PARKINGDetails of how and where vehicles can be parked, and any associated costs.Read more about parking in our glossary page.
- Yes
- GARDENA property has access to an outdoor space, which could be private or shared.
- Yes
- ACCESSIBILITYHow a property has been adapted to meet the needs of vulnerable or disabled individuals.Read more about accessibility in our glossary page.
- Ask agent
Knottocks Close, Beaconsfield, Buckinghamshire, HP9
Add an important place to see how long it'd take to get there from our property listings.
__mins driving to your place
Get an instant, personalised result:
- Show sellers you’re serious
- Secure viewings faster with agents
- No impact on your credit score
Your mortgage
Notes
Staying secure when looking for property
Ensure you're up to date with our latest advice on how to avoid fraud or scams when looking for property online.
Visit our security centre to find out moreDisclaimer - Property reference BVN250644. The information displayed about this property comprises a property advertisement. Rightmove.co.uk makes no warranty as to the accuracy or completeness of the advertisement or any linked or associated information, and Rightmove has no control over the content. This property advertisement does not constitute property particulars. The information is provided and maintained by Bovingdons, Beaconsfield. Please contact the selling agent or developer directly to obtain any information which may be available under the terms of The Energy Performance of Buildings (Certificates and Inspections) (England and Wales) Regulations 2007 or the Home Report if in relation to a residential property in Scotland.
*This is the average speed from the provider with the fastest broadband package available at this postcode. The average speed displayed is based on the download speeds of at least 50% of customers at peak time (8pm to 10pm). Fibre/cable services at the postcode are subject to availability and may differ between properties within a postcode. Speeds can be affected by a range of technical and environmental factors. The speed at the property may be lower than that listed above. You can check the estimated speed and confirm availability to a property prior to purchasing on the broadband provider's website. Providers may increase charges. The information is provided and maintained by Decision Technologies Limited. **This is indicative only and based on a 2-person household with multiple devices and simultaneous usage. Broadband performance is affected by multiple factors including number of occupants and devices, simultaneous usage, router range etc. For more information speak to your broadband provider.
Map data ©OpenStreetMap contributors.






