3 bedroom flat for sale
Spear Street, Manchester, Greater Manchester, M1

- PROPERTY TYPE
Flat
- BEDROOMS
3
- SIZE
Ask agent
Description
An excellent investment opportunity, currently tenanted until late August 2026, offering immediate rental income from a high-quality, fully refurbished property.
Finished to the same high specification throughout as comparable units within the building, with the added benefit of beautiful large windows and notably high ceilings, enhancing light, space and character.
Accommodation
Secure coded entry to the building with stair access to all floors
Entrance hallway with parquet flooring and contemporary spotlighting
Spacious open-plan living, dining and kitchen area, featuring large windows and high ceilings that create a bright, airy loft-style feel
Modern kitchen with a range of wall and base units, solid wood and concrete worktops, and a statement concrete island
Integrated appliances including dishwasher, oven, microwave and hob with extractor
Three well-proportioned double bedrooms
Principal bedroom benefitting from a Juliet balcony and a sleek en-suite shower room
Stylish family bathroom designed in a wet-room style, incorporating a bath and separate shower
Specification Highlights
Parquet flooring to living areas
High ceilings and oversized windows providing excellent natural light
Wall-mounted electric radiators throughout
Contemporary spotlighting and industrial-inspired finishes
Practical storage, including concealed water tank and utility cupboard housing the washing machine
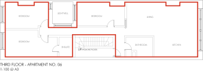
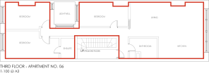
Room Summary
Open-plan Living/Kitchen/Diner: 7.50m x 5.58m
Bedroom One: 5.55m x 2.93m (with en-suite)
Bedroom Two: 5.59m x 2.73m
Bedroom Three: 4.96m x 2.38m
Additional Information
Tenure: Leasehold
Lease length: 999 years from 2024 (created on sale)
Ground rent: peppercorn
Service charge: Approximately £2,550 per annum
Tenancy in place until: Late August 2026
A standout Northern Quarter apartment combining strong investment credentials with striking architectural features, ideally suited to investors seeking a premium, income-producing city-centre asset.
- COUNCIL TAXA payment made to your local authority in order to pay for local services like schools, libraries, and refuse collection. The amount you pay depends on the value of the property.Read more about council Tax in our glossary page.
- Ask agent
- PARKINGDetails of how and where vehicles can be parked, and any associated costs.Read more about parking in our glossary page.
- Ask agent
- GARDENA property has access to an outdoor space, which could be private or shared.
- Ask agent
- ACCESSIBILITYHow a property has been adapted to meet the needs of vulnerable or disabled individuals.Read more about accessibility in our glossary page.
- Ask agent
Energy performance certificate - ask agent
Spear Street, Manchester, Greater Manchester, M1
Add an important place to see how long it'd take to get there from our property listings.
__mins driving to your place
Get an instant, personalised result:
- Show sellers you’re serious
- Secure viewings faster with agents
- No impact on your credit score
Your mortgage
Notes
Staying secure when looking for property
Ensure you're up to date with our latest advice on how to avoid fraud or scams when looking for property online.
Visit our security centre to find out moreDisclaimer - Property reference arrive. The information displayed about this property comprises a property advertisement. Rightmove.co.uk makes no warranty as to the accuracy or completeness of the advertisement or any linked or associated information, and Rightmove has no control over the content. This property advertisement does not constitute property particulars. The information is provided and maintained by OFF AGENT, Nationwide. Please contact the selling agent or developer directly to obtain any information which may be available under the terms of The Energy Performance of Buildings (Certificates and Inspections) (England and Wales) Regulations 2007 or the Home Report if in relation to a residential property in Scotland.
*This is the average speed from the provider with the fastest broadband package available at this postcode. The average speed displayed is based on the download speeds of at least 50% of customers at peak time (8pm to 10pm). Fibre/cable services at the postcode are subject to availability and may differ between properties within a postcode. Speeds can be affected by a range of technical and environmental factors. The speed at the property may be lower than that listed above. You can check the estimated speed and confirm availability to a property prior to purchasing on the broadband provider's website. Providers may increase charges. The information is provided and maintained by Decision Technologies Limited. **This is indicative only and based on a 2-person household with multiple devices and simultaneous usage. Broadband performance is affected by multiple factors including number of occupants and devices, simultaneous usage, router range etc. For more information speak to your broadband provider.
Map data ©OpenStreetMap contributors.





