Hartfield Close, Sketty, Swansea, SA2 7NH

- PROPERTY TYPE
Detached Bungalow
- BEDROOMS
3
- BATHROOMS
1
- SIZE
Ask agent
- TENUREDescribes how you own a property. There are different types of tenure - freehold, leasehold, and commonhold.Read more about tenure in our glossary page.
Ask agent
Key features
- Detached
- Three bedrooms
- Corner plot
- Driveway parking
- Extension "sunroom"
- No chain
- Tenanted until January
Description
Nestled within a peaceful cul-de-sac on a highly sought-after residential development, this extended detached bungalow offers an excellent opportunity for buyers looking to put their own stamp on a property. Ideally located just a few miles from Swansea University and Singleton Hospital, the home also sits within a short walking distance of the renowned Olchfa Comprehensive School. Both Sketty and Killay shopping centres are conveniently situated approximately half a mile away, providing a wide range of local amenities.
The bungalow requires modernisation but benefits from previous extensions, offering superb potential for reconfiguration or further development (subject to planning). Set on an exceptionally large, level plot bordered by mature woodland to one side, the property enjoys a sense of privacy and space rarely found in the area.
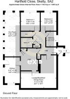
The accommodation includes an L-shaped lounge/breakfast room, separate dining room, kitchen, generous sun room lounge, three bedrooms, bathroom, separate W.C, and gas central heating.
Lounge / Breakfast / Dining Room: 20'1" x 18'7" (6.12m x 5.66m)
Sun Room: 25'0" x 8'7" (7.62m x 2.62m)
Kitchen: 14'8" x 8'4" (4.47m x 2.54m)
Bedroom 1: 10'9" x 10'5" (3.28m x 3.18m)
Bedroom 2: 10'0" x 8'10" (3.05m x 2.69m)
Bedroom 3: 8'5" x 7'10" (2.57m x 2.39m)
Bathroom, separate W.C. and shower area
Hallway storage cupboards
Storm porch to side
- COUNCIL TAXA payment made to your local authority in order to pay for local services like schools, libraries, and refuse collection. The amount you pay depends on the value of the property.Read more about council Tax in our glossary page.
- Ask agent
- PARKINGDetails of how and where vehicles can be parked, and any associated costs.Read more about parking in our glossary page.
- Yes
- GARDENA property has access to an outdoor space, which could be private or shared.
- Ask agent
- ACCESSIBILITYHow a property has been adapted to meet the needs of vulnerable or disabled individuals.Read more about accessibility in our glossary page.
- Ask agent
Hartfield Close, Sketty, Swansea, SA2 7NH
Add an important place to see how long it'd take to get there from our property listings.
__mins driving to your place
Get an instant, personalised result:
- Show sellers you’re serious
- Secure viewings faster with agents
- No impact on your credit score
Your mortgage
Notes
Staying secure when looking for property
Ensure you're up to date with our latest advice on how to avoid fraud or scams when looking for property online.
Visit our security centre to find out moreDisclaimer - Property reference S1518707. The information displayed about this property comprises a property advertisement. Rightmove.co.uk makes no warranty as to the accuracy or completeness of the advertisement or any linked or associated information, and Rightmove has no control over the content. This property advertisement does not constitute property particulars. The information is provided and maintained by Nolan Estates, Powered by eXp, covering Killay, Dunvant, Upper Killay, Sketty, Uplands, Tycoch and surrounding. Please contact the selling agent or developer directly to obtain any information which may be available under the terms of The Energy Performance of Buildings (Certificates and Inspections) (England and Wales) Regulations 2007 or the Home Report if in relation to a residential property in Scotland.
*This is the average speed from the provider with the fastest broadband package available at this postcode. The average speed displayed is based on the download speeds of at least 50% of customers at peak time (8pm to 10pm). Fibre/cable services at the postcode are subject to availability and may differ between properties within a postcode. Speeds can be affected by a range of technical and environmental factors. The speed at the property may be lower than that listed above. You can check the estimated speed and confirm availability to a property prior to purchasing on the broadband provider's website. Providers may increase charges. The information is provided and maintained by Decision Technologies Limited. **This is indicative only and based on a 2-person household with multiple devices and simultaneous usage. Broadband performance is affected by multiple factors including number of occupants and devices, simultaneous usage, router range etc. For more information speak to your broadband provider.
Map data ©OpenStreetMap contributors.




