Mixed use property to lease
Holloway Hall Court Passage, Dudley, West Midlands, DY1
- SIZE AVAILABLE
1,554-1,868 sq ft
144-174 sq m
- SECTOR
Mixed use property to lease
- USE CLASSUse class orders: Class E
E
Lease details
- Lease available date:
- Now
- Lease type:
- Long term
- Furnish type:
- Unfurnished
Key features
- New Flexible Lease Available
- Adjacent Car Parking
- Dudley Town Centre Location
- Suitable for variety of uses (subject to Planning)
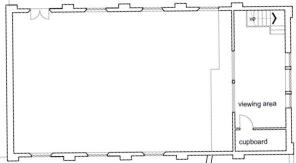
- Large Hall with Mezzanine viewing area, Office, WC and Kitchen with serving hatch
Description
The premises are centrally located in Dudley Town Centre along Court Passage just off Priory Street being close to all town centre amenities, and affords direct access to Dudley Town Centre, Dudley Learning Quarter and Priory Park only a short distance on foot.
Description
The property comprises a substantial ground floor hall area, kitchen with serving hatch, office, disabled W.C and first floor level / Viewing Area. The building is of brick walls and decorative stone construction surmounted by a pitched slate tiled roof.
More particularly the premises comprise.
Ground Floor Hall. 144.40 Sq. Meter 1,554 sq. Ft
First Floor. 29.20 Sq. Meter 314 sq. Ft
Total Floor Area 173.60 Sq. Meter 1,868 sq. Ft
RATEABLE VALUE
£9,500. Current rateable value (1 April 2023 to present)
Environmental EPC
An Energy Performance Certificate is not required if used solely or mainly for religious activities.
Services
All mains' services are available on or to the premises. The services have not been tested and prospective purchasers are advised to make their own enquiries regarding the adequacy and condition of these installations.
Planning
Interested parties should make their own enquiries of Dudley MBC Planning Department and satisfy themselves as to the suitability of the premises for any use or development they may propose.
VAT
To be confirmed. All prices are quoted exclusive of VAT which may be payable.
Availability
The property is immediately available subject to the completion of legal formalities
In selecting a preferred lessee, the Council reserves the right not to accept the highest or any bid.
Anti Money Laundering (AML)
The successful purchaser will be required to provide two forms of ID and proof of funding to satisfy AML protocols.
Costs
The Purchaser to be responsible for their own legal costs.
MISREPRESENTATION ACT 1967: The particulars are a general outline only for the guidance of intending purchasers or lessees, and do not constitute an offer of contract. All descriptions and any other details are given without responsibility, and any intending purchasers or tenants should not rely on them as statements or representations of fact but must satisfy themselves by inspection or otherwise as to the correctness of them. No employee of Dudley MBC has any authority to make or give any representation or warranty whatever in relation to this property.
Disclaimer - These particulars do not constitute any part of a contract. All descriptions, dimensions, references to condition and necessary permissions for use and occupation, and other details are given in good faith. Intending purchasers or tenants should satisfy themselves as to the accuracy of all statements and representations before entering into any agreement.
Holloway Hall Court Passage, Dudley, West Midlands, DY1
NEAREST STATIONS
Distances are straight line measurements from the centre of the postcode- Tipton Station1.5 miles
- Dudley Port Station1.8 miles
- Coseley Station2.4 miles
Notes
Disclaimer - Property reference 03986. The information displayed about this property comprises a property advertisement. Rightmove.co.uk makes no warranty as to the accuracy or completeness of the advertisement or any linked or associated information, and Rightmove has no control over the content. This property advertisement does not constitute property particulars. The information is provided and maintained by Dudley Borough Council, Dudley. Please contact the selling agent or developer directly to obtain any information which may be available under the terms of The Energy Performance of Buildings (Certificates and Inspections) (England and Wales) Regulations 2007 or the Home Report if in relation to a residential property in Scotland.
Map data ©OpenStreetMap contributors.






