
Llantrisant Road, Tresimwn, Cardiff, CF5

- PROPERTY TYPE
Detached
- BEDROOMS
3
- SIZE
Ask developer
- TENUREDescribes how you own a property. There are different types of tenure - freehold, leasehold, and commonhold.Read more about tenure in our glossary page.
Freehold
Key features
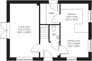
- Open plan kitchen/dining room
- Utility room
- Spacious living room with French doors to garden
- Downstairs WC
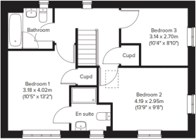
- En suite to bedroom one
- Family bathroom
- Storage space
- Energy efficient
Description
A thoughtfully-designed three-bedroom family home with much to offer, the Barndale has a bright and modern open plan kitchen/dining room leading to a handy utility room. The spacious living room has French doors leading into the garden. The inner hallway, downstairs WC and cupboards take care of everyday storage. Plus there’s an en suite to bedroom one and a family bathroom.
Additional Information
- Tenure: Freehold
- Council tax band: Not made available by local authority until post-occupation
Parking - Allocated Parking
Room Dimensions
- Living room - 3.14 x 5.75 metre
- Kitchen - 3.01 x 3.11 metre
- Dining room - 3.01 x 2.63 metre
- Bedroom One - 3.18 x 4.02 metre
- Bedroom Two - 4.19 x 2.95 metre
- Bedroom Three - 3.14 x 2.7 metre
- COUNCIL TAXA payment made to your local authority in order to pay for local services like schools, libraries, and refuse collection. The amount you pay depends on the value of the property.Read more about council Tax in our glossary page.
- Ask developer
- PARKINGDetails of how and where vehicles can be parked, and any associated costs.Read more about parking in our glossary page.
- Yes
- GARDENA property has access to an outdoor space, which could be private or shared.
- Yes
- ACCESSIBILITYHow a property has been adapted to meet the needs of vulnerable or disabled individuals.Read more about accessibility in our glossary page.
- Ask developer
Energy performance certificate - ask developer
- Choice of 3 and 4 bedroom homes
- Fantastic transport links
- Good local amenities
- Lovely semi-rural setting
Llantrisant Road, Tresimwn, Cardiff, CF5
Add an important place to see how long it'd take to get there from our property listings.
__mins driving to your place
Get an instant, personalised result:
- Show sellers you’re serious
- Secure viewings faster with agents
- No impact on your credit score
About Persimmon Homes East Wales
Welcome to The Parish @ Llanilltern Village– modern new homes in Creigiau
Discover our latest collection of two, three and four-bedroom homes in the picturesque village of Creigiau, just outside Cardiff. These beautiful homes boast high-quality finishes and spacious layouts. Whether you're a first-time buyer or a growing family, this development offers the perfect setting to call home.
Stylish new build homes in beautiful Creigiau
Nestled in rolling hills, The Parish @ Llanilltern Village benefits from a peaceful countryside atmosphere. There is plenty of green space for dog walks and letting the kids burn off energy - plus a welcoming community spirit, making The Parish some of the best houses for sale Cardiff has to offer.
New build homes with excellent transport links to Cardiff
Located just 8 miles from Cardiff, Creigiau offers excellent road connections via the M4 corridor, making commuting to Cardiff, Bristol or London a breeze. Pontypridd and Merthyr Tydfil are easily reachable for those heading north, while nearby train stations provide plenty of rail links for work and play. Explore these fantastic new homes in the Cardiff area and find the perfect fit for you.
Everything you need on your doorstep
Creigiau is a well-established village with a thriving community. Families will love the choice of schools, including Creigiau Primary School, which is bilingual. For easy day-to-day living and retail therapy, Talbot Green Retail Park is just 13 minutes away.
Explore the outdoors in Creigiau
Enjoy the best of the Welsh countryside with scenic walks and stunning views across the Glamorgan Heritage Coast. Whether it’s a weekend hike or a peaceful evening stroll, The Parish @ Llanilltern Village offers a lifestyle that’s close to nature, making our new homes in Creigiau ideal for outdoor lovers.
Ready to make your move?
To explore our Creigiau property for sale and start your new build journey, speak to one of our friendly sales advisors today. Make your dream of owning a new home in Creigiau a reality sooner than you think!
This development offers the following schemes:
- Deposit Boost: 5% Deposit Contribution Scheme
- Home Change
- Armed Forces, Key Workers & NHS Discount Scheme
- Bank of Mum and Dad
- First Homes
- Early Bird Scheme
Schemes are available on selected plots only, subject to status, terms and conditions apply. Contact the development for latest information.
Affordability
Notes
Staying secure when looking for property
Ensure you're up to date with our latest advice on how to avoid fraud or scams when looking for property online.
Visit our security centre to find out moreDisclaimer - Property reference 3_600. The information displayed about this property comprises a property advertisement. Rightmove.co.uk makes no warranty as to the accuracy or completeness of the advertisement or any linked or associated information, and Rightmove has no control over the content. This property advertisement does not constitute property particulars. The information is provided and maintained by Persimmon Homes East Wales. Please contact the selling agent or developer directly to obtain any information which may be available under the terms of The Energy Performance of Buildings (Certificates and Inspections) (England and Wales) Regulations 2007 or the Home Report if in relation to a residential property in Scotland.
*This is the average speed from the provider with the fastest broadband package available at this postcode. The average speed displayed is based on the download speeds of at least 50% of customers at peak time (8pm to 10pm). Fibre/cable services at the postcode are subject to availability and may differ between properties within a postcode. Speeds can be affected by a range of technical and environmental factors. The speed at the property may be lower than that listed above. You can check the estimated speed and confirm availability to a property prior to purchasing on the broadband provider's website. Providers may increase charges. The information is provided and maintained by Decision Technologies Limited. **This is indicative only and based on a 2-person household with multiple devices and simultaneous usage. Broadband performance is affected by multiple factors including number of occupants and devices, simultaneous usage, router range etc. For more information speak to your broadband provider.
Map data ©OpenStreetMap contributors.






